Löggiltir fasteignasalar innan Félags fasteignasala:
Vista
lóð

Hvammsvegur 11

805 Selfoss

4.999.000 kr.

Fasteignanúmer

F2345554

Fasteignamat

2.150.000 kr.

Brunabótamat

0 kr.

Áhvílandi

0 kr.

Arion banki – Reikna lán
Upplýsingar
svg
0 m²
svg
herb.
svg
Sameiginl. inngangur

Lýsing

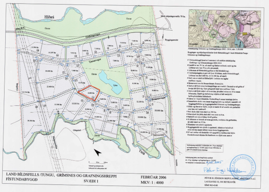
Hvammsvegur 11 – Eignarlóð - Sumarhúsalóð til sölu í landi Bíldsfells/Tungu í Grafningi


Eignarlóð - Lóðin er 6.600 fermetrar að stærð, rúmur hálfur hektari, og staðsett innst í botnlanga.
Á lóðinni er mói, berjalyng og falleg tjörn með fuglalífi í bakgarðinum. Jarðvegurinn er góður, aðeins um 1 meter niður á fast, og því auðvelt að byggja.
Rafmagn og kalt vatn eru við lóðarmörk. Heimilt er að byggja allt að 200 fm sumarhús ásamt 25 fm gestahúsi. Einungis 45 mínútna akstur frá Reykjavík – tilvalin staðsetning fyrir þá sem vilja njóta náttúrunnar án þess að fara langt frá borginni.


Finndu frekari upplýsingar um eignina á www.e-fasteignir.is
- Söluyfirlit
- Senda fyrirspurn
- Tilboðsgerð



Vegna auglýsingar á vefsvæðinu fasteignir.is:
Eigendur auglýsa eign sína sjálfir án milligöngu og finna til kaupendur. Eigendur tryggja að löggiltur fasteignasali (eða aðili með löggildingu til að annast milligöngu um sölu fasteigna og skipa) annist milligöngu þegar kemur að kauptilboði og / eða kaupsamningsgerð vegna auglýsingar á vefsvæði Vísis (fasteignir.is). Þessi aðili mun þá sjá um skjalagerð, þ.m.t. söluyfirlit, kauptilboð, kaupsamning, veðleyfi og afsal, eftir því sem við á hverju sinni, og sjá um að annast viðskiptin í samræmi við lög um sölu fasteigna og skipa nr. 70/2015. Þannig er tryggt að varnir gegn peningaþvætti séu virtar og að réttarstaða kaupanda og seljanda er glögg.

Eigendur geta nýtt sér umrædda þjónustu hjá samstarfsaðila e-fasteigna, PRIMA fasteignasölu, en það er ekki skilyrði fyrir notkun kerfisins og stendur aðilum aðeins til boða ef hún hentar öllum hlutaðeigandi.
Verðskrá þjónustunnar er aðgengileg á vef e-fasteigna.

e-fasteignir | Fasteignakerfi

e-fasteignir | Fasteignakerfi

Bjarkarás 3a, 210 Garðabær
phone
e-fasteignir | Fasteignakerfi

e-fasteignir | Fasteignakerfi

Bjarkarás 3a, 210 Garðabær
phone