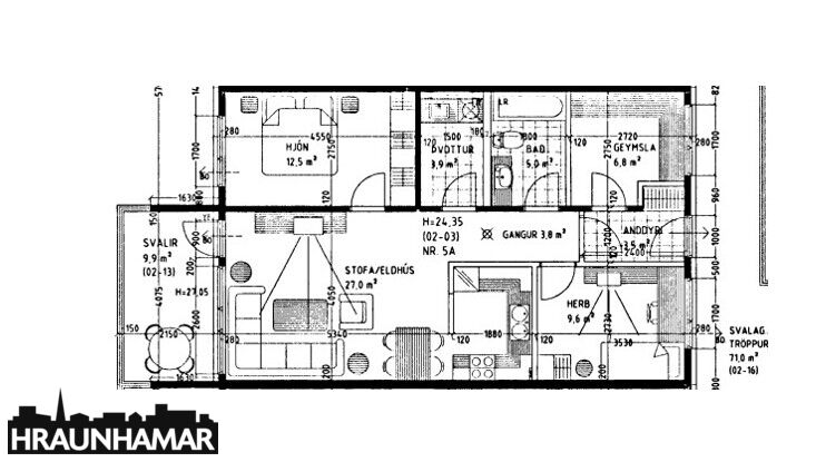
Engjavellir, 221 Hafnarfjörður