Löggiltir fasteignasalar innan Félags fasteignasala:
Ástþór Reynir Guðmundsson
Vigdís R. S. Helgadóttir
Guðbjörg Helga Jóhannesdóttir
Gylfi Jens Gylfason
Sigrún Matthea Sigvaldadóttir
Sveinn Gíslason
Páll Guðmundsson
Þórarinn Arnar Sævarsson
Berglind Hólm Birgisdóttir
Þorsteinn Gíslason
Guðrún Lilja Tryggvadóttir
Brynjar Ingólfsson
Guðný Þorsteinsdóttir
Bjarni Blöndal
Þorsteinn Ólafs
Þórdís Björk Davíðsdóttir
Jóhann Kristinn Jóhannesson
Bjarný Björg Arnórsdóttir
Salvör Þóra Davíðsdóttir
Magga Sigríður Gísladóttir
Upplýsingar
Verðsaga
Byggt 1962
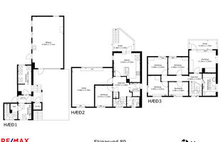
184,9 m²
7 herb.
2 baðherb.
6 svefnh.
Þvottahús
Bílskúr
Útsýni
Sérinngangur
Opið hús: 19. mars 2026
kl. 16:30
til 17:00
Opið hús miðvikudaginn 19. mars kl. 16:30 -17:00. Verið velkomin.
Lýsing
Guðbjörg Helga og Gylfi Jens hjá RE/MAX kynna: Skipasund 80, 104 RVK.
Reisuleg sjö herbergja fjölskyldueign á tveimur hæðum sem hentar stórri fjölskyldu. Íbúðarrýmið er á tveimur efstu hæðunum en innangengt er niður stiga að geymslurými á jarðhæð, þar sem einnig er þvottahús og inngangur í nágrannaíbúðina á jarðhæð. Eigninni fylgir bílskúr og einkabílastæði á lóð.
Uppgefin heildarstærð er 184,9 fm, þar af er bílskúrinn 38,2 fm. Húsið var múrviðgert að utan og veggir málaðir árið 2025. Stutt er í alla helstu þjónustu, verslanir og skóla. Skipasund fyrir þá sem ekki vita í rólegu grónu hverfi, steinsnar frá stofnæðum höfuðborgarsvæðisins.
>>SÆKTU SJÁLFVIRKT SÖLUYFIRLIT HÉRSKOÐAÐU EIGNINA BETUR Í ÞRÍVÍDD MEÐ OG ÁN HÚSGAGNA HÉR
Reisuleg sjö herbergja fjölskyldueign á tveimur hæðum sem hentar stórri fjölskyldu. Íbúðarrýmið er á tveimur efstu hæðunum en innangengt er niður stiga að geymslurými á jarðhæð, þar sem einnig er þvottahús og inngangur í nágrannaíbúðina á jarðhæð. Eigninni fylgir bílskúr og einkabílastæði á lóð.
Uppgefin heildarstærð er 184,9 fm, þar af er bílskúrinn 38,2 fm. Húsið var múrviðgert að utan og veggir málaðir árið 2025. Stutt er í alla helstu þjónustu, verslanir og skóla. Skipasund fyrir þá sem ekki vita í rólegu grónu hverfi, steinsnar frá stofnæðum höfuðborgarsvæðisins.
>>SÆKTU SJÁLFVIRKT SÖLUYFIRLIT HÉRSKOÐAÐU EIGNINA BETUR Í ÞRÍVÍDD MEÐ OG ÁN HÚSGAGNA HÉR
Ár
Fasteignamat
Kaupverð
Stærð
Fermetraverð
3. des. 2015
42.100.000 kr.
52.300.000 kr.
184.9 m²
282.856 kr.
Byggt á upplýsingum úr Þjóðskrá Íslands frá 2006-2026