Löggiltir fasteignasalar innan Félags fasteignasala:
Ástþór Reynir Guðmundsson
Vigdís R. S. Helgadóttir
Guðbjörg Helga Jóhannesdóttir
Gylfi Jens Gylfason
Sigrún Matthea Sigvaldadóttir
Sveinn Gíslason
Páll Guðmundsson
Þórarinn Arnar Sævarsson
Berglind Hólm Birgisdóttir
Þorsteinn Gíslason
Guðrún Lilja Tryggvadóttir
Brynjar Ingólfsson
Guðný Þorsteinsdóttir
Bjarni Blöndal
Þorsteinn Ólafs
Þórdís Björk Davíðsdóttir
Jóhann Kristinn Jóhannesson
Bjarný Björg Arnórsdóttir
Salvör Þóra Davíðsdóttir
Magga Sigríður Gísladóttir
Upplýsingar
Verðsaga
Byggt 2023
73,6 m²
3 herb.
1 baðherb.
2 svefnh.
Útsýni
Sameiginl. inngangur
Bílastæði
Lyfta
Lýsing
Dagbjartur Willardsson löggiltur fasteignasali og RE/MAX kynna, Mýrargötu 35 íbúð 0509 fnr. 252-1817 - Glæsileg 3ra herbergja íbúð með TVEIMUR BÍLASTÆÐUM.
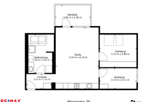
Íbúðin er skráð hjá þjóðskrá 73,6 fm og þar af geymsla 8,2 fm og íbúðarhluti 65,4 fm. Húsið er byggt árið 2023 og er íbúðin á 5. hæð en aðeins ein stór íbúð er á 6. hæðinni.
FÁÐU SENT SÖLUYIRLIT YFIR EIGNINA HÉR.
3D - SKOÐAÐU HÚSIÐ Í ÞRÍVÍDDARUPPTÖKU HÉR - 3D
Nánari lýsing:
Aðkoma: Fallegur sameiginlegur garður með næstu húsum og snyrtileg sameign að inngangi í íbúðina. Fataskápur úr hnotu er í forstofunni.
Stofa/borðstofa: Parket á gólfi. Gólfsíðir gluggar og hurð út á svalir sem snýr til vesturs og yfir sameiginlegan fallegan garð með næstu húsum.
Eldhús: Tengist stofu og borðstofu í stóru alrými. Falleg eldhúsinnrétting frá Axis úr hnotu. Hvítur Quartz steinn í borðplötu. Undirlímdur vaskur. Siemens bakstursofn í vinnuhæð. Spansuðuhelluborð með viftu yfir. Innbyggður kæli/frystiskápur sem og uppþvottavél fylgja með.
Svefnherbergi: Eru tvö og er parket á gólfum þeirra beggja. Fataskápar úr hnotu eru í báðum herbergjum.
Baðherbergi: Flísar á gólfi og hluta veggja við votrými. Baðkar og sturt með glerþili. Falleg innrétting úr hnotu með quartz borðplötu og handlaug. Upphengt salerni. Tengi fyrir þvottavél og þurrkar eru í rýminu. Tveir opnanlegir Velux þakgluggar með strimlagardínum. Handklæðaofn.
Bílastæðahús: Tvö merkt stæði B23 og B24 fylgja með íbúðinni. Búið er að leggja rafmagn að stæðinu til að setja upp rafhleðslustöð.
Geymsla: Geymsla á jarðhæð sem er skráð 8,2fm. Sameiginleg hjóla og vagnageymsla.
Mýrargata 35 er stórglæsileg íbúð með vönduðum innréttingum og tækjum á frábærum stað á Granda. Tvö bílastæði fylgja íbúðinni. Innbú sem er í íbúðinni getur fylgt með í kaupum.
Allar nánari upplýsingar veitir:
Dagbjartur Willardsson lgf hjá RE/MAX í s: 861-7507 eða á daddi@remax.is
Ég býð upp á frítt söluverðmat á þinni eign og veiti góða og lipra þjónustu.
Gjöld sem kaupandi þarf að greiða vegna kaupanna:
1. Stimpilgjald af kaupsamningi - 0,8% af heildarfasteignamati hjá einstaklingum. Sé um fyrstu kaup að ræða er stimpilgjald af kaupsamningi 0,4% af heildarfasteignamati.
2. Stimpilgjald af kaupsamningi - 1,6% af heildarfasteignamati hjá lögaðilum.
3. Þinglýsingargjald af kaupsamningi, veðskuldabréfi, veðleyfi og fl. 2.700 kr. af hverju skjali.
4. Lántökugjald lánastofnunar - breytilegt, sjá gjaldskrá á heimasíðum lánastofnana.
5. Umsýslugjald til fasteignasölu 69.900 kr. m.vsk.
Í lögum um fasteignakaup nr. 40/2002 er kveðið á um ríka skoðunarskyldu kaupenda á fasteignum. Vill RE/MAX því skora á væntanlega kaupendur að kynna sér vel ástand fasteigna fyrir kauptilboðsgerð og leita til þar til bærra sérfræðinga um nánari skoðun.
Íbúðin er skráð hjá þjóðskrá 73,6 fm og þar af geymsla 8,2 fm og íbúðarhluti 65,4 fm. Húsið er byggt árið 2023 og er íbúðin á 5. hæð en aðeins ein stór íbúð er á 6. hæðinni.
FÁÐU SENT SÖLUYIRLIT YFIR EIGNINA HÉR.
3D - SKOÐAÐU HÚSIÐ Í ÞRÍVÍDDARUPPTÖKU HÉR - 3D
Nánari lýsing:
Aðkoma: Fallegur sameiginlegur garður með næstu húsum og snyrtileg sameign að inngangi í íbúðina. Fataskápur úr hnotu er í forstofunni.
Stofa/borðstofa: Parket á gólfi. Gólfsíðir gluggar og hurð út á svalir sem snýr til vesturs og yfir sameiginlegan fallegan garð með næstu húsum.
Eldhús: Tengist stofu og borðstofu í stóru alrými. Falleg eldhúsinnrétting frá Axis úr hnotu. Hvítur Quartz steinn í borðplötu. Undirlímdur vaskur. Siemens bakstursofn í vinnuhæð. Spansuðuhelluborð með viftu yfir. Innbyggður kæli/frystiskápur sem og uppþvottavél fylgja með.
Svefnherbergi: Eru tvö og er parket á gólfum þeirra beggja. Fataskápar úr hnotu eru í báðum herbergjum.
Baðherbergi: Flísar á gólfi og hluta veggja við votrými. Baðkar og sturt með glerþili. Falleg innrétting úr hnotu með quartz borðplötu og handlaug. Upphengt salerni. Tengi fyrir þvottavél og þurrkar eru í rýminu. Tveir opnanlegir Velux þakgluggar með strimlagardínum. Handklæðaofn.
Bílastæðahús: Tvö merkt stæði B23 og B24 fylgja með íbúðinni. Búið er að leggja rafmagn að stæðinu til að setja upp rafhleðslustöð.
Geymsla: Geymsla á jarðhæð sem er skráð 8,2fm. Sameiginleg hjóla og vagnageymsla.
Mýrargata 35 er stórglæsileg íbúð með vönduðum innréttingum og tækjum á frábærum stað á Granda. Tvö bílastæði fylgja íbúðinni. Innbú sem er í íbúðinni getur fylgt með í kaupum.
Allar nánari upplýsingar veitir:
Dagbjartur Willardsson lgf hjá RE/MAX í s: 861-7507 eða á daddi@remax.is
Ég býð upp á frítt söluverðmat á þinni eign og veiti góða og lipra þjónustu.
Gjöld sem kaupandi þarf að greiða vegna kaupanna:
1. Stimpilgjald af kaupsamningi - 0,8% af heildarfasteignamati hjá einstaklingum. Sé um fyrstu kaup að ræða er stimpilgjald af kaupsamningi 0,4% af heildarfasteignamati.
2. Stimpilgjald af kaupsamningi - 1,6% af heildarfasteignamati hjá lögaðilum.
3. Þinglýsingargjald af kaupsamningi, veðskuldabréfi, veðleyfi og fl. 2.700 kr. af hverju skjali.
4. Lántökugjald lánastofnunar - breytilegt, sjá gjaldskrá á heimasíðum lánastofnana.
5. Umsýslugjald til fasteignasölu 69.900 kr. m.vsk.
Í lögum um fasteignakaup nr. 40/2002 er kveðið á um ríka skoðunarskyldu kaupenda á fasteignum. Vill RE/MAX því skora á væntanlega kaupendur að kynna sér vel ástand fasteigna fyrir kauptilboðsgerð og leita til þar til bærra sérfræðinga um nánari skoðun.
Ár
Fasteignamat
Kaupverð
Stærð
Fermetraverð
30. apr. 2024
62.400.000 kr.
97.990.000 kr.
73.6 m²
1.331.386 kr.
Byggt á upplýsingum úr Þjóðskrá Íslands frá 2006-2026