Upplýsingar
Verðsaga
Byggt 1986
68,8 m²
2 herb.
1 baðherb.
1 svefnh.
Þvottahús
Sameiginl. inngangur
Opið hús: 19. mars 2026
kl. 17:00
til 17:30
Opið hús: Hrísmóar 5, 210 Garðabær, Íbúð merkt: 01 02 02. Eignin verður sýnd fimmtudaginn 19. mars 2026 milli kl. 17:00 og kl. 17:30.
Lýsing
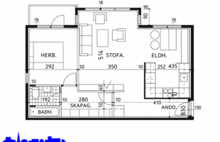
Hraunhamar og Einar Örn lgf kynna í einkasölu: Björt, falleg og mikið endurnýjuð tveggja herbergja íbúð á 2. hæð við Hrísmóa 5 í Garðabæ. Eignin er skráð 68,8 fm en þar af er geymsla 7,3 fm. Viðamiklar framkvæmdir hafa verið unnar íbúðinni frá árinu 2019. Eldhús og Baðherbergi voru endurnýjuð, ásamt innihurðum og forstofuskápum. Árið 2021 var sett nýtt mynddyrasímakerfi í húsið. Sumarið 2025 var farið í þakviðgerðir.
Frábær fyrstu kaup.
Nánari lýsing:
Forstofa með parketlögðu gólfi, fatahengi og góðum fataskápum.
Stofan er björt,opin og rúmgóð með parketi á gólfi.
Eldhús með dökkri innréttingu með viðarplötu. Innbyggð tæki, gott skápapláss og fallegar flísar á gólfi.
Svefnherbergi er með parketi á gólfi með útengi á góðar hornsvalir.
Baðherbergið er fallega innréttað og flísalagt að hluta. Upphengt salerni, baðkar með sturtu, innrétting með handlaug og speglaskápur.
Þvottahús í sameign með tengi fyrir fimm íbúðir í húsinu.
Sérgeymsla 7,3fm, er í sameign ásamt sameiginlegri hjóla- og vagnageymslu.
Um er að ræða fallega eign sem er staðsett í hjarta Garðarbæjar, í göngufæri við matvöruverslanir, heilsugæslu, tannlækna, veitingastaði, ísbúð, apótek, snyrtistofu ofl.
Nánari upplýsingar veitir:
Einar Örn Ágústsson - löggiltur fasteignasali
einar@hraunhamar.is / sími 888-7979
Frábær fyrstu kaup.
Nánari lýsing:
Forstofa með parketlögðu gólfi, fatahengi og góðum fataskápum.
Stofan er björt,opin og rúmgóð með parketi á gólfi.
Eldhús með dökkri innréttingu með viðarplötu. Innbyggð tæki, gott skápapláss og fallegar flísar á gólfi.
Svefnherbergi er með parketi á gólfi með útengi á góðar hornsvalir.
Baðherbergið er fallega innréttað og flísalagt að hluta. Upphengt salerni, baðkar með sturtu, innrétting með handlaug og speglaskápur.
Þvottahús í sameign með tengi fyrir fimm íbúðir í húsinu.
Sérgeymsla 7,3fm, er í sameign ásamt sameiginlegri hjóla- og vagnageymslu.
Um er að ræða fallega eign sem er staðsett í hjarta Garðarbæjar, í göngufæri við matvöruverslanir, heilsugæslu, tannlækna, veitingastaði, ísbúð, apótek, snyrtistofu ofl.
Nánari upplýsingar veitir:
Einar Örn Ágústsson - löggiltur fasteignasali
einar@hraunhamar.is / sími 888-7979
Ár
Fasteignamat
Kaupverð
Stærð
Fermetraverð
13. nóv. 2024
55.450.000 kr.
58.000.000 kr.
10202 m²
5.685 kr.
24. apr. 2019
31.650.000 kr.
35.200.000 kr.
79.2 m²
444.444 kr.
Byggt á upplýsingum úr Þjóðskrá Íslands frá 2006-2026