Upplýsingar
Byggt 2024
91,5 m²
3 herb.
2 svefnh.
Lýsing
BÓKIÐ SKOÐUN - SÝNUM SAMDÆGURS - Einar s 888-7979, Hlynur s. 698-2603, Glódís s. 659-0510, Helgi s. 893-2233
Hraunhamar kynnir: Glæsilegar nýjar 2-4 herbergja íbúðir á frábærum stað í vönduðu lyftuhúsi í Hamraneshverfinu í Hafnarfirði. Íbúðirnar skilast fullbúnar með gólfefnum og er sér lofskiptakerfi í hverri íbúð.
Íbúðirnar eru tilbúnar til afhendingar. Mögulegt er að kaupa sér bílastæði í bílakjallara á 4 milljónir kr.
Möguleiki á áðeins 10% útborgun!
UTS20 sjóðurinn býður sameignarlausn í sínum verkefnum.
Þú leggur fram að lágmarki 10% af kaupverði fasteignar og UTS20 leggur til allt að 20% á móti.
Þið kaupið eignina saman, en þú býrð í henni með 100% afnotarétti.
Sjá nánar á heimasíðu sjóðsins hér.
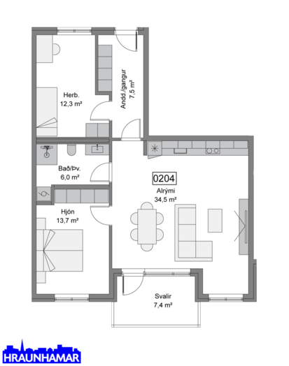
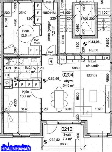
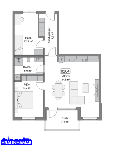
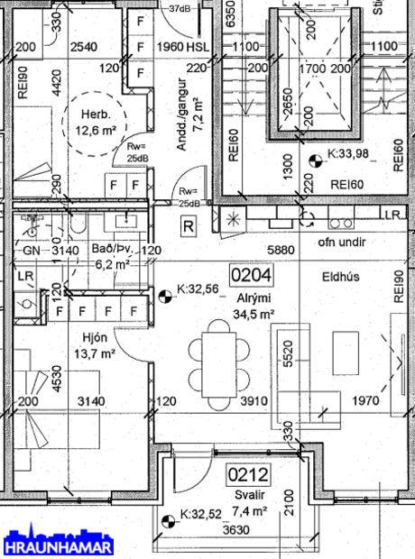
Íbúð 203 er 3ja herbergja íbúð skráð 109,7 fm þar af 10,2 fm geymsla.
Smelltu hér fyrir heimasíðu verkefnisins.
Nánari lýsing skv. teikningu :
Forstofa með fataskáp.
Gott opið alrými.
Björt stofa og borðstofa og þaðan útgengt út á svalir.
Eldhúsinnrétting er frá Nobilia, steinplata á borðum.
Eldhúsinnrétting er fullbúin með blöndunartækjum og eldhústækjum þ.e. helluborði, viftu í innréttingu eða eyjuháfi yfir helluborði þar sem það á við, innbyggðum ísskáp, innbyggðri uppþvottavél og ofni.
Rúmgott svefnherbergi með skápum.
Hjónaherbergi með skápum.
Flísalagt baðherbergi með innréttingu, upphengdu salerni og sturta. Tengi fyrir þvottavél og þurrkara.
Ath. myndir eru af annarri íbúð, efnisval innréttinga og gólfefna er það sama.
Kaupandi borgar skipulagsgjald þegar þess verður krafist sem er 0,3 % af væntu brunabótamati eignarinnar.
Hægt er að nálgast skilalýsingu og fá nánari upplýsingar hjá Hraunhamri fasteignasölu.
Bókið skoðun hjá sölumönnum Hraunhamars:
Einar Örn Ágústsson, löggiltur fasteignasali, s. 888-7979, einar@hraunhamar.is
Hlynur Halldórsson, löggiltur fasteignasali, s. 698-2603, hlynur@hraunhamar.is
Helgi Jón Harðarson, sölust. s. 893-2233, helgi@hraunhamar.is
Glódís Helgadóttir, löggiltur fasteignasali s. 659-0510, glodis@hraunhamar.is
Gjöld sem kaupandi þarf að standa straum af vegna kaupanna:
1. Stimpilgjald af kaupsamningi, fyrstu kaup (0,4%), almenn kaup (0,8%), lögaðilar (1,6%) af heildarfasteignamati.
2. Þinglýsingargjald af kaupsamningi, veðskuldabréfi, mögulegu veðleyfi o.fl. – kr. 3,800 kr. af hverju skjali.
3. Lántökugjald lánastofnunar er skv. verðskrá viðkomandi lánastofnunar.
4. Umsýslugjald til fasteignasölu skv. þjónustusamningi
Hraunhamar er elsta fasteignasala Hafnarfjarðar, stofnuð 1983
Hraunhamar, í farabroddi í 40 ár ! – Hraunhamar.is
Smelltu hér til að fá frítt söluverðmat.
Hraunhamar kynnir: Glæsilegar nýjar 2-4 herbergja íbúðir á frábærum stað í vönduðu lyftuhúsi í Hamraneshverfinu í Hafnarfirði. Íbúðirnar skilast fullbúnar með gólfefnum og er sér lofskiptakerfi í hverri íbúð.
Íbúðirnar eru tilbúnar til afhendingar. Mögulegt er að kaupa sér bílastæði í bílakjallara á 4 milljónir kr.
Möguleiki á áðeins 10% útborgun!
UTS20 sjóðurinn býður sameignarlausn í sínum verkefnum.
Þú leggur fram að lágmarki 10% af kaupverði fasteignar og UTS20 leggur til allt að 20% á móti.
Þið kaupið eignina saman, en þú býrð í henni með 100% afnotarétti.
Sjá nánar á heimasíðu sjóðsins hér.
Íbúð 203 er 3ja herbergja íbúð skráð 109,7 fm þar af 10,2 fm geymsla.
Smelltu hér fyrir heimasíðu verkefnisins.
Nánari lýsing skv. teikningu :
Forstofa með fataskáp.
Gott opið alrými.
Björt stofa og borðstofa og þaðan útgengt út á svalir.
Eldhúsinnrétting er frá Nobilia, steinplata á borðum.
Eldhúsinnrétting er fullbúin með blöndunartækjum og eldhústækjum þ.e. helluborði, viftu í innréttingu eða eyjuháfi yfir helluborði þar sem það á við, innbyggðum ísskáp, innbyggðri uppþvottavél og ofni.
Rúmgott svefnherbergi með skápum.
Hjónaherbergi með skápum.
Flísalagt baðherbergi með innréttingu, upphengdu salerni og sturta. Tengi fyrir þvottavél og þurrkara.
Ath. myndir eru af annarri íbúð, efnisval innréttinga og gólfefna er það sama.
Kaupandi borgar skipulagsgjald þegar þess verður krafist sem er 0,3 % af væntu brunabótamati eignarinnar.
Hægt er að nálgast skilalýsingu og fá nánari upplýsingar hjá Hraunhamri fasteignasölu.
Bókið skoðun hjá sölumönnum Hraunhamars:
Einar Örn Ágústsson, löggiltur fasteignasali, s. 888-7979, einar@hraunhamar.is
Hlynur Halldórsson, löggiltur fasteignasali, s. 698-2603, hlynur@hraunhamar.is
Helgi Jón Harðarson, sölust. s. 893-2233, helgi@hraunhamar.is
Glódís Helgadóttir, löggiltur fasteignasali s. 659-0510, glodis@hraunhamar.is
Gjöld sem kaupandi þarf að standa straum af vegna kaupanna:
1. Stimpilgjald af kaupsamningi, fyrstu kaup (0,4%), almenn kaup (0,8%), lögaðilar (1,6%) af heildarfasteignamati.
2. Þinglýsingargjald af kaupsamningi, veðskuldabréfi, mögulegu veðleyfi o.fl. – kr. 3,800 kr. af hverju skjali.
3. Lántökugjald lánastofnunar er skv. verðskrá viðkomandi lánastofnunar.
4. Umsýslugjald til fasteignasölu skv. þjónustusamningi
Hraunhamar er elsta fasteignasala Hafnarfjarðar, stofnuð 1983
Hraunhamar, í farabroddi í 40 ár ! – Hraunhamar.is
Smelltu hér til að fá frítt söluverðmat.