Upplýsingar
Byggt 2024
95,7 m²
3 herb.
1 baðherb.
2 svefnh.
Sameiginl. inngangur
Bílastæði
Lyfta
Opið hús: 9. apríl 2026
kl. 17:00
til 17:30
Lýsing
Kynnum nýja leið fyrir kaupendur inná fasteignamarkaðinn, 10% eigi fé, allt að 25% Kauplykill, og 65% húsnæðislán, sjá nánar hér KAUPLYKILL
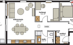
Fasteignasalan TORG kynnir: Glæsileg 3ja herbergja enda-íbúð með sér inngangi af svölum. Íbúð merkt:0506, sem skilast fullbúin án gólfefna. Íbúðin er alls 95,7fm að stærð á 5. hæð í góðu lyftuhúsi. Íbúðin sjálf er skráð 88,2fm og skiptist í anddyri, alrými með eldhúsi og stofu með útgengi út á svalir, 2 svefnherbergi, baðherbergi, þvottaherbergi og sér geymslu í sameign merkt: , skráð 7,5fm. Allar nánari upplýsingar, teikningar, og skilalýsingu er hægt að nálgast hjá Skúla lgfs. Fasteignasala í síma 869-7014 eða skuli@fstorg.is
Sækja söluyfirlit hér
Sjá heimasíðu verkefnisins Skuggi
Nánari lýsing: Nýjar íbúðir í ört stækkandi hverfi í Hafnarfirði við Baughamar 1-3 í Hamranesi í Hafnarfirði. Um er að ræða stigagang í Baughamri 1 sem er sex hæða, alls 33 íbúðir. Byggingaraðili er Skuggi bygginarfélag. Um er að ræða fjölbýlishús, með bílastæðahúsi. Eitt bílastæði tilheyrir hverri íbúð, annað hvort á lóð eða í bílastæðahúsi. Húsin eru í svansvottuðu ferli sem tryggir að þau eru betri fyrir umhverfið og heisluna. Græn lán hagstæðari kjör á húsnæðislánum við fjármögnun á vistvænu húsnæði sem hefur hlotið viðurkennda umhverfisvottun
Áætluð afhending fyrstu íbúða er feb/mars 2025. Allar nánari upplýsingar, teikningar, og skilalýsingu er hægt að nálgast hjá Skúla lgfs. Fasteignasala í síma 869-7014 eða skuli@fstorg.is
Fasteignasalan TORG kynnir: Glæsileg 3ja herbergja enda-íbúð með sér inngangi af svölum. Íbúð merkt:0506, sem skilast fullbúin án gólfefna. Íbúðin er alls 95,7fm að stærð á 5. hæð í góðu lyftuhúsi. Íbúðin sjálf er skráð 88,2fm og skiptist í anddyri, alrými með eldhúsi og stofu með útgengi út á svalir, 2 svefnherbergi, baðherbergi, þvottaherbergi og sér geymslu í sameign merkt: , skráð 7,5fm. Allar nánari upplýsingar, teikningar, og skilalýsingu er hægt að nálgast hjá Skúla lgfs. Fasteignasala í síma 869-7014 eða skuli@fstorg.is
Sækja söluyfirlit hér
Sjá heimasíðu verkefnisins Skuggi
Nánari lýsing: Nýjar íbúðir í ört stækkandi hverfi í Hafnarfirði við Baughamar 1-3 í Hamranesi í Hafnarfirði. Um er að ræða stigagang í Baughamri 1 sem er sex hæða, alls 33 íbúðir. Byggingaraðili er Skuggi bygginarfélag. Um er að ræða fjölbýlishús, með bílastæðahúsi. Eitt bílastæði tilheyrir hverri íbúð, annað hvort á lóð eða í bílastæðahúsi. Húsin eru í svansvottuðu ferli sem tryggir að þau eru betri fyrir umhverfið og heisluna. Græn lán hagstæðari kjör á húsnæðislánum við fjármögnun á vistvænu húsnæði sem hefur hlotið viðurkennda umhverfisvottun
Áætluð afhending fyrstu íbúða er feb/mars 2025. Allar nánari upplýsingar, teikningar, og skilalýsingu er hægt að nálgast hjá Skúla lgfs. Fasteignasala í síma 869-7014 eða skuli@fstorg.is