Löggiltir fasteignasalar innan Félags fasteignasala:
Sigurður J. Tyrfingsson
Haraldur Björnsson
Vista
svg

157

svg

146  Skoðendur

svg

Skráð  23. mar. 2026

parhús

Norðurbyggð 22A

815 Þorlákshöfn

67.500.000 kr.

600.000 þ.kr./m2
Fasteignanúmer

F2212555

Fasteignamat

52.350.000 kr.

Brunabótamat

66.650.000 kr.

Áhvílandi

0 kr.

Arion banki – Reikna lán
Upplýsingar
svg
Byggt 1991
svg
112,5 m²
svg
4 herb.
svg
1 baðherb.
svg
3 svefnh.
svg
Þvottahús
svg
Sérinngangur

Lýsing

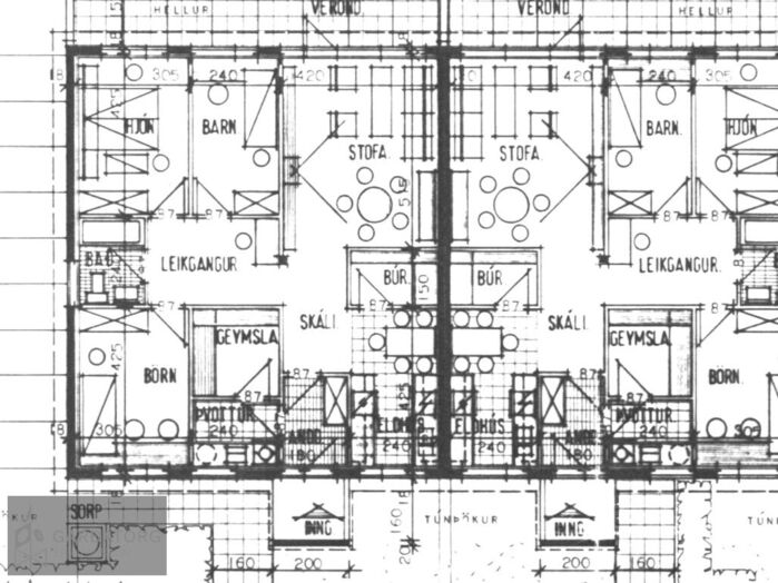
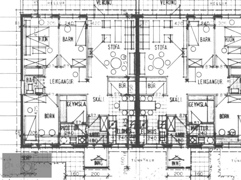
Garðatorg eignamiðlun kynnir í einkasölu: Norðurbyggð 22A, Þorlákshöfn.  Rúmgott 3ja herbergja parhús í lokuðum botnlanga. Utangengt er úr stofu á skjólgóða verönd.  

Nánari lýsing:
-  Rúmgóð forstofa með flísum á gólfi.
-  þrjú svefnherbergi með góðum fataskápum og flísum og parketi á gólfum.
-  Gengið úr stofunni á skjólgóða verönd. 
-  Eldhús með góðri innréttingu og parketi á gólfi.
-  Baðherbergi með innréttingu, baðkar og flísum á gólfi og veggjum. 
-  Þvottahús og geymsla með góðri innréttingu með vinnuborði og skolvask.  Gólf flísalagt.
-  Útigeymsla á lóð. 
-  Garðurinn er gróinn og með skjólgóðri verönd.
-  Steypt stétt er framan við húsið. 

Upplýsingar veitir .Ragnar G Þórðarson lögg. fasteignasali ragnar@gardatorg.is, S: 899 5901
 

Í lögum um fasteignakaup nr. 40/2002 er kveðið á um ríka skoðunarskyldu kaupenda á fasteignum. Vill því Garðatorg eignamiðlun skora á væntanlega kaupendur að kynna sér vel ástand fasteigna fyrir kauptilboðsgerð og leita til þar til bærra sérfræðinga um nánari skoðun ef með þarf.
Gjöld sem kaupandi þarf að standa straum af vegna kaupanna:
1. Stimpilgjald af kaupsamningi - 0.8% af heildarfasteignamati / 1.6% fyrir lögaðila. (0.4% við fyrstu kaup einstaklinga).
2. Þinglýsingagjald af kaupsamningi, veðskuldabréfi, veðleyfi o.fl.- kr. 2.700 af hverju skjali.
3. Lántökugjald lánastofnunar 
4. Umsýsluþóknun til fasteignasölu, sbr.kauptilboð

Garðatorg eignamiðlun ehf

Garðatorg eignamiðlun ehf

Garðatorg 7, 210 Garðabæ
Garðatorg eignamiðlun ehf

Garðatorg eignamiðlun ehf

Garðatorg 7, 210 Garðabæ