Löggiltir fasteignasalar innan Félags fasteignasala:
Freyja Sigurðardóttir
Ágústa Hauksdóttir
Andrea Guðrún Gunnlaugsdóttir
Glódís Helgadóttir
Hlynur Halldórsson
Vista
atvinnuhúsnæði

Rauðhella 10

221 Hafnarfjörður

72.000.000 kr.

486.158 þ.kr./m2
Fasteignanúmer

F2242584

Fasteignamat

39.350.000 kr.

Brunabótamat

63.850.000 kr.

Áhvílandi

0 kr.

Arion banki – Reikna lán
Upplýsingar
Verðsaga
svg
Byggt 1999
svg
148,1 m²
svg
1 herb.
svg
1 baðherb.
svg
Sérinngangur

Lýsing

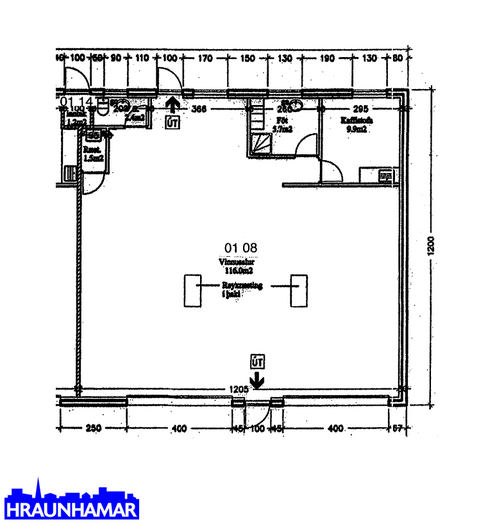
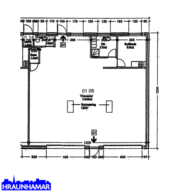
Hraunhamar kynnir atvinnuhúsnæði til Sölu eða leigu á í fínu atvinnuhúsnæði vel staðsett í Helluhverfinu í Hafnarfirði, í grunninn er um tvö atvinnubil að ræða en er búið að sameina í eitt og það ætti að vera auðvelt að skipta þessum bilum upp í tvö bil e.t.v. Húsnæðið er á einu fastanúmeri. Húsið er 148,1 fm auk þess er óskráð milliloft cirka 50 fm. 

Nánari lýsing:
Rúmgott vinnurými, tvær innkeyrsluhurðir og útidyrahurð, Lofthæðin er cirka frá 4,3 metrar upp í 5,5 metrar þar sem hún er mest. Á efri hæðinni er eldhús og geymslurými. Salerni á neðri hæðinni. 
Verið er að skipta um glugga og útidyrahurð baka til sem mun seljandi greiða þann kostnað. 

Húsnæðið laust strax. 

Nánari upplýsingar veitir Hlynur Halldórsson,löggiltur fasteignasali s. 698-2603, hlynur@hraunhamar.is




 

Hraunhamar fasteignasala

Hraunhamar fasteignasala

Bæjarhraun 10, 220 Hafnarfjörður
Ár
Fasteignamat
Kaupverð
Stærð
Fermetraverð
28. des. 2010
20.280.000 kr.
15.563.000 kr.
148.1 m²
105.084 kr.
Byggt á upplýsingum úr Þjóðskrá Íslands frá 2006-2026
Hraunhamar fasteignasala

Hraunhamar fasteignasala

Bæjarhraun 10, 220 Hafnarfjörður