Löggiltir fasteignasalar innan Félags fasteignasala:
Hannes Steindórsson
Bogi Molby Pétursson
Guðrún Antonsdóttir
Heimir Hallgrímsson
Hrafnkell P. H. Pálmason
Viðar Marinósson
Elías Haraldsson
Kristján Þórir Hauksson
Albert Bjarni Úlfarsson
Ragnar Þorsteinsson
Þórey Ólafsdóttir
Andri Freyr Halldórsson
Upplýsingar
Byggt 2024
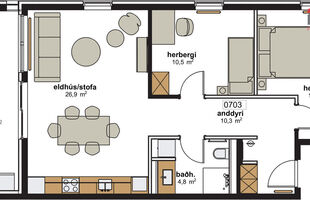
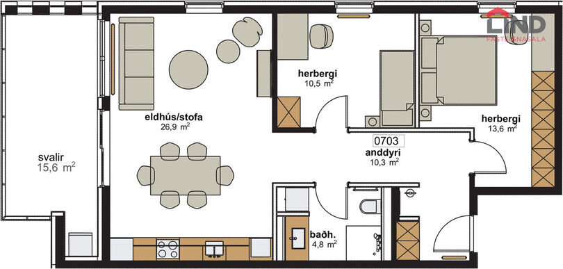
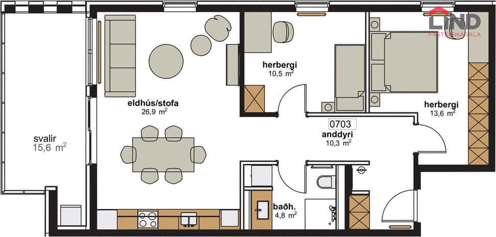
83,3 m²
3 herb.
1 baðherb.
2 svefnh.
Sameiginl. inngangur
Bílastæði
Lyfta
Lýsing
Íbúð 703 er þriggja herbergja með bílastæði í kjallara.
LIND Fasteignasala kynnir: Nýjar og glæsilegar íbúðir við Hringhamar 17-19 í nýju hverfi í Hamranesi í Hafnarfirði. Íbúðirnar afhendast án gólfefna. Allar íbúðir er búnar með sérstöku loftræstiskerfi. Umframgæði sem
tryggja mjög góð loftskipti og góða nýtingu á varma. Eldhúsinnrétting er sérsmíðuð af vandaðri gerð frá Axis ásamt vaski og Grohe blöndunartækjum frá Byko. Helluborð og blástursofn eru af gerðinni AEG frá Ormsson (sjá nánar á www.ormsson.is) Gufugleypir í eldhúsi er einnig frá Ormsson. ATH húsið er í Svansvottunarferli.
// VILDARKORT LINDAR //
Við vekjum sérstaka athygli á því að allir kaupendur hjá Lind fasteignasölu fá Vildarkort Lindar sem veitir 30% afslátt hjá samstarfsaðilum okkar, en þeir eru:
Parki (gólfefni), Z brautir og gluggatjöld, Húsgagnahöllin, Betra bak, Dorma, Flügger litir, S. Helgason steinsmiðja, Vídd og Húsasmiðjan.
Íbúð 703: 83,3 fm 3ja herbergja íbúð á 7. hæð. Íbúðin er 83,3 fm þar af 6.2 fm geymsla, bílastæði í kjallara fylgir íbúðinni.
Allar nánari upplýsingar á heimasíðu verkefnisins www.hringhamar.is
ALLAR NÁNARI UPPLÝSINGAR VEITA:
KRISTJÁN ÞÓRIR HAUKSSON Í S: 696-1122 / KRISTJAN@FASTLIND.IS
ANDRI FREYR HALLDÓRSSON Í S: 762-6162 / ANDRI@FASTLIND.IS
Gólf íbúða eru fleytt og tilbúin fyrir endanlegt gólfefni, nema í baðherbergi og í þvottahúsi en þar eru flísar á gólfum. Einnig eru flísar á veggjum baðherbergja, flísar eru frá Parka. Fataskápar í herbergjum og forstofu eru af vandaðri gerð frá Axis. Borðplötur eru í eldhúsi, baði og þvottahúsi þar sem við á og eru frá Axis.
Eldhúsinnrétting er sérsmíðuð af vandaðri gerð frá Axis ásamt vaski og Grohe blöndunartækjum frá Byko. Helluborð og blástursofn eru af gerðinni AEG frá Ormsson (sjá nánar á www.ormsson.is) Gufugleypir í eldhúsi er einnig frá Ormsson.
Baðherbergi: Baðinnrétting kemur frá Axis. Hreinlætistæki og handklæðaofn eru frá Byko. Salernið er upphengt og innbyggt. Hitastýrð blöndunartæki verða við sturtu. Gólf eru flísalögð og veggir að hluta upp í loft
Loftræsting: Sérstakt loftræstikerfi er fyrir hverja íbúð. Kerfið hefur loftskipti í íbúðinni með því að taka loft að utan og dæla því inn í vistarverurnar, herbergi og stofu, og soga lofti út úr baði, þvottahúsi og eldhúsi. Kerfið er með varmaendurvinnslu og nýtir við bestu aðstæður um 80% af varmanum. Kerfið er með loftsíum og er allt loft sem kemur inn síað. Ekki á að vera þörf á að opna glugga í íbúðinni til loftunnar.
Frágangur sameignar: Anddyri/stigahús er lokað og er það flísalagt á aðkomuhæð með uppsettum póstkössum. Stigar og stigapallar eru teppalagðir, handrið eru á stigagöngum. Allar útidyrahurðir frágengnar og er rafmagnsopnun á aðalinngöngum. Sameign er upphituð með ofnakerfi. Raflagnir í sameign eru fullbúnar með ljósum, sbr. teikningar. Loftræstilagnir eru lagðar skv. teikningu.
Sameign: Í bílgeymslu er lagt grunnkerfi fyrir bílhleðslu. Eigendur stæða í bílgeymslu
geta sett upp eigin hleðslustöð og tengt inn á grunnkerfi bílgeymslu
Skólar og leikskólar eru í nágrenni og eru öruggar göngu- og hjólaleiðir að þeim. Einnig er fyrirhugað að nýr leikskóli rísi í næsta nágrenni.
Hverfið er í nálægð við náttúru og er staðsetningin einstök með tilliti til útivistar. Í næsta nágrenni er Ástjörn, Hvaleyrarvatn og ein vinsælasta gönguleiðin í Hafnarfirði, upp á Helgafell.
Eignin afhendist skv meðfylgjandi skilalýsingu.
ALLAR NÁNARI UPPLÝSINGAR VEITA:
KRISTJÁN ÞÓRIR HAUKSSON Í S: 696-1122 / KRISTJAN@FASTLIND.IS
ANDRI FREYR HALLDÓRSSON Í S: 762-6162 / ANDRI@FASTLIND.IS
Gjöld sem kaupandi þarf að standa straum af vegna kaupanna:
1. Stimpilgjald af kaupsamningi - 0,8% af heildarfasteignamati, lögaðili greiðir 1,6%
2. Þinglýsingargjald af kaupsamningi, veðskuldabréfi, mögulegu veðleyfi o.fl. - kr. 2.700 af hverju skjali.
3. Lántökugjald lánastofnunar. Nánari upplýsingar á t.d. heimasíðu lánastofnana.
4. Umsýslugjald til fasteignasölu 74.900.- með vsk.
5. Kaupandi greiðir skipulagsgjald, 0,3% af brunabótamati, þegar það verður lagt á
LIND Fasteignasala kynnir: Nýjar og glæsilegar íbúðir við Hringhamar 17-19 í nýju hverfi í Hamranesi í Hafnarfirði. Íbúðirnar afhendast án gólfefna. Allar íbúðir er búnar með sérstöku loftræstiskerfi. Umframgæði sem
tryggja mjög góð loftskipti og góða nýtingu á varma. Eldhúsinnrétting er sérsmíðuð af vandaðri gerð frá Axis ásamt vaski og Grohe blöndunartækjum frá Byko. Helluborð og blástursofn eru af gerðinni AEG frá Ormsson (sjá nánar á www.ormsson.is) Gufugleypir í eldhúsi er einnig frá Ormsson. ATH húsið er í Svansvottunarferli.
// VILDARKORT LINDAR //
Við vekjum sérstaka athygli á því að allir kaupendur hjá Lind fasteignasölu fá Vildarkort Lindar sem veitir 30% afslátt hjá samstarfsaðilum okkar, en þeir eru:
Parki (gólfefni), Z brautir og gluggatjöld, Húsgagnahöllin, Betra bak, Dorma, Flügger litir, S. Helgason steinsmiðja, Vídd og Húsasmiðjan.
Íbúð 703: 83,3 fm 3ja herbergja íbúð á 7. hæð. Íbúðin er 83,3 fm þar af 6.2 fm geymsla, bílastæði í kjallara fylgir íbúðinni.
Allar nánari upplýsingar á heimasíðu verkefnisins www.hringhamar.is
ALLAR NÁNARI UPPLÝSINGAR VEITA:
KRISTJÁN ÞÓRIR HAUKSSON Í S: 696-1122 / KRISTJAN@FASTLIND.IS
ANDRI FREYR HALLDÓRSSON Í S: 762-6162 / ANDRI@FASTLIND.IS
Gólf íbúða eru fleytt og tilbúin fyrir endanlegt gólfefni, nema í baðherbergi og í þvottahúsi en þar eru flísar á gólfum. Einnig eru flísar á veggjum baðherbergja, flísar eru frá Parka. Fataskápar í herbergjum og forstofu eru af vandaðri gerð frá Axis. Borðplötur eru í eldhúsi, baði og þvottahúsi þar sem við á og eru frá Axis.
Eldhúsinnrétting er sérsmíðuð af vandaðri gerð frá Axis ásamt vaski og Grohe blöndunartækjum frá Byko. Helluborð og blástursofn eru af gerðinni AEG frá Ormsson (sjá nánar á www.ormsson.is) Gufugleypir í eldhúsi er einnig frá Ormsson.
Baðherbergi: Baðinnrétting kemur frá Axis. Hreinlætistæki og handklæðaofn eru frá Byko. Salernið er upphengt og innbyggt. Hitastýrð blöndunartæki verða við sturtu. Gólf eru flísalögð og veggir að hluta upp í loft
Loftræsting: Sérstakt loftræstikerfi er fyrir hverja íbúð. Kerfið hefur loftskipti í íbúðinni með því að taka loft að utan og dæla því inn í vistarverurnar, herbergi og stofu, og soga lofti út úr baði, þvottahúsi og eldhúsi. Kerfið er með varmaendurvinnslu og nýtir við bestu aðstæður um 80% af varmanum. Kerfið er með loftsíum og er allt loft sem kemur inn síað. Ekki á að vera þörf á að opna glugga í íbúðinni til loftunnar.
Frágangur sameignar: Anddyri/stigahús er lokað og er það flísalagt á aðkomuhæð með uppsettum póstkössum. Stigar og stigapallar eru teppalagðir, handrið eru á stigagöngum. Allar útidyrahurðir frágengnar og er rafmagnsopnun á aðalinngöngum. Sameign er upphituð með ofnakerfi. Raflagnir í sameign eru fullbúnar með ljósum, sbr. teikningar. Loftræstilagnir eru lagðar skv. teikningu.
Sameign: Í bílgeymslu er lagt grunnkerfi fyrir bílhleðslu. Eigendur stæða í bílgeymslu
geta sett upp eigin hleðslustöð og tengt inn á grunnkerfi bílgeymslu
Skólar og leikskólar eru í nágrenni og eru öruggar göngu- og hjólaleiðir að þeim. Einnig er fyrirhugað að nýr leikskóli rísi í næsta nágrenni.
Hverfið er í nálægð við náttúru og er staðsetningin einstök með tilliti til útivistar. Í næsta nágrenni er Ástjörn, Hvaleyrarvatn og ein vinsælasta gönguleiðin í Hafnarfirði, upp á Helgafell.
Eignin afhendist skv meðfylgjandi skilalýsingu.
ALLAR NÁNARI UPPLÝSINGAR VEITA:
KRISTJÁN ÞÓRIR HAUKSSON Í S: 696-1122 / KRISTJAN@FASTLIND.IS
ANDRI FREYR HALLDÓRSSON Í S: 762-6162 / ANDRI@FASTLIND.IS
Gjöld sem kaupandi þarf að standa straum af vegna kaupanna:
1. Stimpilgjald af kaupsamningi - 0,8% af heildarfasteignamati, lögaðili greiðir 1,6%
2. Þinglýsingargjald af kaupsamningi, veðskuldabréfi, mögulegu veðleyfi o.fl. - kr. 2.700 af hverju skjali.
3. Lántökugjald lánastofnunar. Nánari upplýsingar á t.d. heimasíðu lánastofnana.
4. Umsýslugjald til fasteignasölu 74.900.- með vsk.
5. Kaupandi greiðir skipulagsgjald, 0,3% af brunabótamati, þegar það verður lagt á