Upplýsingar
Verðsaga
Byggt 1962
156,9 m²
6 herb.
1 baðherb.
5 svefnh.
Þvottahús
Bílskúr
Sérinngangur
Opið hús: 29. mars 2026
kl. 16:00
til 16:45
Opið hús: Grenigrund 8, 200 Kópavogur, Íbúð merkt: 01 02 01. Eignin verður sýnd sunnudaginn 29. mars 2026 milli kl. 16:00 og kl. 16:45.
Lýsing
Valhöll fasteignasala kynnir bjarta og rúmgóða efri sérhæð í rólegu þríbýli með sér inngangi og stórum bílskúr á þessum vinsæla stað í Grundunum, Kópavogi. Fimm svefnherbergi. Eldhús og baðherbergi endurnýjuð á síðustu árum.
Bókið skoðun hjá Óskari H. Bjarnasen lögm. og lögg. fasteignasala í gegnum netfangið oskar@valholl.is eða í síma 691-1931.
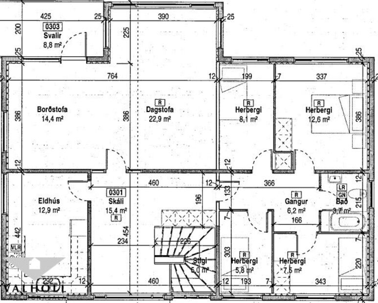
Skv. fasteignayfirliti HMS er eignin skráð 156.9 fm. að stærð. og skiptist Hæðin er skráð 124, 9 fm og bílskúr er 32 fm.
Eignin skiptist í forstofu, alrými sem hefur að geyma rúmgott hol og stofu. Herbergi inn af stofu. Nýlegt eldhús. Svefnherbergisgang þar sem fjögur svefnherbergi eru. Nýlega standsett baðherbergi. Einkaþvottahús og geymsla eru í kjallara.
Nánari lýsing:
Gengið er inn í forstofu um sérinngang.
Forstofa. Fallegur teppalagður stigi liggur upp í íbúð. Í forstofu liggur einnig stigi niður í geymslur/þvottahús í kjallara.
Alrými. Þegar komið er upp stiga birtist stórt hol sem í dag er nýtt sem borðstofa. Úr holi er gengið inní stofu þaðan sem gengið er út á stórar suðvestur svalir.
Settur hefur verið upp veggur milli stofu og borðstofu og sem nú er rúmgott svefnherbergi með fataskáp.
Eldhús. Falleg, nýleg, dökk innrétting. Flísar á gólfi.
Svefnhergisgangur.
Hjónaherbergi. Ágætt hjónaherbergi með skápum.
Barnaherbergi eru 3 og er eitt þeirra minna eða um 6 fm.
Baðherbergi. Uppgert fyrir nokkrum árum. Sturtuklefi. Fallegar flísar.
Sér þvottahús er kjallara ásamt sér geymslu.
Bílskúr er stór (32 fm). Nýlega málaður og viðgerður.
Að sögn fyrri eigenda voru lagnir undir húsið fóðraðar árið 2009. Nýleg rafmagnstafla er innan íbúðar. Stór lóð er umhverfis húsið.
Nánari upplýsingar veitir Óskar H. Bjarnasen lögmaður og löggiltur fasteignasali í síma 691-1931 eða oskar@valholl.is
Um skoðunar- og aðgæsluskyldu kaupenda:
Í lögum um fasteignakaup nr. 40/2002 er kveðið á um ríka skoðunarskyldu kaupenda á fasteignum. Valhöll fasteignasala bendir væntanlegum kaupendum á að kynna sér vel ástand eigna við skoðun og fyrir tilboðsgerð og að leita til sérfræðinga um nánari ástandsskoðun ef þörf er á.
Forsendur söluyfirlits:
Söluyfirlit er samið af fasteignasala í samræmi við ákvæði laga nr. 70/2015. Þær upplýsingar sem fram koma í söluyfirliti þessu eru sóttar í opinberar skrár, til seljanda sjálfs og eftir atvikum til húsfélags. Seljandi veitir upplýsingar um eign í samræmi við upplýsingaskyldu laga um fasteignakaup nr. 40/2002. Fasteignasali sannreynir að þær upplýsingar séu réttar með sjónskoðun á eigninni. Fasteignasali getur ekki fullyrt um ástand og eiginleika þeirra hluta fasteigna sem ekki eru aðgengilegir og sjást ekki berum augum, t.d. lagnir, dren, skólp og þak.
Gjöld sem kaupandi þarf að standa straum af vegna kaupanna:
1. Stimpilgjald af kaupsamningi - 0.8% af heildarfasteignamati / 1.6% fyrir lögaðila. (0.4% við fyrstu kaup einstaklinga).
2. Þinglýsingagjald af kaupsamningi, veðskuldabréfi, veðleyfi o.fl.- kr. 3.800 af hverju skjali.
3. Umsýsluþóknun til fasteignasölu, sbr.kauptilboð.
Bókið skoðun hjá Óskari H. Bjarnasen lögm. og lögg. fasteignasala í gegnum netfangið oskar@valholl.is eða í síma 691-1931.
Skv. fasteignayfirliti HMS er eignin skráð 156.9 fm. að stærð. og skiptist Hæðin er skráð 124, 9 fm og bílskúr er 32 fm.
Eignin skiptist í forstofu, alrými sem hefur að geyma rúmgott hol og stofu. Herbergi inn af stofu. Nýlegt eldhús. Svefnherbergisgang þar sem fjögur svefnherbergi eru. Nýlega standsett baðherbergi. Einkaþvottahús og geymsla eru í kjallara.
Nánari lýsing:
Gengið er inn í forstofu um sérinngang.
Forstofa. Fallegur teppalagður stigi liggur upp í íbúð. Í forstofu liggur einnig stigi niður í geymslur/þvottahús í kjallara.
Alrými. Þegar komið er upp stiga birtist stórt hol sem í dag er nýtt sem borðstofa. Úr holi er gengið inní stofu þaðan sem gengið er út á stórar suðvestur svalir.
Settur hefur verið upp veggur milli stofu og borðstofu og sem nú er rúmgott svefnherbergi með fataskáp.
Eldhús. Falleg, nýleg, dökk innrétting. Flísar á gólfi.
Svefnhergisgangur.
Hjónaherbergi. Ágætt hjónaherbergi með skápum.
Barnaherbergi eru 3 og er eitt þeirra minna eða um 6 fm.
Baðherbergi. Uppgert fyrir nokkrum árum. Sturtuklefi. Fallegar flísar.
Sér þvottahús er kjallara ásamt sér geymslu.
Bílskúr er stór (32 fm). Nýlega málaður og viðgerður.
Að sögn fyrri eigenda voru lagnir undir húsið fóðraðar árið 2009. Nýleg rafmagnstafla er innan íbúðar. Stór lóð er umhverfis húsið.
Nánari upplýsingar veitir Óskar H. Bjarnasen lögmaður og löggiltur fasteignasali í síma 691-1931 eða oskar@valholl.is
Um skoðunar- og aðgæsluskyldu kaupenda:
Í lögum um fasteignakaup nr. 40/2002 er kveðið á um ríka skoðunarskyldu kaupenda á fasteignum. Valhöll fasteignasala bendir væntanlegum kaupendum á að kynna sér vel ástand eigna við skoðun og fyrir tilboðsgerð og að leita til sérfræðinga um nánari ástandsskoðun ef þörf er á.
Forsendur söluyfirlits:
Söluyfirlit er samið af fasteignasala í samræmi við ákvæði laga nr. 70/2015. Þær upplýsingar sem fram koma í söluyfirliti þessu eru sóttar í opinberar skrár, til seljanda sjálfs og eftir atvikum til húsfélags. Seljandi veitir upplýsingar um eign í samræmi við upplýsingaskyldu laga um fasteignakaup nr. 40/2002. Fasteignasali sannreynir að þær upplýsingar séu réttar með sjónskoðun á eigninni. Fasteignasali getur ekki fullyrt um ástand og eiginleika þeirra hluta fasteigna sem ekki eru aðgengilegir og sjást ekki berum augum, t.d. lagnir, dren, skólp og þak.
Gjöld sem kaupandi þarf að standa straum af vegna kaupanna:
1. Stimpilgjald af kaupsamningi - 0.8% af heildarfasteignamati / 1.6% fyrir lögaðila. (0.4% við fyrstu kaup einstaklinga).
2. Þinglýsingagjald af kaupsamningi, veðskuldabréfi, veðleyfi o.fl.- kr. 3.800 af hverju skjali.
3. Umsýsluþóknun til fasteignasölu, sbr.kauptilboð.
Ár
Fasteignamat
Kaupverð
Stærð
Fermetraverð
29. apr. 2022
60.250.000 kr.
78.000.000 kr.
156.9 m²
497.132 kr.
Byggt á upplýsingum úr Þjóðskrá Íslands frá 2006-2026