Löggiltir fasteignasalar innan Félags fasteignasala:
Ingólfur Geir Gissurarson
Heiðar Friðjónsson
Snorri Snorrason
Óskar H. Bjarnasen
Snorri Björn Sturluson
Elín Alfreðsdóttir
Gylfi Þór Gylfason
Vista
atvinnuhúsnæði

Bæjarlind TIL LEIGU 14-16

201 Kópavogur

450.000 kr.

4.514 þ.kr./m2
Fasteignanúmer

F2235701

Fasteignamat

33.500.000 kr.

Brunabótamat

45.900.000 kr.

Áhvílandi

0 kr.

Arion banki – Reikna lán
Upplýsingar
svg
Byggt 1999
svg
99,7 m²
svg
1 herb.

Lýsing

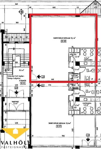
Valhöll kynnir TIL LEIGU: Glæsilegt 100 fm skrifstofu- / verslunar og þjónustuhúsnæði á jarðhæð við Bæjarlind 14-16. Um er að ræða aftara bil af tveimur með fallegu útsýni til norðurs (sjá rauðmerkt á teikningu). Gengið er beint inn af jarðhæð í gegnum fallega sameign. Rýmið er bjart með góðum norðurgluggum yfir allt rýmið og fallegu útsýni. Eignin skiptist í stórt opið rými, fundarherbergi, baðherbergi, þar sem gert er ráð fyrir sturtuaðstöðu, ásamt kaffi- og eldhúsaðstöðu. Eignin lítur afar vel út og er öll nýlega tekin í gegn.

Leiguverð fyrir rýmið er alls 450.000 kr. að meðtöldum rekstrarkostnaði (hitia og rekstrarhluti hússjóðs).

Frábær staðsetning og stærð rýmis hentar vel fyrir skrifstofustarfsemi, verslun eða aðra þjónustu. Áberandi staðsetning frá götu og næg bílastæði. Eign er laus til afhendingar.

Ekki er um vsk húsnæði að ræða.

Nánari upplýsingar veitir Óskar í gegnum netfangið oskar@valholl.is eða í síma 691-1931.

 

Valhöll fasteignasala

Valhöll fasteignasala

Síðumúla 27, 108 Reykjavík
phone
Valhöll fasteignasala

Valhöll fasteignasala

Síðumúla 27, 108 Reykjavík
phone