Löggiltir fasteignasalar innan Félags fasteignasala:
Halldór Már Sverrisson
Vista
svg

290

svg

26  Skoðendur

svg

Skráð  27. mar. 2026

atvinnuhúsnæði

Tónahvarf 3

203 Kópavogur

990.000 kr.

2.526 þ.kr./m2
Fasteignanúmer

F2361511

Fasteignamat

0 kr.

Brunabótamat

0 kr.

Áhvílandi

0 kr.

Arion banki – Reikna lán
Upplýsingar
Verðsaga
svg
392 m²
svg
0 herb.

Lýsing

Atvinnueign kynnir til leigu: 392 fm iðnaðar- og skrifstofuhúsnæði við Tónahvarf 3.

Skammtímaleiga.

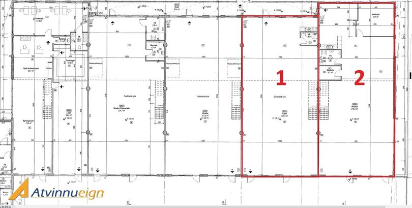
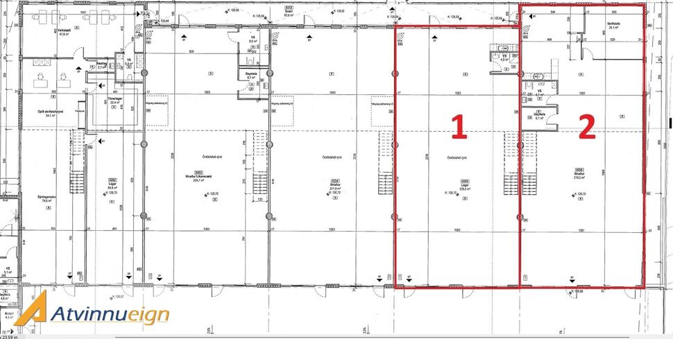
Húsnæðið er iðnaðarhúsnæði sem búið er að aðlaga sem skrifstofu- og lagerhúsnæði. Rýmið er að mestu opið rými en búið að stúka af með glerveggjum skrifstofu/fundarherbergi á grunnhæð sem og tvær skrifstofur / fundarherbergi á millilofti.

Kaffikrókur / eldhúsaðstaða á milliloft og og tvö salerni. Rými merkt nr. 2 á teikningu. Góð lofthæð.

Hægt er að fá leigt til viðbótar bil við hliðina.

Laust eftir samkomulagi.

Virðisaukaskattur bætist við leigu.
 
Allar nánari upplýsingar opnunartíma veitir:
Davíð Jens Guðlaugsson, löggiltur leigumiðlari í síma 846-7495 eða david@atvinnueign.is

Á vefsíðu okkar getur þú fundið fleiri eignir sem og kynnt þér þjónustu Atvinnueignar ehf.www.atvinnueign.is

                - Atvinnueignir eru okkar fag -

Atvinnueign ehf.

Atvinnueign ehf.

Síðumúli 13, 108 Reykjavík
phone
Ár
Fasteignamat
Kaupverð
Stærð
Fermetraverð
3. des. 2024
114.950.000 kr.
520.000.000 kr.
10206 m²
50.950 kr.
31. maí. 2024
114.950.000 kr.
390.000.000 kr.
10206 m²
38.213 kr.
25. okt. 2019
33.150.000 kr.
186.200.000 kr.
665 m²
280.000 kr.
Byggt á upplýsingum úr Þjóðskrá Íslands frá 2006-2026
Atvinnueign ehf.

Atvinnueign ehf.

Síðumúli 13, 108 Reykjavík
phone