Upplýsingar
Byggt 2026
75,9 m²
3 herb.
1 baðherb.
2 svefnh.
Þvottahús
Sérinngangur
Lyfta
Lýsing
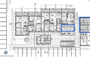
Fasteignasala Suðurlands (s 483 3424) kynnir: Hnjúkamói 14, íbúð 0104. Ný, falleg og björt 73m2 íbúð á jarðhæð með 2,9m2 sér geymslu og sér inngang.
Íbúðin er með 2 stórum svefnherbergjum. Úr alrými er utangengt á mjög góða, timburklædda verönd með skjólveggjum beggja megin, sem snýr í vestur.
Afhending í september 2026.
** Hægt er að bóka skoðun og fá allar nánari upplýsingar í síma 483 3424 og á fastsud@gmail.com **
Eignin telur:
* Rúmgóða forstofu með skáp.
* Glæsilega stofu og eldhús í opnu rými.
Í eldhúsi er falleg, sérsmíðuð Voke III innrétting, vönduð AEG heimilistæki; sjálfhreinsandi ofn, spanhelluborð, innbyggð uppþvottavél og kæli-/frystiskápur
* Utangengt er úr stofunni á 25,7m2 sérafnotaflöt með timburklæddari verönd. Frágang við verönd er þannig háttað að á tiltölulega einfaldan hátt er hægt að setja á hana svalalokun.
* 2 stór svefnherbergi. Góðir fataskápar eru í hjónaherbergi.
Ekki eru settir fataskápar í minna herbergið svo rýmið nýtist sem best, ef nýta á það t.d. sem sjónvarpsherbergi eða undir vinnuaðstöðu.
* Glæsilegt baðherbergi með sérsmíðaðri innréttingu, ljósum flísum á gólfi, sturtu úr glerþili og fallegum og endingargóðum Grohe hreinlætisækjum.
* Gert er ráð fyrir þvottavél og þurrkara á baðherberginu á snyrtilegan hátt.
* Á öllum gólfum, nema baðherbergi, er fallegt harðparket Álfaborg.
* LED-ljós frá Ískraft fylgja öllum rýmum íbúða
* Við húsið er stór, sameiginleg, lokuð hjóla- og vagnageymsla með epoxi á gólfi. Sorpgerði á lóð.
* Rafhleðsla fyrir rafmagnsbíla. Háhraða ljósleiðaratenging er í húsinu.
* Á lóðinni eru 25 bílastæði í óskiptri sameign, þar af 2 fyrir hreyfihamlaða.
* Stéttar næst húsi og gangstígar á lóð verða steypt eða hellulagt, snjóbræðslulögn í gangstíg framan við húsið og að sorpggerði, að öðru leyti verður lóð frágengin með þökum.
Efnisval:
Íbúðin er með fallegum, sérsmíðuðum, ljósum innréttingum í bland við dökka viðaráferð frá Voké-III. Allar innréttingar og fataskápar ná upp í loft !
Heimilistækin eru vönduð AEG tæki frá Rafha.
Flísar á baðherbergi eru ljósar ítalskar 60x60 Panaria Surround flísar, frá Álfaborg
Gólfefni: Slitsterkt BerryAlloc Cadenza harðparket, frá Álfaborg
Innihurðir eru stílhreinar, hvítlakkaðar yfirfelldar hurðir Dana SAX frá Parki
Hreinlætistækin eru falleg og endingargóð tæki frá Grohe.
FASTEIGNASALA SUÐURLANDS HEFUR VEITT VANDAÐA OG GÓÐA ÞJÓNUSTU SÍÐAN 2003 !
Fasteignasala Suðurlands, Unubakka 3b, Þorlákshöfn.
Heimasíða fasteignasölunnar: https://www.eignin.is/
S 483 3424
Í Þorlákshöfn er þjónustustig mjög gott - hagnýtar upplýsingar:
Verslun og þjónusta: Hér má m.a. finna:
KRÓNU VERSLUN
Apótekarann.
Rakarstofu Kjartans (facebook: kjartan rakari)
Vínbúðina.
Veitingastaðina: Thai Sakhon Restaurant (facebook: thai sakhon restaurant)
Super1 pizza (facebook: super 1 pizza)
Skálann, sem jafnframt er sölustaður Orkunnar. Einnig er hér ÓB-stöð.
Caffe Bristól.
Hér er mjög góð heilsugæsla.
Hér er góður tannlæknir.
Í Ráðhúsi bæjarins eru, auk skrifstofu sveitarfélagsins:
Mjög gott bókasafn (facebook: Bæjarbókasafn Ölfuss) og Landsbankinn
Tómstundir og afþreying:
Íþróttaiðkun í Þorlákshöfn er gríðarlega öflug og þá helst meðal barna og unglinga og er aðstaða til íþróttaiðkunar öll til mikillar fyrirmyndar.
Frá fjögurra ára aldri er í boði að iðka fótbolta (aegirfc.is), fimleika (facebook: fimleikadeild Þórs), körfubolta (facebook: Þór Þorlákshöfn) og frjálsar, ásamt því að iðkaður er badminton. Hér er svo einnig Litli íþróttaskólinn á vegum fimleikadeildarinnar fyrir börn frá eins árs aldri.
Motorcrossá braut rétt utan við bæinn.
Hestamennska (facebook: hestamannafélagið háfeti) með fallegum reiðleiðum allt um kring
Golf (facebook: golfklúbbur Þorlákshafnar) á rómuðum golfvelli sem staðsettur er í jaðri byggðarinnar, rétt við sjávarsíðuna.
Í íþróttamiðstöðinni er mjög góð líkamsræktar-aðstaða þar sem hægt er að komast í einka- þjálfun, spinning, hóptíma, líkamsrækt fyrir eldri borgara o.m.fl. Þar er að finna góða sundaðstöðumeð útilaug, heitum pottum, vaðlaug og skemmtilegri innilaug fyrir fjölskyldufólk. Jógastúdíó (Jógahornið). Öflug sjúkraþjálfun.
Afþreying er hér af ýmsum toga:
hér má meðal annars finna: Fallegt útivistarsvæði við vitann með útsýnispalli og göngustíg meðfram bjarginu í einstakri náttúrufegurð. Heilsustíg má finna í bænum þar sem líkamsræktartæki eru við göngu/hlaupastíga.
Hér er æðisleg strönd sem mikið er mikið notuð til útivistar og þar má oft sjá menn á brimbrettum, en slíkt er gott að stunda hér. Í sjónum við útsýnispallinn er einn vinsælasta staður til brimbrettaiðkunar á Íslandi.
Blackbeach tours (www.blackbeachtours.is) er afþreyingar fyrirtæki sem býður upp á fjórhjólaferðir bæði í fjöruna og um hraunið, RIB bátaferðir meðfram bjarginu og adrenalínferðir, snekkjuleigu og sjóstöng og jógaferðir úti í náttúrunni.
Einnig er hér: Öflugt leikfélag (facebook: leikfélag ölfuss).
Hinir ýmsu kórar (facebook: Tónar og Trix, Kyrjukórinn, ofl.) Einn stærsti Kiwanisklúbbur landsins (facebook: Kiwanisklúbburinn Ölver) O.sfr. o.s.frv.
** Allar helstu fréttir úr sveitafélaginu má finna á www.hafnarfrettir.is
Íbúðin er með 2 stórum svefnherbergjum. Úr alrými er utangengt á mjög góða, timburklædda verönd með skjólveggjum beggja megin, sem snýr í vestur.
Afhending í september 2026.
** Hægt er að bóka skoðun og fá allar nánari upplýsingar í síma 483 3424 og á fastsud@gmail.com **
Eignin telur:
* Rúmgóða forstofu með skáp.
* Glæsilega stofu og eldhús í opnu rými.
Í eldhúsi er falleg, sérsmíðuð Voke III innrétting, vönduð AEG heimilistæki; sjálfhreinsandi ofn, spanhelluborð, innbyggð uppþvottavél og kæli-/frystiskápur
* Utangengt er úr stofunni á 25,7m2 sérafnotaflöt með timburklæddari verönd. Frágang við verönd er þannig háttað að á tiltölulega einfaldan hátt er hægt að setja á hana svalalokun.
* 2 stór svefnherbergi. Góðir fataskápar eru í hjónaherbergi.
Ekki eru settir fataskápar í minna herbergið svo rýmið nýtist sem best, ef nýta á það t.d. sem sjónvarpsherbergi eða undir vinnuaðstöðu.
* Glæsilegt baðherbergi með sérsmíðaðri innréttingu, ljósum flísum á gólfi, sturtu úr glerþili og fallegum og endingargóðum Grohe hreinlætisækjum.
* Gert er ráð fyrir þvottavél og þurrkara á baðherberginu á snyrtilegan hátt.
* Á öllum gólfum, nema baðherbergi, er fallegt harðparket Álfaborg.
* LED-ljós frá Ískraft fylgja öllum rýmum íbúða
* Við húsið er stór, sameiginleg, lokuð hjóla- og vagnageymsla með epoxi á gólfi. Sorpgerði á lóð.
* Rafhleðsla fyrir rafmagnsbíla. Háhraða ljósleiðaratenging er í húsinu.
* Á lóðinni eru 25 bílastæði í óskiptri sameign, þar af 2 fyrir hreyfihamlaða.
* Stéttar næst húsi og gangstígar á lóð verða steypt eða hellulagt, snjóbræðslulögn í gangstíg framan við húsið og að sorpggerði, að öðru leyti verður lóð frágengin með þökum.
Efnisval:
Íbúðin er með fallegum, sérsmíðuðum, ljósum innréttingum í bland við dökka viðaráferð frá Voké-III. Allar innréttingar og fataskápar ná upp í loft !
Heimilistækin eru vönduð AEG tæki frá Rafha.
Flísar á baðherbergi eru ljósar ítalskar 60x60 Panaria Surround flísar, frá Álfaborg
Gólfefni: Slitsterkt BerryAlloc Cadenza harðparket, frá Álfaborg
Innihurðir eru stílhreinar, hvítlakkaðar yfirfelldar hurðir Dana SAX frá Parki
Hreinlætistækin eru falleg og endingargóð tæki frá Grohe.
FASTEIGNASALA SUÐURLANDS HEFUR VEITT VANDAÐA OG GÓÐA ÞJÓNUSTU SÍÐAN 2003 !
Fasteignasala Suðurlands, Unubakka 3b, Þorlákshöfn.
Heimasíða fasteignasölunnar: https://www.eignin.is/
S 483 3424
Í Þorlákshöfn er þjónustustig mjög gott - hagnýtar upplýsingar:
Verslun og þjónusta: Hér má m.a. finna:
KRÓNU VERSLUN
Apótekarann.
Rakarstofu Kjartans (facebook: kjartan rakari)
Vínbúðina.
Veitingastaðina: Thai Sakhon Restaurant (facebook: thai sakhon restaurant)
Super1 pizza (facebook: super 1 pizza)
Skálann, sem jafnframt er sölustaður Orkunnar. Einnig er hér ÓB-stöð.
Caffe Bristól.
Hér er mjög góð heilsugæsla.
Hér er góður tannlæknir.
Í Ráðhúsi bæjarins eru, auk skrifstofu sveitarfélagsins:
Mjög gott bókasafn (facebook: Bæjarbókasafn Ölfuss) og Landsbankinn
Tómstundir og afþreying:
Íþróttaiðkun í Þorlákshöfn er gríðarlega öflug og þá helst meðal barna og unglinga og er aðstaða til íþróttaiðkunar öll til mikillar fyrirmyndar.
Frá fjögurra ára aldri er í boði að iðka fótbolta (aegirfc.is), fimleika (facebook: fimleikadeild Þórs), körfubolta (facebook: Þór Þorlákshöfn) og frjálsar, ásamt því að iðkaður er badminton. Hér er svo einnig Litli íþróttaskólinn á vegum fimleikadeildarinnar fyrir börn frá eins árs aldri.
Motorcrossá braut rétt utan við bæinn.
Hestamennska (facebook: hestamannafélagið háfeti) með fallegum reiðleiðum allt um kring
Golf (facebook: golfklúbbur Þorlákshafnar) á rómuðum golfvelli sem staðsettur er í jaðri byggðarinnar, rétt við sjávarsíðuna.
Í íþróttamiðstöðinni er mjög góð líkamsræktar-aðstaða þar sem hægt er að komast í einka- þjálfun, spinning, hóptíma, líkamsrækt fyrir eldri borgara o.m.fl. Þar er að finna góða sundaðstöðumeð útilaug, heitum pottum, vaðlaug og skemmtilegri innilaug fyrir fjölskyldufólk. Jógastúdíó (Jógahornið). Öflug sjúkraþjálfun.
Afþreying er hér af ýmsum toga:
hér má meðal annars finna: Fallegt útivistarsvæði við vitann með útsýnispalli og göngustíg meðfram bjarginu í einstakri náttúrufegurð. Heilsustíg má finna í bænum þar sem líkamsræktartæki eru við göngu/hlaupastíga.
Hér er æðisleg strönd sem mikið er mikið notuð til útivistar og þar má oft sjá menn á brimbrettum, en slíkt er gott að stunda hér. Í sjónum við útsýnispallinn er einn vinsælasta staður til brimbrettaiðkunar á Íslandi.
Blackbeach tours (www.blackbeachtours.is) er afþreyingar fyrirtæki sem býður upp á fjórhjólaferðir bæði í fjöruna og um hraunið, RIB bátaferðir meðfram bjarginu og adrenalínferðir, snekkjuleigu og sjóstöng og jógaferðir úti í náttúrunni.
Einnig er hér: Öflugt leikfélag (facebook: leikfélag ölfuss).
Hinir ýmsu kórar (facebook: Tónar og Trix, Kyrjukórinn, ofl.) Einn stærsti Kiwanisklúbbur landsins (facebook: Kiwanisklúbburinn Ölver) O.sfr. o.s.frv.
** Allar helstu fréttir úr sveitafélaginu má finna á www.hafnarfrettir.is