Upplýsingar
Byggt 2025
74,4 m²
3 herb.
1 baðherb.
2 svefnh.
Þvottahús
Sérinngangur
Lyfta
Lýsing
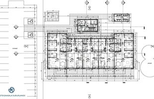
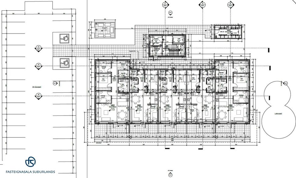
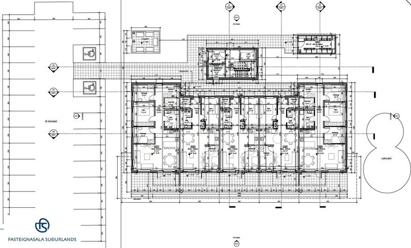
Fasteignasala Suðurlands (s 483 3424) kynnir: Sambyggð 20, íbúð 0103, Þorlákshöfn. Ný, falleg, 74,4m2 miðjuíbúð á jarðhæð með 2 stórum svefnherbergjum og góðri geymslu innan eignar. Íbúðin er með sér inngang. Úr stofunni er utangengt á góðan, hellulagðan, sérafnotaflöt sem snýr í vestur.
HLUTDEILDARLÁN Í BOÐI.
Húsinu fylgir stór, lokuð hjóla- og vagnageymsla.
26, malbikuð, bílastæði eru við húsið, þar af 2 fyrir hreyfihamlaða, og reiðhjólaskýli.
2 rafhleðslustöðvar verða við húsið.
Fyrir framan húsið eru hellulagðar stéttar með snjóbræðslukerfi.
** Hægt er að bóka skoðun og fá allar nánari upplýsingar í síma 483 3424 og á fastsud@gmail.com **
Eignin telur:
* Rúmgóða forstofu með stórum skáp.
* Glæsilega stofu og eldhús í opnu rými. Úr stofunni er utangengt á sérafnotaflöt.
Í eldhúsi er falleg, sérsmíðuð innrétting frá Selós, vönduð AEG heimilistæki með sjálfhreinsandi ofni, spanhelluborði, viftu, innbyggðri uppþvottavél og kæli-/frystiskáp.
* 2 stór svefnherbergi. Góðir fataskápar eru í öllum herbergjum.
* Glæsilegt baðherbergi með sérsmíðaðri innréttingu frá Selós, upphengdu wc og sturta með sturtugleri og flísalögðum botn. Á gólfi og 2 veggjum eru vandaðar 60x60 flísar gráar að lit.
* Gert er ráð fyrir þvottavél og þurrkara (barkalausum) á baðherberginu á snyrtilegan hátt.
* Á öllum gólfum, nema baðherbergi, er eikar vínyl parket af vandaðri gerð. Innihurðar eru hvítar, yfirfelldar, með svörtum hurðarhúnum.
* Við húsið er stór, sameiginleg, lokuð hjóla- og vagnageymsla.
* Gangstéttar næst húsi og gangstígar á lóð verða steypt eða hellulagt, snjóbræðslulögn í gangstíg framan við húsið og að sorpgeymslu.
Að öðru leyti verður lóð frágengin með þökum.
FASTEIGNASALA SUÐURLANDS HEFUR VEITT VANDAÐA OG GÓÐA ÞJÓNUSTU SÍÐAN 2003 !
Fasteignasala Suðurlands, Unubakka 3b, Þorlákshöfn.
Heimasíða fasteignasölunnar: https://www.eignin.is/
Í Þorlákshöfn er þjónustustig mjög gott - hagnýtar upplýsingar:
Verslun og þjónusta: Hér má m.a. finna:
KRÓNU VERSLUN
Apótekarann.
Rakarstofu Kjartans (facebook: kjartan rakari)
Vínbúðina.
Veitingastaðina:
Thai Sakhon Restaurant (facebook: thai sakhon restaurant)
Super 1 pizz
Skálann, sem jafnframt er sölustaður Orkunnar. Einnig er hér ÓB-stöð.
Caffe Bristól.
Hér er mjög góð heilsugæsla.
Hér er tannlæknir.
Í Ráðhúsi bæjarins eru, auk skrifstofu sveitarfélagsins:
Mjög gott bókasafn (facebook: Bæjarbókasafn Ölfuss) Landsbankinn
Tómstundir og afþreying:
Íþróttaiðkun í Þorlákshöfn er gríðarlega öflug og þá helst meðal barna og unglinga og er aðstaða til íþróttaiðkunar öll til mikillar fyrirmyndar.
Frá fjögurra ára aldri er í boði að iðka fótbolta (aegirfc.is), fimleika (facebook: fimleikadeild Þórs), körfubolta (facebook: Þór Þorlákshöfn) og frjálsar, ásamt því að iðkaður er badminton. Hér er svo einnig Litli íþróttaskólinn á vegum fimleikadeildarinnar fyrir börn frá eins árs aldri.
Motorcrossá braut rétt utan við bæinn.
Hestamennska (facebook: hestamannafélagið háfeti) með fallegum reiðleiðum allt um kring
Golf (facebook: golfklúbbur Þorlákshafnar) á rómuðum golfvelli sem staðsettur er í jaðri byggðarinnar, rétt við sjávarsíðuna.
Í íþróttamiðstöðinni er mjög góð líkamsræktar-aðstaða þar sem hægt er að komast í einka- þjálfun, spinning, hóptíma, líkamsrækt fyrir eldri borgara o.m.fl. Þar er að finna góða sundaðstöðumeð útilaug, heitum pottum, vaðlaug og skemmtilegri innilaug fyrir fjölskyldufólk. Jógastúdíó (Jógahornið). Öflug sjúkraþjálfun.
Afþreying er hér af ýmsum toga:
hér má meðal annars finna: Fallegt útivistarsvæði við vitann með útsýnispalli og göngustíg meðfram bjarginu í einstakri náttúrufegurð. Heilsustíg má finna í bænum þar sem líkamsræktartæki eru við göngu/hlaupastíga.
Hér er æðisleg strönd sem mikið er mikið notuð til útivistar og þar má oft sjá menn á brimbrettum, en slíkt er gott að stunda hér. Í sjónum við útsýnispallinn er einn vinsælasta staður til brimbrettaiðkunar á Íslandi.
Einnig er hér: Öflugt leikfélag (facebook: leikfélag ölfuss).
Hinir ýmsu kórar (facebook: Tónar og Trix, Kyrjukórinn, ofl.) Einn stærsti Kiwanisklúbbur landsins (facebook: Kiwanisklúbburinn Ölver) O.sfr. o.s.frv.
** Allar helstu fréttir úr sveitafélaginu má finna á www.hafnarfrettir.is
HLUTDEILDARLÁN Í BOÐI.
Húsinu fylgir stór, lokuð hjóla- og vagnageymsla.
26, malbikuð, bílastæði eru við húsið, þar af 2 fyrir hreyfihamlaða, og reiðhjólaskýli.
2 rafhleðslustöðvar verða við húsið.
Fyrir framan húsið eru hellulagðar stéttar með snjóbræðslukerfi.
** Hægt er að bóka skoðun og fá allar nánari upplýsingar í síma 483 3424 og á fastsud@gmail.com **
Eignin telur:
* Rúmgóða forstofu með stórum skáp.
* Glæsilega stofu og eldhús í opnu rými. Úr stofunni er utangengt á sérafnotaflöt.
Í eldhúsi er falleg, sérsmíðuð innrétting frá Selós, vönduð AEG heimilistæki með sjálfhreinsandi ofni, spanhelluborði, viftu, innbyggðri uppþvottavél og kæli-/frystiskáp.
* 2 stór svefnherbergi. Góðir fataskápar eru í öllum herbergjum.
* Glæsilegt baðherbergi með sérsmíðaðri innréttingu frá Selós, upphengdu wc og sturta með sturtugleri og flísalögðum botn. Á gólfi og 2 veggjum eru vandaðar 60x60 flísar gráar að lit.
* Gert er ráð fyrir þvottavél og þurrkara (barkalausum) á baðherberginu á snyrtilegan hátt.
* Á öllum gólfum, nema baðherbergi, er eikar vínyl parket af vandaðri gerð. Innihurðar eru hvítar, yfirfelldar, með svörtum hurðarhúnum.
* Við húsið er stór, sameiginleg, lokuð hjóla- og vagnageymsla.
* Gangstéttar næst húsi og gangstígar á lóð verða steypt eða hellulagt, snjóbræðslulögn í gangstíg framan við húsið og að sorpgeymslu.
Að öðru leyti verður lóð frágengin með þökum.
FASTEIGNASALA SUÐURLANDS HEFUR VEITT VANDAÐA OG GÓÐA ÞJÓNUSTU SÍÐAN 2003 !
Fasteignasala Suðurlands, Unubakka 3b, Þorlákshöfn.
Heimasíða fasteignasölunnar: https://www.eignin.is/
Í Þorlákshöfn er þjónustustig mjög gott - hagnýtar upplýsingar:
Verslun og þjónusta: Hér má m.a. finna:
KRÓNU VERSLUN
Apótekarann.
Rakarstofu Kjartans (facebook: kjartan rakari)
Vínbúðina.
Veitingastaðina:
Thai Sakhon Restaurant (facebook: thai sakhon restaurant)
Super 1 pizz
Skálann, sem jafnframt er sölustaður Orkunnar. Einnig er hér ÓB-stöð.
Caffe Bristól.
Hér er mjög góð heilsugæsla.
Hér er tannlæknir.
Í Ráðhúsi bæjarins eru, auk skrifstofu sveitarfélagsins:
Mjög gott bókasafn (facebook: Bæjarbókasafn Ölfuss) Landsbankinn
Tómstundir og afþreying:
Íþróttaiðkun í Þorlákshöfn er gríðarlega öflug og þá helst meðal barna og unglinga og er aðstaða til íþróttaiðkunar öll til mikillar fyrirmyndar.
Frá fjögurra ára aldri er í boði að iðka fótbolta (aegirfc.is), fimleika (facebook: fimleikadeild Þórs), körfubolta (facebook: Þór Þorlákshöfn) og frjálsar, ásamt því að iðkaður er badminton. Hér er svo einnig Litli íþróttaskólinn á vegum fimleikadeildarinnar fyrir börn frá eins árs aldri.
Motorcrossá braut rétt utan við bæinn.
Hestamennska (facebook: hestamannafélagið háfeti) með fallegum reiðleiðum allt um kring
Golf (facebook: golfklúbbur Þorlákshafnar) á rómuðum golfvelli sem staðsettur er í jaðri byggðarinnar, rétt við sjávarsíðuna.
Í íþróttamiðstöðinni er mjög góð líkamsræktar-aðstaða þar sem hægt er að komast í einka- þjálfun, spinning, hóptíma, líkamsrækt fyrir eldri borgara o.m.fl. Þar er að finna góða sundaðstöðumeð útilaug, heitum pottum, vaðlaug og skemmtilegri innilaug fyrir fjölskyldufólk. Jógastúdíó (Jógahornið). Öflug sjúkraþjálfun.
Afþreying er hér af ýmsum toga:
hér má meðal annars finna: Fallegt útivistarsvæði við vitann með útsýnispalli og göngustíg meðfram bjarginu í einstakri náttúrufegurð. Heilsustíg má finna í bænum þar sem líkamsræktartæki eru við göngu/hlaupastíga.
Hér er æðisleg strönd sem mikið er mikið notuð til útivistar og þar má oft sjá menn á brimbrettum, en slíkt er gott að stunda hér. Í sjónum við útsýnispallinn er einn vinsælasta staður til brimbrettaiðkunar á Íslandi.
Einnig er hér: Öflugt leikfélag (facebook: leikfélag ölfuss).
Hinir ýmsu kórar (facebook: Tónar og Trix, Kyrjukórinn, ofl.) Einn stærsti Kiwanisklúbbur landsins (facebook: Kiwanisklúbburinn Ölver) O.sfr. o.s.frv.
** Allar helstu fréttir úr sveitafélaginu má finna á www.hafnarfrettir.is