Upplýsingar
Verðsaga
Byggt 1978
108,7 m²
3 herb.
1 baðherb.
2 svefnh.
Þvottahús
Sérinngangur
Lýsing
Betri Stofan Fasteignasala og Dagrún Davíðsdóttir löggiltur fasteignasali kynna Fannborg 5 | 108,7 fm
Um er að ræða 108,7 fm íbúð við Fannborg 5 sem býður upp á einstakt tækifæri fyrir þau sem vilja skapa sitt eigið rými frá grunni. Seljandi hefur þegar hafið undirbúning að umfangsmiklum endurbótum og hefur margt verið fjarlægt úr íbúðinni. Eignin er því að stórum hluta tilbúin til uppbyggingar og endurskipulagningar eftir þörfum nýrra eigenda.
Ástand eignar í dag:
Íbúðin er að mestu leyti tóm að innanverðu þar sem seljandi hafði áform um endurnýjun. Framkvæmdir voru þó ekki fullkláraðar og gefst kaupanda því kjörið tækifæri til að hanna og innrétta eignina eftir eigin hugmyndum og þörfum.
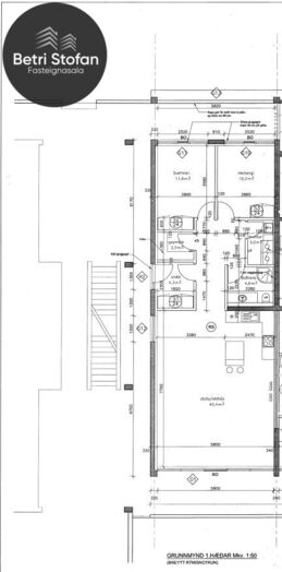
Fyrirhugað skipulag samkvæmt teikningu seljanda
Seljandi er nú þegar með tillögur að nýju skipulagi eignarinnar sem má sjá á meðfylgjandi grunnmynd. Þar er gert ráð fyrir:
Þremur svefnherbergjum, rúmgóðri stofu, opnu eldhúsi með borðstofu, baðherbergi með sturtu og aðstöðu fyrir þvottavél og þurrkara. Rúmgóðri forstofu og fataaðstöðu.
Tillagan gerir ráð fyrir hagkvæmri nýtingu fermetra þar sem alrými eldhúss og stofu verður opið og bjart, ásamt góðri herbergjaskipan sem hentar fjölskyldufólki jafnt sem þeim sem vilja nýta hluta eignarinnar sem vinnuaðstöðu eða gestaherbergi.
Eignin hentar sérstaklega vel þeim sem leita að íbúð með mikla möguleika þar sem hægt er að móta endanlegt útlit og rýmisnýtingu frá grunni. Með fyrirliggjandi hugmynd að skipulagi er auðvelt að sjá fyrir sér fullbúna og nútímalega fjölskylduíbúð að loknum framkvæmdum.
Geymsla í sameiginlegu rými er 4,7fm2
Hjóla- og vagnageymsla í sameign
Næg bílastæði eru við húsið
Eignin Fannborg 5 er skráð sem hér segir hjá FMR: Eign 228-3007, birt stærð 108.7 fm.
Allar nánari upplýsingar veitir Dagrún Davíðsdóttir löggiltur fasteignasali, 866 1763 / dagrun@betristofan.is.
Um er að ræða 108,7 fm íbúð við Fannborg 5 sem býður upp á einstakt tækifæri fyrir þau sem vilja skapa sitt eigið rými frá grunni. Seljandi hefur þegar hafið undirbúning að umfangsmiklum endurbótum og hefur margt verið fjarlægt úr íbúðinni. Eignin er því að stórum hluta tilbúin til uppbyggingar og endurskipulagningar eftir þörfum nýrra eigenda.
Ástand eignar í dag:
Íbúðin er að mestu leyti tóm að innanverðu þar sem seljandi hafði áform um endurnýjun. Framkvæmdir voru þó ekki fullkláraðar og gefst kaupanda því kjörið tækifæri til að hanna og innrétta eignina eftir eigin hugmyndum og þörfum.
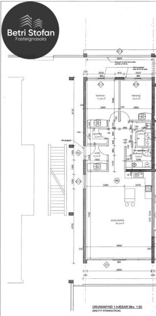
Fyrirhugað skipulag samkvæmt teikningu seljanda
Seljandi er nú þegar með tillögur að nýju skipulagi eignarinnar sem má sjá á meðfylgjandi grunnmynd. Þar er gert ráð fyrir:
Þremur svefnherbergjum, rúmgóðri stofu, opnu eldhúsi með borðstofu, baðherbergi með sturtu og aðstöðu fyrir þvottavél og þurrkara. Rúmgóðri forstofu og fataaðstöðu.
Tillagan gerir ráð fyrir hagkvæmri nýtingu fermetra þar sem alrými eldhúss og stofu verður opið og bjart, ásamt góðri herbergjaskipan sem hentar fjölskyldufólki jafnt sem þeim sem vilja nýta hluta eignarinnar sem vinnuaðstöðu eða gestaherbergi.
Eignin hentar sérstaklega vel þeim sem leita að íbúð með mikla möguleika þar sem hægt er að móta endanlegt útlit og rýmisnýtingu frá grunni. Með fyrirliggjandi hugmynd að skipulagi er auðvelt að sjá fyrir sér fullbúna og nútímalega fjölskylduíbúð að loknum framkvæmdum.
Geymsla í sameiginlegu rými er 4,7fm2
Hjóla- og vagnageymsla í sameign
Næg bílastæði eru við húsið
Eignin Fannborg 5 er skráð sem hér segir hjá FMR: Eign 228-3007, birt stærð 108.7 fm.
Allar nánari upplýsingar veitir Dagrún Davíðsdóttir löggiltur fasteignasali, 866 1763 / dagrun@betristofan.is.
Gjöld sem kaupandi þarf að standa straum af ef að kaupum verður:
1. Stimpilgjald af fasteignamati fasteignar er 0.8%, en 0,4% fyrir fyrstu kaup og 1,6% fyrir lögaðila.
2. Þinglýsingargjald: kaupsamningi, skuldabréfi, veðleyfi, afsali o.s.frv. er kr. 3.800 af hverju skjali.
3. Lántökukostnaður samkvæmt verðskrá viðkomandi lánastofnunar.
4. Umsýslugjald til fasteignasölu skv. gjaldskrá.
Skoðunarskylda kaupanda:
Í lögum um fasteignakaup nr. 40/2002 er kveðið á um ríka skoðunarskyldu kaupenda á fasteignum. Betri Stofan fasteignasala bendir væntanlegum kaupendum á að kynna sér vel ástand fasteigna við skoðun og fyrir tilboðsgerð og ef þurfa þykir að leita til sérfræðinga um nánari ástandsskoðun.
Ár
Fasteignamat
Kaupverð
Stærð
Fermetraverð
28. feb. 2025
66.600.000 kr.
58.700.000 kr.
10106 m²
5.808 kr.
17. jan. 2020
43.050.000 kr.
39.000.000 kr.
108.7 m²
358.786 kr.
12. sep. 2018
36.500.000 kr.
39.000.000 kr.
108.7 m²
358.786 kr.
Byggt á upplýsingum úr Þjóðskrá Íslands frá 2006-2026