Upplýsingar
Verðsaga
Byggt 2014
126,1 m²
3 herb.
1 baðherb.
2 svefnh.
Þvottahús
Sameiginl. inngangur
Bílastæði
Lyfta
Lýsing
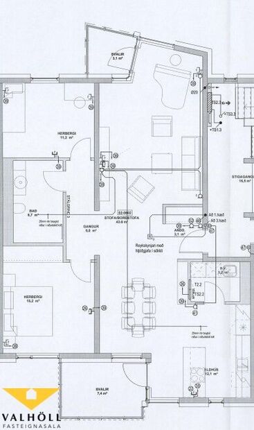
Valhöll fasteignasala og Heiðar Friðjónsson lögg. fast. s.693-3356 kynna til sölu bjarta og vel um gegna 126,1 fm íbúð á 2. hæð í lyftuhúsi við Mánatún 7 í Reykjavík. Íbúðin er með tveimur svefnherbergjum, rúmgóðum stofum, opnu eldhúsi með eyju, tvennum svölum sem eru báðar lokaðar með gleri og stæði í bílageymslu þar sem búið er að leggja fyrir rafhleðslustöð. Aðeins tvær íbúðir á hverri hæð. Í kjallara er sér 8,8 fm geymsla. Garðurinn sem er aflokaður á milli húsa er mjög flottur með bekkjum og leiktækjum. Ath. íbúðin er laus við kaupsamning.
PANTIÐ SKOÐUN SÝNI SAMDÆGURS, Heiðar s. 693-3356 eða á heidar@valholl.is
Nánari Lýsing:
Komið er inn í parketlagt anddyri með rúmgóðum skáð. Rúmgóð stofa með parketi á gólfi og útgengi á yfirbyggðar norður svalir. Eldhús er fallegt og vel með farið, hvítt og eik, eyja með eldavél, úr borðkrók er gengið út á yfirbyggðar rúmgóðar suður svalir. Inn af eldhúsi er þvottahús. Svefnherbergisgangur með tveimur herbergjum og baðherbergi á milli herbergja. Hjónaherbergið er rúmgott með stórum fataskáp og parket á gólfi. Auka herbergi með skáp og parketi á gólfi. Baðherbergið er með flísum á veggjum og gólfi, innréttingu og sturtu.
Í kjallara er rúmgóð 8,8 fm geymsla og innangengt í upphitaða bílageymslu með sérstæði og búið að leggja fyrir rafhleðslu. Húsið er síðan 2015 og er mjög fínt og allt mjög snyrtilegt. Útisvæðið sem myndast af nokkrum húsum við Mánatún 7-17 er mjög snyrtilegt og skemmtilegt. Um er að ræða frábæra íbúð miðsvæðis í Reykjavík, þar sem stutt er í allt.
Allar frekari uppl. um eignina veitir Heiðar Friðjónsson lögg. fast. á Valhöll í s. 693-3356 eða á heidar@valholl.is
Eignin er seld í því ástandi sem hún er. Áhugasamir kaupendur eru hvattir til að kynna sér vel ástand eignarinnar áður en tilboð er gert, þar sem seljandi hefur aldrei haft afnot af eigninni og þekkir ekki ástand hennar, getur hann ekki uppfyllt upplýsingaskyldu sína nema að mjög takmörkuðu leyti.
Um skoðunar- og aðgæsluskyldu:
Í lögum um fasteignakaup nr. 40/2002 er kveðið á um ríka skoðunarskyldu kaupenda á fasteignum. Valhöll fasteignasala bendir væntanlegum kaupendum á að kynna sér vel ástand fasteigna við skoðun og fyrir tilboðsgerð og ef þurfa þykir að leita til sérfræðinga um nánari ástandsskoðun.
Forsendur söluyfirlits:
Söluyfirlit er samið af fasteignasala í samræmi við ákvæði laga nr. 70/2015. Þær upplýsingar sem fram koma í söluyfirliti þessu eru sóttar í opinberar skrár, til seljanda sjálfs og eftir atvikum til húsfélags. Seljandi veitir upplýsingar um eign í samræmi við upplýsingaskyldu laga um fasteignakaup nr. 40/2002. Fasteignasali sannreynir að þær upplýsingar séu réttar með sjónskoðun á eigninni. Fasteignasali getur ekki fullyrt um ástand og eiginleika þeirra hluta fasteigna sem ekki eru aðgengilegir og sjást ekki berum augum, t.d. lagnir, dren, skólp og þak.
Gjöld sem kaupandi þarf að standa straum af vegna kaupanna:
Stimpilgjald af kaupsamningi sem er hlutfall af fasteignamati. Stimpilgjald er 0,8% fyrir einstaklinga og 1,6% fyrir lögaðila.
Þinglýsingargjald af kaupsamningi, veðskuldabréfum, veðleyfum o.fl. Þinglýsingargjald er kr. 2.700,- fyrir hvert skjal.
Lántökugjald lánastofnunar. Um lántökugjald vísast í gjaldskrá viðkomandi lánveitanda.
Umsýsluþóknun fasteignasölu skv. gjaldskrá.
Ef um nýbyggingu er að ræða greiðir kaupandi skipulagsgjald, 0,3% af brunabótamáti, þegar það er lagt á.
PANTIÐ SKOÐUN SÝNI SAMDÆGURS, Heiðar s. 693-3356 eða á heidar@valholl.is
Nánari Lýsing:
Komið er inn í parketlagt anddyri með rúmgóðum skáð. Rúmgóð stofa með parketi á gólfi og útgengi á yfirbyggðar norður svalir. Eldhús er fallegt og vel með farið, hvítt og eik, eyja með eldavél, úr borðkrók er gengið út á yfirbyggðar rúmgóðar suður svalir. Inn af eldhúsi er þvottahús. Svefnherbergisgangur með tveimur herbergjum og baðherbergi á milli herbergja. Hjónaherbergið er rúmgott með stórum fataskáp og parket á gólfi. Auka herbergi með skáp og parketi á gólfi. Baðherbergið er með flísum á veggjum og gólfi, innréttingu og sturtu.
Í kjallara er rúmgóð 8,8 fm geymsla og innangengt í upphitaða bílageymslu með sérstæði og búið að leggja fyrir rafhleðslu. Húsið er síðan 2015 og er mjög fínt og allt mjög snyrtilegt. Útisvæðið sem myndast af nokkrum húsum við Mánatún 7-17 er mjög snyrtilegt og skemmtilegt. Um er að ræða frábæra íbúð miðsvæðis í Reykjavík, þar sem stutt er í allt.
Allar frekari uppl. um eignina veitir Heiðar Friðjónsson lögg. fast. á Valhöll í s. 693-3356 eða á heidar@valholl.is
Eignin er seld í því ástandi sem hún er. Áhugasamir kaupendur eru hvattir til að kynna sér vel ástand eignarinnar áður en tilboð er gert, þar sem seljandi hefur aldrei haft afnot af eigninni og þekkir ekki ástand hennar, getur hann ekki uppfyllt upplýsingaskyldu sína nema að mjög takmörkuðu leyti.
Um skoðunar- og aðgæsluskyldu:
Í lögum um fasteignakaup nr. 40/2002 er kveðið á um ríka skoðunarskyldu kaupenda á fasteignum. Valhöll fasteignasala bendir væntanlegum kaupendum á að kynna sér vel ástand fasteigna við skoðun og fyrir tilboðsgerð og ef þurfa þykir að leita til sérfræðinga um nánari ástandsskoðun.
Forsendur söluyfirlits:
Söluyfirlit er samið af fasteignasala í samræmi við ákvæði laga nr. 70/2015. Þær upplýsingar sem fram koma í söluyfirliti þessu eru sóttar í opinberar skrár, til seljanda sjálfs og eftir atvikum til húsfélags. Seljandi veitir upplýsingar um eign í samræmi við upplýsingaskyldu laga um fasteignakaup nr. 40/2002. Fasteignasali sannreynir að þær upplýsingar séu réttar með sjónskoðun á eigninni. Fasteignasali getur ekki fullyrt um ástand og eiginleika þeirra hluta fasteigna sem ekki eru aðgengilegir og sjást ekki berum augum, t.d. lagnir, dren, skólp og þak.
Gjöld sem kaupandi þarf að standa straum af vegna kaupanna:
Stimpilgjald af kaupsamningi sem er hlutfall af fasteignamati. Stimpilgjald er 0,8% fyrir einstaklinga og 1,6% fyrir lögaðila.
Þinglýsingargjald af kaupsamningi, veðskuldabréfum, veðleyfum o.fl. Þinglýsingargjald er kr. 2.700,- fyrir hvert skjal.
Lántökugjald lánastofnunar. Um lántökugjald vísast í gjaldskrá viðkomandi lánveitanda.
Umsýsluþóknun fasteignasölu skv. gjaldskrá.
Ef um nýbyggingu er að ræða greiðir kaupandi skipulagsgjald, 0,3% af brunabótamáti, þegar það er lagt á.
Ár
Fasteignamat
Kaupverð
Stærð
Fermetraverð
20. maí. 2015
44.250.000 kr.
44.500.000 kr.
126.1 m²
352.895 kr.
Byggt á upplýsingum úr Þjóðskrá Íslands frá 2006-2026