Upplýsingar
Verðsaga
Byggt 2008
107 m²
3 herb.
1 baðherb.
2 svefnh.
Þvottahús
Bílskúr
Útsýni
Sameiginl. inngangur
Lyfta
Lýsing
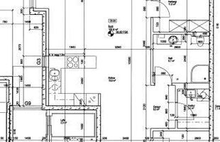
107,0 fm 3ja herbergja íbúð með sérinngang af svölum og stæði í bílageymslu með fallegu útsýni á 3. hæð við Brekkuás 3 í Hafnarfirði.
Eignin skiptist þannig að íbúðin sjálf er 99,7 fm og sér geymsla á jarðhæð 7,3 fm, samtals 107,0 fm skv. Þjóðskrá Íslands.
Nánari lýsing:
Forstofa með skáp.
Eldhús og stofa í rúmgóðu og björtu alrými með útg. á svalir.
Eldhúsið er með viðarinnréttingu, ofn í vinnuhæð, helluborð með háf yfir, stæði fyrir uppþvottavél.
Tvö svefnherbergi eru í íbúðinni, skápar í báðum.
Baðherbergi með hvítri innréttingu, veggsalerni og sturtu.
Þvottahús er sér innan íbúðarinnar.
Gólfefni íbúðarinnar er parket og flísar.
Sér geymsla á jarðhæð og sameiginleg hjóla- og vagna geymsla.
Stæði í bílakjallara og tenging fyrir rafhleðslustöð komin en eftir að setja stöðina.
Frábær staðsetning þar sem stutt er í alla helstu þjónustu og falleg útivistarsvæði.
Nánari upplýsingar veitir Svala Haraldsdóttir löggiltur fasteignasali í s. 820-9699 / svala@as.is og Eiríkur Svanur Sigfússon löggiltur fasteignasali í s. 862-3377 / eirikur@as.is
Ás fasteignasala er rótgróið fyrirtæki sem hefur veitt alla almenna þjónustu í fasteignaviðskiptum frá árinu 1988.
www.facebook.com/asfasteignasala
www.instagram.com/as_fasteignasala
www.as.is
Eignin skiptist þannig að íbúðin sjálf er 99,7 fm og sér geymsla á jarðhæð 7,3 fm, samtals 107,0 fm skv. Þjóðskrá Íslands.
Nánari lýsing:
Forstofa með skáp.
Eldhús og stofa í rúmgóðu og björtu alrými með útg. á svalir.
Eldhúsið er með viðarinnréttingu, ofn í vinnuhæð, helluborð með háf yfir, stæði fyrir uppþvottavél.
Tvö svefnherbergi eru í íbúðinni, skápar í báðum.
Baðherbergi með hvítri innréttingu, veggsalerni og sturtu.
Þvottahús er sér innan íbúðarinnar.
Gólfefni íbúðarinnar er parket og flísar.
Sér geymsla á jarðhæð og sameiginleg hjóla- og vagna geymsla.
Stæði í bílakjallara og tenging fyrir rafhleðslustöð komin en eftir að setja stöðina.
Frábær staðsetning þar sem stutt er í alla helstu þjónustu og falleg útivistarsvæði.
Nánari upplýsingar veitir Svala Haraldsdóttir löggiltur fasteignasali í s. 820-9699 / svala@as.is og Eiríkur Svanur Sigfússon löggiltur fasteignasali í s. 862-3377 / eirikur@as.is
Ás fasteignasala er rótgróið fyrirtæki sem hefur veitt alla almenna þjónustu í fasteignaviðskiptum frá árinu 1988.
www.facebook.com/asfasteignasala
www.instagram.com/as_fasteignasala
www.as.is
Ár
Fasteignamat
Kaupverð
Stærð
Fermetraverð
16. feb. 2022
52.950.000 kr.
4.560.000 kr.
210.7 m²
21.642 kr.
3. des. 2021
46.550.000 kr.
57.900.000 kr.
107 m²
541.121 kr.
28. júl. 2017
33.450.000 kr.
40.800.000 kr.
107 m²
381.308 kr.
30. jan. 2012
22.550.000 kr.
25.500.000 kr.
107 m²
238.318 kr.
Byggt á upplýsingum úr Þjóðskrá Íslands frá 2006-2026