Upplýsingar
97,3 m²
3 herb.
1 baðherb.
2 svefnh.
Þvottahús
Bílastæði
Lyfta
Lýsing
Lækjarmói 8 - íbúð 202- Nýbygging
Mjög skemmtileg þriggja til fjögurra herbergja fullfrágengin 97,3m2 íbúð með sér þvottahúsi á 2. hæð í nýju fallegu fjölbýlishúsi sem er staðsett í nýju íbúðarhverfi, Móahverfi á Akureyri. Áhersla hefur verið lögð á efnisval og fallegt útlit, lyfta og bílakjallari.
* Loftskiptibúnaður * Hljóðplötur í lofti, betri hljóðvist * Gólfsíðir gluggar * Rennihurð á svölum * Gólfhiti
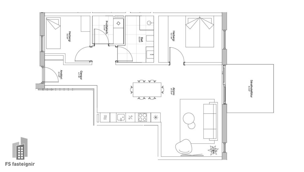
Eignin skiptist í forstofu, eldhús, borðstofu og stofu, í opnu rými, tvö svefnherbergi, baðherbergi og þvottahús ásamt sér geymslu og bílastæði í kjallara.
Forstofa með vinilparketi á gólfi, fataskápur.
Eldhús, borðstofa og stofa eru í opnu rými, falleg sérsmíðuð innrétting frá TAK innréttinum, eldhústæki eru frá AEG. Rennihurð út á svalir.
Herbergin bæði með Vínilparketi á gólfum og fataksápum.
Baðherbergi með góðri innréttingu, spegill með lýsingu, sturta með glerskilrúmi. Flísar á gólfi og hluta af veggjum.
Þvottahús með flísum á gólfi.
Byggingaraðilinn, SS Byggir. Sjá heimasíðu SS - www.ssbyggir.is
- Íbúðinni fylgir stæði í rúmgóðri bílageymslu merkt B 11.
- Íbúðin afhendist með sérsmíðuðum innréttingum frá TAK innréttingum.
- Hljóðdempandi vínilparket er á gólfum á alrými og herbergjum. Flísar á gólfum baðherbergis og þvottahúss.
- Sérgeymsla í kjallara sem er 12,4m2 að stærð.
- Íbúðin afhendist fullfrágengin.
- Svalagangur- aðgengi að íbúðinni er um sér svalagang framan við íbúðina.
Til afhendingar vorið 2026
Kaupandi greiðir skipulagsgjald.
Smelltu hér fyrir nánari skilalýsingu
Nánari upplýsingar veita:
Friðrik Sigþórsson sími 694-4220 fridrik@fsfasteignir.is
Svala Jónsdóttir sími 663-5260 Svala@fsfasteignir.is
Mjög skemmtileg þriggja til fjögurra herbergja fullfrágengin 97,3m2 íbúð með sér þvottahúsi á 2. hæð í nýju fallegu fjölbýlishúsi sem er staðsett í nýju íbúðarhverfi, Móahverfi á Akureyri. Áhersla hefur verið lögð á efnisval og fallegt útlit, lyfta og bílakjallari.
* Loftskiptibúnaður * Hljóðplötur í lofti, betri hljóðvist * Gólfsíðir gluggar * Rennihurð á svölum * Gólfhiti
Eignin skiptist í forstofu, eldhús, borðstofu og stofu, í opnu rými, tvö svefnherbergi, baðherbergi og þvottahús ásamt sér geymslu og bílastæði í kjallara.
Forstofa með vinilparketi á gólfi, fataskápur.
Eldhús, borðstofa og stofa eru í opnu rými, falleg sérsmíðuð innrétting frá TAK innréttinum, eldhústæki eru frá AEG. Rennihurð út á svalir.
Herbergin bæði með Vínilparketi á gólfum og fataksápum.
Baðherbergi með góðri innréttingu, spegill með lýsingu, sturta með glerskilrúmi. Flísar á gólfi og hluta af veggjum.
Þvottahús með flísum á gólfi.
Byggingaraðilinn, SS Byggir. Sjá heimasíðu SS - www.ssbyggir.is
- Íbúðinni fylgir stæði í rúmgóðri bílageymslu merkt B 11.
- Íbúðin afhendist með sérsmíðuðum innréttingum frá TAK innréttingum.
- Hljóðdempandi vínilparket er á gólfum á alrými og herbergjum. Flísar á gólfum baðherbergis og þvottahúss.
- Sérgeymsla í kjallara sem er 12,4m2 að stærð.
- Íbúðin afhendist fullfrágengin.
- Svalagangur- aðgengi að íbúðinni er um sér svalagang framan við íbúðina.
Til afhendingar vorið 2026
Kaupandi greiðir skipulagsgjald.
Smelltu hér fyrir nánari skilalýsingu
Nánari upplýsingar veita:
Friðrik Sigþórsson sími 694-4220 fridrik@fsfasteignir.is
Svala Jónsdóttir sími 663-5260 Svala@fsfasteignir.is