Löggiltir fasteignasalar innan Félags fasteignasala:
Aðalheiður Karlsdóttir
Upplýsingar
97 m²
4 herb.
3 baðherb.
3 svefnh.
Þvottahús
Sérinngangur
Lýsing
SPÁNAREIGNIR - Daya Nueva
*SÉRBÝLI Í EKTA SPÆNSKUM BÆ STUTT FRÁ ALICANTE*-*FRÁBÆRT VERÐ*
Falleg, rúmgóð og vel skipulögð sérbýli á tveimur hæðum í Daya Nueva, fallegum spænskum bæ. Góð verönd út frá stofu, sérgarður með einkasundlaug. Um 30 mín akstur frá Alicante, 10-20 mín akstur niður á ströndina í Guardamar eða La Marina. Fjölmargir góðir golfvellir í næsta nágrenni. Örstutt labb á lokal veitingastaði í bænum, en stutt í stærri bæi eins og Almoradi (4km), Guardamar (15km), Rojales (6km) og Torrevieja (20km). Fallega gróið umhverfi með göngu-og hjólaleiðum. Húsið er vel skipulagt með góðu alrými, þremur svefnherbergjum, tveimur baðherbergjum ásamt gestasnyrtingu.
Allar upplýsingar gefa:
Aðalheiður Karlsdóttir, löggiltur fasteignasali,adalheidur@spanareignir.is. GSM 00354 893 2495.
Berta Hawkins, löggiltur fasteignasali, berta@spanareignir.is GSM 0034 615 112 869.
Nánari lýsing:
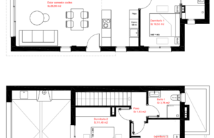
Neðri hæð: gott eldhús, með góðri tengingu við stofu og borðstofu í rúmgóðu alrými ásamt svefnherbergi með sér baðherbergi og auk þess gestasnyrtingu.
Efri hæð: tvö svefnherbergi og eitt bað herbergi. Stórar svalir út frá öðru svefnherberginu.
Út frá stofunni er stór verönd og góður, lokaður garður með flottri aðstöðu til að njóta sólar og grilla. Einkasundlaug. Kjörin aðstaða til að njóta útiveru í góðu veðri allt árið.
Innbyggt kerfi fyrir loftkælingu og hitun.
Stæði fyrir bíl inni á lokaðri lóð.
Hér er um einstaka eign og staðsetningu að ræða, algjöra útivistarparadís í rólegu og fallegu umhverfi, en örstutt frá stöðum sem gaman er að heimsækja. Ekta staður fyrir þá sem vilja njóta útiveru í góðu veðri allt árið, eða jafnvel flytja alfarið í sólarparadísina á Spáni.
Örstutt göngufæri í miðbæinn þar sem hægt er koma við hjá bakaranum og fá sér nýbakað brauð, eða kjötkaupmanninum og velja sér góða steik á grillið.
Fjölmargir góðir golfvellir á svæðinu. Skóli og íþróttaaðstaða.
FRÁBÆRT VERÐ, frá: 311.000 Evrur + kostn. (ISK 45.000.000 + kostn. miðað við gengi 1E=145ISK)
Hægt er að fá húsin afhent fullbúin húsgögnum og rafmagnstækjum gegn viðbótarkostnaði. þannig að allt verði tilbúið þegar flutt er inn.
Hagstæð fjármögnun í boði úr spænskum bönkum, sem auðveldar kaupin.
Við höfum selt fasteignir á Spáni síðan 2001. Tryggir þekkingu, reynslu og öryggi.
Eitt besta loftslag í heimi samkvæmt Alþjóða heilbrigðistofnunni, WHO.
SKOÐUNARFERÐIR:
Við aðstoðum kaupendur við að skipuleggja skoðunarferðir og tökum þátt í kostnaði vegna þeirra, ef af viðskiptum verður.
Sjá nánar um fasteignakaup á Spáni á heimasíðunni okkar: http://www.spanareignir.is
Kostnaður við kaupin:
10% IVA (spænskur söluskattur) af kaupverði eignarinnar. Auk þess má gera ráð fyrir ca. 3% kostnaði vegna stimpilgjalda og annars kostnaðar við kaupin, þ.e. samtals getur kostnaður vegna kaupa á fasteign á Spáni því farið upp í ca. 13%.
Eiginleikar: bílastæði, sér garður, einkasundlaug,
Svæði: Costa Blanca, Daya Nueva,
*SÉRBÝLI Í EKTA SPÆNSKUM BÆ STUTT FRÁ ALICANTE*-*FRÁBÆRT VERÐ*
Falleg, rúmgóð og vel skipulögð sérbýli á tveimur hæðum í Daya Nueva, fallegum spænskum bæ. Góð verönd út frá stofu, sérgarður með einkasundlaug. Um 30 mín akstur frá Alicante, 10-20 mín akstur niður á ströndina í Guardamar eða La Marina. Fjölmargir góðir golfvellir í næsta nágrenni. Örstutt labb á lokal veitingastaði í bænum, en stutt í stærri bæi eins og Almoradi (4km), Guardamar (15km), Rojales (6km) og Torrevieja (20km). Fallega gróið umhverfi með göngu-og hjólaleiðum. Húsið er vel skipulagt með góðu alrými, þremur svefnherbergjum, tveimur baðherbergjum ásamt gestasnyrtingu.
Allar upplýsingar gefa:
Aðalheiður Karlsdóttir, löggiltur fasteignasali,adalheidur@spanareignir.is. GSM 00354 893 2495.
Berta Hawkins, löggiltur fasteignasali, berta@spanareignir.is GSM 0034 615 112 869.
Nánari lýsing:
Neðri hæð: gott eldhús, með góðri tengingu við stofu og borðstofu í rúmgóðu alrými ásamt svefnherbergi með sér baðherbergi og auk þess gestasnyrtingu.
Efri hæð: tvö svefnherbergi og eitt bað herbergi. Stórar svalir út frá öðru svefnherberginu.
Út frá stofunni er stór verönd og góður, lokaður garður með flottri aðstöðu til að njóta sólar og grilla. Einkasundlaug. Kjörin aðstaða til að njóta útiveru í góðu veðri allt árið.
Innbyggt kerfi fyrir loftkælingu og hitun.
Stæði fyrir bíl inni á lokaðri lóð.
Hér er um einstaka eign og staðsetningu að ræða, algjöra útivistarparadís í rólegu og fallegu umhverfi, en örstutt frá stöðum sem gaman er að heimsækja. Ekta staður fyrir þá sem vilja njóta útiveru í góðu veðri allt árið, eða jafnvel flytja alfarið í sólarparadísina á Spáni.
Örstutt göngufæri í miðbæinn þar sem hægt er koma við hjá bakaranum og fá sér nýbakað brauð, eða kjötkaupmanninum og velja sér góða steik á grillið.
Fjölmargir góðir golfvellir á svæðinu. Skóli og íþróttaaðstaða.
FRÁBÆRT VERÐ, frá: 311.000 Evrur + kostn. (ISK 45.000.000 + kostn. miðað við gengi 1E=145ISK)
Hægt er að fá húsin afhent fullbúin húsgögnum og rafmagnstækjum gegn viðbótarkostnaði. þannig að allt verði tilbúið þegar flutt er inn.
Hagstæð fjármögnun í boði úr spænskum bönkum, sem auðveldar kaupin.
Við höfum selt fasteignir á Spáni síðan 2001. Tryggir þekkingu, reynslu og öryggi.
Eitt besta loftslag í heimi samkvæmt Alþjóða heilbrigðistofnunni, WHO.
SKOÐUNARFERÐIR:
Við aðstoðum kaupendur við að skipuleggja skoðunarferðir og tökum þátt í kostnaði vegna þeirra, ef af viðskiptum verður.
Sjá nánar um fasteignakaup á Spáni á heimasíðunni okkar: http://www.spanareignir.is
Kostnaður við kaupin:
10% IVA (spænskur söluskattur) af kaupverði eignarinnar. Auk þess má gera ráð fyrir ca. 3% kostnaði vegna stimpilgjalda og annars kostnaðar við kaupin, þ.e. samtals getur kostnaður vegna kaupa á fasteign á Spáni því farið upp í ca. 13%.
Eiginleikar: bílastæði, sér garður, einkasundlaug,
Svæði: Costa Blanca, Daya Nueva,