Löggiltir fasteignasalar innan Félags fasteignasala:
Ástþór Reynir Guðmundsson
Vigdís R. S. Helgadóttir
Guðbjörg Helga Jóhannesdóttir
Gylfi Jens Gylfason
Sigrún Matthea Sigvaldadóttir
Sveinn Gíslason
Páll Guðmundsson
Þórarinn Arnar Sævarsson
Berglind Hólm Birgisdóttir
Þorsteinn Gíslason
Guðrún Lilja Tryggvadóttir
Brynjar Ingólfsson
Guðný Þorsteinsdóttir
Bjarni Blöndal
Þorsteinn Ólafs
Þórdís Björk Davíðsdóttir
Jóhann Kristinn Jóhannesson
Bjarný Björg Arnórsdóttir
Salvör Þóra Davíðsdóttir
Magga Sigríður Gísladóttir
Upplýsingar
Verðsaga
Byggt 1987
205,2 m²
5 herb.
2 baðherb.
4 svefnh.
Þvottahús
Sérinngangur
Lýsing
NÝTT Í SÖLU - FALLEGT EINBÝLISHÚS Á EINNI HÆÐ - FJÖGUR SVEFNHERBERGI - TVÖ BAÐHERBERGI - AUKIN LOFTHÆÐ - ARINN - BÍLSKÚR
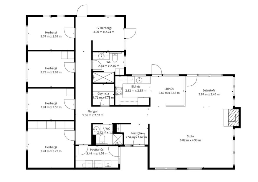
Bjarni Blöndal löggiltur fasteignasali (bjarni@remax.is/s:662-6163) kynnir vel skipulagt 169,2fm einbýlishús á einni hæð auk 36 fm bílskúrs, samtals 205,2 fm við Reykjabyggð í Mosfellsbæ. Aukin lofthæð. Arinn í stofu. Fjögur svefnherbergi og möguleiki á því fimmta. Eignin samanstendur af alrými (stofa/borðstofa), eldhúsi, fjórum ágætum svefnherbergjum, sjónvarps herbergi, baðherbergi, gesta salerni, geymslu, þvottahúsi og rúmgóðum bílskúr.
Nánari lýsing:
Komið er inn í anddyri með svörtum náttúru flísum, fatahengi, hiti í gólfi.
Gestasalerni flísalagt í hólf og gólf, innrétting, upphengt wc, sturtuklefi.
Björt og falleg stofa/borðstofa með uppteknum loftum, burðar bitar fá að njóta sín, fallegur arin, útgengt úr borðstofu á góðan sólpall.
Eldhúsið er opið við stofu með u laga ljósri innréttingu með góðu vinnuplássi, háfur, tvöfaldur ísskápur, niðurtekinn ljósastokkur, flísar á gólfi.
Svefnherbergin eru fjögur, öll þeirra með stórum og góðum fataskápum. Möguleiki er að bæta fimmta herberginu við við enda gangs þar sem í dag er sjónvarpsrými.
Baðherbergið er flísalagt í hólf og gólf, viðarlituð innrétting, handklæðaskápur, stór innbyggður sturtuklefi, gluggi.
Rúmgott þvottahús flísalagt í hólf og gólf, hvít innrétting, útgengt að framanverðu.
Bílskúrinn er 36fm, geymslulofti yfir hluta hans. Rúmgott hellulagt bílaplan með hitalögn undir
Geymsla með hillum og geymsluloft yfir herbergjagangi. útgengt á tvo vegu úr herbergisgangi.
Sólpallur sem er að mestu aflokaður snýr mót suð-vestri, útgengt á hann úr þremur mismunandi rýmum hússins.
Húsið er vel staðsett í botnlanga við lokaða götu í rólegu og barnvænu hverfi. Stutt er í fallegar og friðsælar gönguleiðir, í Álafosskvos og við Reykjalund. Leikskóli og grunnskóli eru innan hverfisins, stutt er í framhaldsskóla og ekki langt í íþróttasvæðið við Varmá. Stutt í alla verslun og þjónustu, þmt Reykjabúið sem selur egg og alifugla afurðir.
Allar upplýsingar um eignina veitir Bjarni Blöndal löggiltur fasteignasali í síma 662 6163 eða bjarni@remax.is.
Vegna mikillar eftirspurnar vantar mig allar tegundir eigna á skrá. Hafðu samband og ég mun verðmeta eign þína þér að kostnaðarlausu.
Bjarni Blöndal löggiltur fasteignasali (bjarni@remax.is/s:662-6163) kynnir vel skipulagt 169,2fm einbýlishús á einni hæð auk 36 fm bílskúrs, samtals 205,2 fm við Reykjabyggð í Mosfellsbæ. Aukin lofthæð. Arinn í stofu. Fjögur svefnherbergi og möguleiki á því fimmta. Eignin samanstendur af alrými (stofa/borðstofa), eldhúsi, fjórum ágætum svefnherbergjum, sjónvarps herbergi, baðherbergi, gesta salerni, geymslu, þvottahúsi og rúmgóðum bílskúr.
Nánari lýsing:
Komið er inn í anddyri með svörtum náttúru flísum, fatahengi, hiti í gólfi.
Gestasalerni flísalagt í hólf og gólf, innrétting, upphengt wc, sturtuklefi.
Björt og falleg stofa/borðstofa með uppteknum loftum, burðar bitar fá að njóta sín, fallegur arin, útgengt úr borðstofu á góðan sólpall.
Eldhúsið er opið við stofu með u laga ljósri innréttingu með góðu vinnuplássi, háfur, tvöfaldur ísskápur, niðurtekinn ljósastokkur, flísar á gólfi.
Svefnherbergin eru fjögur, öll þeirra með stórum og góðum fataskápum. Möguleiki er að bæta fimmta herberginu við við enda gangs þar sem í dag er sjónvarpsrými.
Baðherbergið er flísalagt í hólf og gólf, viðarlituð innrétting, handklæðaskápur, stór innbyggður sturtuklefi, gluggi.
Rúmgott þvottahús flísalagt í hólf og gólf, hvít innrétting, útgengt að framanverðu.
Bílskúrinn er 36fm, geymslulofti yfir hluta hans. Rúmgott hellulagt bílaplan með hitalögn undir
Geymsla með hillum og geymsluloft yfir herbergjagangi. útgengt á tvo vegu úr herbergisgangi.
Sólpallur sem er að mestu aflokaður snýr mót suð-vestri, útgengt á hann úr þremur mismunandi rýmum hússins.
Húsið er vel staðsett í botnlanga við lokaða götu í rólegu og barnvænu hverfi. Stutt er í fallegar og friðsælar gönguleiðir, í Álafosskvos og við Reykjalund. Leikskóli og grunnskóli eru innan hverfisins, stutt er í framhaldsskóla og ekki langt í íþróttasvæðið við Varmá. Stutt í alla verslun og þjónustu, þmt Reykjabúið sem selur egg og alifugla afurðir.
Allar upplýsingar um eignina veitir Bjarni Blöndal löggiltur fasteignasali í síma 662 6163 eða bjarni@remax.is.
Vegna mikillar eftirspurnar vantar mig allar tegundir eigna á skrá. Hafðu samband og ég mun verðmeta eign þína þér að kostnaðarlausu.
Ár
Fasteignamat
Kaupverð
Stærð
Fermetraverð
20. apr. 2016
51.000.000 kr.
58.000.000 kr.
205.2 m²
282.651 kr.
26. apr. 2007
37.710.000 kr.
44.500.000 kr.
205.2 m²
216.862 kr.
Byggt á upplýsingum úr Þjóðskrá Íslands frá 2006-2026