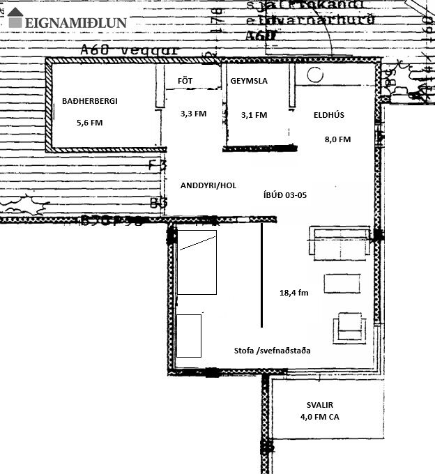
Sólvangsvegur, 220 Hafnarfjörður