Löggiltir fasteignasalar innan Félags fasteignasala:
Aðalheiður Karlsdóttir
Upplýsingar
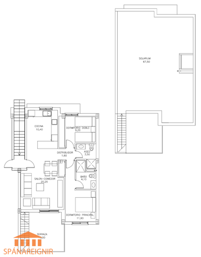
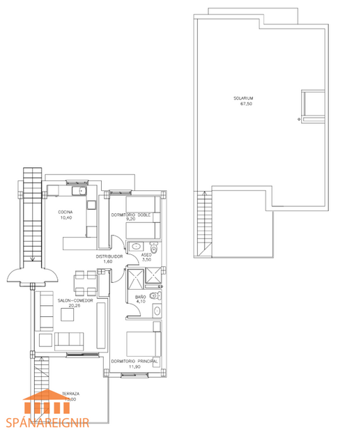
76 m²
3 herb.
2 baðherb.
2 svefnh.
Sérinngangur
Lýsing
SPÁNAREIGNIR KYNNIR NÝTT Í SÖLU:
*FLOTTAR EFRI OG NEÐRI SÉR HÆÐIR Á NOTALEGUM OG FJÖLSKYLDUVÆNUM STAÐ*
Vel hannaðar og flottar 3ja-4ra herb. (2-3 svefnh. + 2 baðh.) íbúðir á góðum stað í San Miguel de Salinas, skemmtilegum spænskum bæ með sál og sjarma. Ca. 50 mín. akstur í suður frá Alicante flugvelli. Íbúðirnar eru í fjölskylduvænu hverfi stutt frá miðbæ San Miguel de Salinas, þar sem er að finna fjölbreytt úrval af verslunum og veitingastöðum. Fjölmargir góðir golfvellir á svæðinu; Las Ramblas, Campoamor, Villamartin, Las Colinas, Vistabella, La Finca og ótal fleiri.
Allar upplýsingar gefa:
Aðalheiður Karlsdóttir, löggiltur fasteignasali. adalheidur@spanareignir.is, 00354 893 2495.
Berta Hawkins, löggiltur fasteignasali, berta@spanareignir.is, 0034 615 112 869,
LÝSING EIGNAR:
Hægt er að velja um efri hæð með svölum og stórri þakverönd, eða neðri hæð með verönd og sér garði. Allar eignir eru með aðgengi að fallegum sameiginlegum sundlaugargarði með skemmtilegri leikaðstöðu fyrir börnin.
Tvö til þrjú svefnherbergi og tvö baðherbergi, rúmgott og bjart alrými með stofu og borðstofu vel tengdu vel búnu eldhúsi.
Græn svæði sem bjóða upp á skemmtilega útiveru allt árið, enda skín sólin allt að 300 daga á ári.
Verð miðað við gengi 1Evra = 145ISK:
Verð frá 243.800 Evrur (35.300.000 ISK) + 10% skattur og ca. 3% kostnaður við kaupin.
Íbúð 76 fm
Sér garður 59 fm fm
eða
Svalir + þaksvalir 68 fm.
Eignirnar eru til afhendingar í sept. - desember 2026
Öll þjónusta í næsta nágrenni og auk þess er Zenia Boulevard verslunarmiðstöðin í ca. 15 mín. akstursleið og ströndin í ca. 20 mín. akstursleið frá San Miguel de Salinas.
Hér er um að ræða góðar eignir á frábærum og fjölskylduvænum stað á frábæru verði. Góð kaup miðað við stærð, staðsetningu og frágang.
Mögulegt er að fjármagna hluta kaupverðs með láni frá spænskum banka með hagstæðum vöxtum.
Við höfum selt fasteignir á Spáni síðan 2001. Tryggir þekkingu, reynslu og öryggi.
Eitt besta loftslag í heimi samkvæmt Alþjóða heilbrigðistofnunni, WHO.
SKOÐUNARFERÐIR:
Við aðstoðum kaupendur við að skipuleggja skoðunarferðir og tökum þátt í kostnaði vegna þeirra, ef af viðskiptum verður.
Sjá nánar um fasteignakaup á Spáni á heimasíðunni okkar: www.spanareignir.is
Kostnaður við kaupin:
10% IVA (spænskur söluskattur) af kaupverði eignarinnar. Auk þess má gera ráð fyrir ca. 3% kostnaði vegna stimpilgjalda og annars kostnaðar við kaupin, þ.e. samtals getur kostnaður vegna kaupa á fasteign á Spáni því farið upp ca. 13%.
Meira um SAN MIGUEL DE SALINAS:
San Miguel de Salinas er skemmtilegur spænskur bær í aðeins 15 mínútna akstursfjarlægð frá ströndum Mil Palmeras, Campoamor, Cabo Roig, La Zenia, Torrevieja, La Mata, Guardamar o.fl. Bærinn er umkringdur fallegri sveit þar sem augað lítur fallega sítrus- og möndlurækt og þjóðlendu garð Sierra Escalona rétt við þröskuldinn. Hægt er að ganga og hjóla marga kílómetra meðfram síkinu sem liggur rétt við bæinn.
Í San Miguel de Salinas er mikið úrval af skemmtilegum veitingastöðum, bæði spænskum og alþjóðlegum og árlegri TAPAS hátíð, sem er mjög vinsæl. Ef þú ert að leita að áfangastað til að dvelja í fríum, eða stað til að búa á allt árið um kring, þá er San Miguel de Salinas frábær kostur þar sem í bænum hefur þú alla nauðsynlega þjónustu og öll þægindi (góðir grunn- og framhaldsskólar, bankar, heilsugæslustöð sem er opin allan sólarhringinn, apótek, góð aðstaða til íþrótta, td. sundlaug, fótbolta- og frjálsíþróttavöllur, tennisvellir, padelvellir, körfuboltavellir, petanca ofl.
Í bænum er líka skemmtileg blanda af spænskum og alþjóðlegum nágrönnum.
Stemmingin er þægileg og afslappandi og verð á börum og veitingastöðum hafa tilhneigingu til að vera lægri en á ströndinni, td. glas af góðu rauðvíni beint úr tunnunni. Vikulegur miðvikudagsmarkaður er frábært tækifæri til að birgja sig upp af staðbundnum ferskum ávöxtum og grænmeti, skinkum, ostum, ólífum, fötum og skóm o.s.frv., áður en þú færð þér drykk og tapas í einni af vinalegu tavernunum í bænum!
Það er góð leigubílaþjónusta á staðnum og almenningsvagnar ganga nokkrum sinnum á dag til Torrevieja, Orihuela og Murcia.
Alicante og Murcia flugvöllur eru báðir í um 40-50 mínútna akstursfjarlægð. Netfyrirtækið á staðnum býður upp á áreiðanlegar, háhraða (ljósleiðara) nettengingar, sem auðveldar fólki að vinna í fjarvinnu.
San Miguel er staður þar sem þú nýtur hefðbundins spænsks lífstíls og menningar, án þess að fórna þægindum af fyrsta flokks aðstöðu og umhverfi.
San Miguel de Salinas er sérlega vinalegur bær sem við vitum að þú munt elska!
Sol Natura er fallegt og vel staðsett íbúðasvæði í bænum San Miguel de Salinas, nánar tiltekið á svæðinu La Cañada. Svæðið er umkringt vernduðum furuskógi og liggur á milli tveggja vinsælla golfvalla, Campoamor og Las Colinas, aðeins um 5 km frá ströndinni.
Í Sol Natura eru tvær tegundir íbúða í boði:
Íbúðir á jarðhæð með tveimur svefnherbergjum, tveimur baðherbergjum, tveimur rúmgóðum görðum og sér bílastæði á lóð.
Íbúðir á efri hæð með tveimur svefnherbergjum, tveimur baðherbergjum, stórri þaksólverönd (solarium) og bílastæði á lóð.
Íbúðir á efri hæð njóta fallegs sjávarútsýnis.
Eignirnar í Sol Natura eru rúmgóðar og með góðri nýtingu rýmis. Íbúðirnar koma með 2 svefnherbergjum, en möguleiki er að bæta við þriðja svefnherberginu fyrir 8.820 Evrur aukagjald + skattur.
Sameiginleg aðstaða er sérstaklega glæsileg og hentar vel fyrir bæði fasta búsetu og til skemmri dvalar.
Sameiginleg sundlaug með góðri aðstöðu.
Sér leiksvæði fyrir börnin
Fallegir garðar með pálmatrjám og gróðri
Allt umhverfið er hannað með það að markmiði að skapa rólegt, öruggt og fjölskylduvænt lífsstílsumhverfi, þar sem hægt er að njóta sólar, útivistar og lífsins allt árið um kring.
Sol Natura býður upp á nútímalegar íbúðir í einstöku umhverfi við golfvelli og náttúru, aðeins nokkrum mínútum frá sjó – fullkominn staður til að njóta lífsins á Spáni.
Eiginleikar: ný eign, sér garður, þakverönd, sameiginleg sundlaug, air con, bílastæði,
Svæði: Costa blanca, San Miguel de Salinas,
*FLOTTAR EFRI OG NEÐRI SÉR HÆÐIR Á NOTALEGUM OG FJÖLSKYLDUVÆNUM STAÐ*
Vel hannaðar og flottar 3ja-4ra herb. (2-3 svefnh. + 2 baðh.) íbúðir á góðum stað í San Miguel de Salinas, skemmtilegum spænskum bæ með sál og sjarma. Ca. 50 mín. akstur í suður frá Alicante flugvelli. Íbúðirnar eru í fjölskylduvænu hverfi stutt frá miðbæ San Miguel de Salinas, þar sem er að finna fjölbreytt úrval af verslunum og veitingastöðum. Fjölmargir góðir golfvellir á svæðinu; Las Ramblas, Campoamor, Villamartin, Las Colinas, Vistabella, La Finca og ótal fleiri.
Allar upplýsingar gefa:
Aðalheiður Karlsdóttir, löggiltur fasteignasali. adalheidur@spanareignir.is, 00354 893 2495.
Berta Hawkins, löggiltur fasteignasali, berta@spanareignir.is, 0034 615 112 869,
LÝSING EIGNAR:
Hægt er að velja um efri hæð með svölum og stórri þakverönd, eða neðri hæð með verönd og sér garði. Allar eignir eru með aðgengi að fallegum sameiginlegum sundlaugargarði með skemmtilegri leikaðstöðu fyrir börnin.
Tvö til þrjú svefnherbergi og tvö baðherbergi, rúmgott og bjart alrými með stofu og borðstofu vel tengdu vel búnu eldhúsi.
Græn svæði sem bjóða upp á skemmtilega útiveru allt árið, enda skín sólin allt að 300 daga á ári.
Verð miðað við gengi 1Evra = 145ISK:
Verð frá 243.800 Evrur (35.300.000 ISK) + 10% skattur og ca. 3% kostnaður við kaupin.
Íbúð 76 fm
Sér garður 59 fm fm
eða
Svalir + þaksvalir 68 fm.
Eignirnar eru til afhendingar í sept. - desember 2026
Öll þjónusta í næsta nágrenni og auk þess er Zenia Boulevard verslunarmiðstöðin í ca. 15 mín. akstursleið og ströndin í ca. 20 mín. akstursleið frá San Miguel de Salinas.
Hér er um að ræða góðar eignir á frábærum og fjölskylduvænum stað á frábæru verði. Góð kaup miðað við stærð, staðsetningu og frágang.
Mögulegt er að fjármagna hluta kaupverðs með láni frá spænskum banka með hagstæðum vöxtum.
Við höfum selt fasteignir á Spáni síðan 2001. Tryggir þekkingu, reynslu og öryggi.
Eitt besta loftslag í heimi samkvæmt Alþjóða heilbrigðistofnunni, WHO.
SKOÐUNARFERÐIR:
Við aðstoðum kaupendur við að skipuleggja skoðunarferðir og tökum þátt í kostnaði vegna þeirra, ef af viðskiptum verður.
Sjá nánar um fasteignakaup á Spáni á heimasíðunni okkar: www.spanareignir.is
Kostnaður við kaupin:
10% IVA (spænskur söluskattur) af kaupverði eignarinnar. Auk þess má gera ráð fyrir ca. 3% kostnaði vegna stimpilgjalda og annars kostnaðar við kaupin, þ.e. samtals getur kostnaður vegna kaupa á fasteign á Spáni því farið upp ca. 13%.
Meira um SAN MIGUEL DE SALINAS:
San Miguel de Salinas er skemmtilegur spænskur bær í aðeins 15 mínútna akstursfjarlægð frá ströndum Mil Palmeras, Campoamor, Cabo Roig, La Zenia, Torrevieja, La Mata, Guardamar o.fl. Bærinn er umkringdur fallegri sveit þar sem augað lítur fallega sítrus- og möndlurækt og þjóðlendu garð Sierra Escalona rétt við þröskuldinn. Hægt er að ganga og hjóla marga kílómetra meðfram síkinu sem liggur rétt við bæinn.
Í San Miguel de Salinas er mikið úrval af skemmtilegum veitingastöðum, bæði spænskum og alþjóðlegum og árlegri TAPAS hátíð, sem er mjög vinsæl. Ef þú ert að leita að áfangastað til að dvelja í fríum, eða stað til að búa á allt árið um kring, þá er San Miguel de Salinas frábær kostur þar sem í bænum hefur þú alla nauðsynlega þjónustu og öll þægindi (góðir grunn- og framhaldsskólar, bankar, heilsugæslustöð sem er opin allan sólarhringinn, apótek, góð aðstaða til íþrótta, td. sundlaug, fótbolta- og frjálsíþróttavöllur, tennisvellir, padelvellir, körfuboltavellir, petanca ofl.
Í bænum er líka skemmtileg blanda af spænskum og alþjóðlegum nágrönnum.
Stemmingin er þægileg og afslappandi og verð á börum og veitingastöðum hafa tilhneigingu til að vera lægri en á ströndinni, td. glas af góðu rauðvíni beint úr tunnunni. Vikulegur miðvikudagsmarkaður er frábært tækifæri til að birgja sig upp af staðbundnum ferskum ávöxtum og grænmeti, skinkum, ostum, ólífum, fötum og skóm o.s.frv., áður en þú færð þér drykk og tapas í einni af vinalegu tavernunum í bænum!
Það er góð leigubílaþjónusta á staðnum og almenningsvagnar ganga nokkrum sinnum á dag til Torrevieja, Orihuela og Murcia.
Alicante og Murcia flugvöllur eru báðir í um 40-50 mínútna akstursfjarlægð. Netfyrirtækið á staðnum býður upp á áreiðanlegar, háhraða (ljósleiðara) nettengingar, sem auðveldar fólki að vinna í fjarvinnu.
San Miguel er staður þar sem þú nýtur hefðbundins spænsks lífstíls og menningar, án þess að fórna þægindum af fyrsta flokks aðstöðu og umhverfi.
San Miguel de Salinas er sérlega vinalegur bær sem við vitum að þú munt elska!
Sol Natura er fallegt og vel staðsett íbúðasvæði í bænum San Miguel de Salinas, nánar tiltekið á svæðinu La Cañada. Svæðið er umkringt vernduðum furuskógi og liggur á milli tveggja vinsælla golfvalla, Campoamor og Las Colinas, aðeins um 5 km frá ströndinni.
Í Sol Natura eru tvær tegundir íbúða í boði:
Íbúðir á jarðhæð með tveimur svefnherbergjum, tveimur baðherbergjum, tveimur rúmgóðum görðum og sér bílastæði á lóð.
Íbúðir á efri hæð með tveimur svefnherbergjum, tveimur baðherbergjum, stórri þaksólverönd (solarium) og bílastæði á lóð.
Íbúðir á efri hæð njóta fallegs sjávarútsýnis.
Eignirnar í Sol Natura eru rúmgóðar og með góðri nýtingu rýmis. Íbúðirnar koma með 2 svefnherbergjum, en möguleiki er að bæta við þriðja svefnherberginu fyrir 8.820 Evrur aukagjald + skattur.
Sameiginleg aðstaða er sérstaklega glæsileg og hentar vel fyrir bæði fasta búsetu og til skemmri dvalar.
Sameiginleg sundlaug með góðri aðstöðu.
Sér leiksvæði fyrir börnin
Fallegir garðar með pálmatrjám og gróðri
Allt umhverfið er hannað með það að markmiði að skapa rólegt, öruggt og fjölskylduvænt lífsstílsumhverfi, þar sem hægt er að njóta sólar, útivistar og lífsins allt árið um kring.
Sol Natura býður upp á nútímalegar íbúðir í einstöku umhverfi við golfvelli og náttúru, aðeins nokkrum mínútum frá sjó – fullkominn staður til að njóta lífsins á Spáni.
Eiginleikar: ný eign, sér garður, þakverönd, sameiginleg sundlaug, air con, bílastæði,
Svæði: Costa blanca, San Miguel de Salinas,