Upplýsingar
Byggt 2023
127,1 m²
3 herb.
1 baðherb.
2 svefnh.
Bílskúr
Sérinngangur
Laus strax
Lýsing
Skeifan og Halldór kynna fallegt og vel skipulagt endaraðhús með rúmgóðum innbyggðum bílskúr við Brattahlíð 24, 270 Mosfellsbær. Eignin er tilbúin til afhendingar við kaupsamning. Húsið er staðsteyp, útveggir eru steinaðir og lofthæð er um 2,9 metrar.
Nánari upplýsingar veitir:
HALLDÓR KRISTJÁN / Sími: 618-9999 / HALLDOR@SKEIFAN.IS
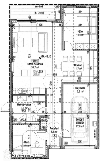
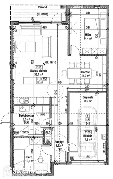
Samkvæmt fasteignaskrá HMS er eignin skráð samtals 127.1 m², þar af er íbúðarrými 102,9 m² og bílskúr er 24,2 m² Eign merkt 01-01, fastanúmer 251-2231 ásamt öllu því sem eigninni fylgir, þar með talið tilheyrandi lóðar og sameignarréttindi.
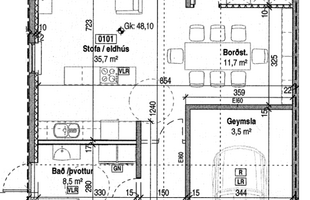
Samkvæmt teikningu skiptist innra skipulag í: Forstofu, eldhús, stofu, borðstofu, baðherbergi ásamt þvottaaðstöðu, tvö svefnherbergi og innbyggður bílskúr.
Nánari Lýsing:
Forstofa: Fataskápur og vínylparket.
Eldhús: Sérsmíðuð innrétting frá Brúnás. Eyja með aðstöðu fyrir barstóla. Ágætisskápapláss upp í loft. Spanhelluborð og eyjuháfur. Eldhús í góðri tengingu við stofu og borðstofu. Bakaraofn í vinnuhæð.
Stofa og borðstofa: Vínylparket á gólfi. Útgengt út á verönd.
Hjónaherbergi: Fataskápar sem ná upp í loft. Vínylparket á gólfi.
Herbergi: Fataskápur og vínylparket á gólfi. Gengið inn í herbergið frá forstofu.
Baðherbergi og þvottaaðstaða: Útgengt út á verönd. Upphengt salerni, handklæðaofn, walk in sturta og eikarinnrétting með innfelldu ljósi. Eikarinnrétting með aðstöðu fyrir þvottavél og þurrkara í vinnuhæð. Flísalagt í hólf og gólf og hreinlætistæki eru frá Grohe.
Innbyggður bílskúr: (24,2 m² að stærð). LED-lýsing í lofti, rafmagnshurðaopnari. Hleðslustöð fyrir rafbíl í bílskúr.
Gluggar og útihurðir: Gluggar eru ál/timbur gluggar. Hurðir og opnanleg fög eru úr áli.
Innréttingar: Sérsmíðaðar frá Brúnás.
Gólfefni: Vínylparket á öllum rýmum nema baðherbergi. Flísar frá Álfaborg eru á baðherbergi.
Innihurðir: Eikarhurðir frá Parka.
Heimilistæki eru frá Simens og hreinlætistæki eru frá Grohe.
Forhitari er fyrir neysluvatn.
Lóð: Hellulagt að framan- og aftanverðu. Snjóbræðslukerfi að framanverðu og búið að tyrfa garð.
Þak: Þakplatan er staðsteypt mótuð með 2,5% þakhalla. Á þakinu er heilbræddur þakpappi með þakmöl.
Sorp: Á lóð er sorpskýli fyrir þrjár tunnur.
Nánari upplýsingar veitir:
Halldór Kristján Sigurðsson löggiltur fasteignasali / Sími: 618-9999 / HALLDOR@SKEIFAN.IS
Kostnaður kaupanda vegna kaupa: Stimpilgjald kaupsamnings einstaklinga er 0,8% og lögaðila 1,6% af fasteignamati eignar. Lántökugjald getur verið breytilegt eftir lánastofnunum, oftast 1%. Þinglýsingargjald er 2.700 kr fyrir hvert skjal. Þjónustu- og umsýslugjald til fasteignasölu skv. kauptilboði. Kaupandi greiðir 0,3% af brunabótamati í skipulagsgjald.
Um skoðunar- og aðgæsluskyldu: Í lögum um fasteignakaup nr. 40/2002 er kveðið á um ríka skoðunarskyldu kaupenda á fasteignum. Skeifan fasteignasala bendir öllum sem hugsa sér að kaupa, að kynna sér vel ástand fasteignarinnar við skoðun fyrir tilboðsgerð og leita til sérfræðinga um nánari ástandsskoðun ef þörf þykir.
Forsendur söluyfirlits: Söluyfirlit er samið af fasteignasala í samræmi við ákvæði laga nr. 70/2015. Þær upplýsingar sem fram koma í söluyfirliti þessu eru sóttar í opinberar skrár, til seljanda sjálfs og eftir atvikum til húsfélags. Seljandi veitir upplýsingar um eign í samræmi við upplýsingaskyldu laga um fasteignakaup nr. 40/2002. Fasteignasali sannreynir að þær upplýsingar séu réttar með sjónskoðun á eigninni. Fasteignasali getur ekki fullyrt um ástand og eiginleika þeirra hluta fasteigna sem ekki eru aðgengilegir og sjást ekki berum augum, t.d. lagnir, dren, skólp og þak.
Nánari upplýsingar veitir:
HALLDÓR KRISTJÁN / Sími: 618-9999 / HALLDOR@SKEIFAN.IS
Samkvæmt fasteignaskrá HMS er eignin skráð samtals 127.1 m², þar af er íbúðarrými 102,9 m² og bílskúr er 24,2 m² Eign merkt 01-01, fastanúmer 251-2231 ásamt öllu því sem eigninni fylgir, þar með talið tilheyrandi lóðar og sameignarréttindi.
Samkvæmt teikningu skiptist innra skipulag í: Forstofu, eldhús, stofu, borðstofu, baðherbergi ásamt þvottaaðstöðu, tvö svefnherbergi og innbyggður bílskúr.
Nánari Lýsing:
Forstofa: Fataskápur og vínylparket.
Eldhús: Sérsmíðuð innrétting frá Brúnás. Eyja með aðstöðu fyrir barstóla. Ágætisskápapláss upp í loft. Spanhelluborð og eyjuháfur. Eldhús í góðri tengingu við stofu og borðstofu. Bakaraofn í vinnuhæð.
Stofa og borðstofa: Vínylparket á gólfi. Útgengt út á verönd.
Hjónaherbergi: Fataskápar sem ná upp í loft. Vínylparket á gólfi.
Herbergi: Fataskápur og vínylparket á gólfi. Gengið inn í herbergið frá forstofu.
Baðherbergi og þvottaaðstaða: Útgengt út á verönd. Upphengt salerni, handklæðaofn, walk in sturta og eikarinnrétting með innfelldu ljósi. Eikarinnrétting með aðstöðu fyrir þvottavél og þurrkara í vinnuhæð. Flísalagt í hólf og gólf og hreinlætistæki eru frá Grohe.
Innbyggður bílskúr: (24,2 m² að stærð). LED-lýsing í lofti, rafmagnshurðaopnari. Hleðslustöð fyrir rafbíl í bílskúr.
Gluggar og útihurðir: Gluggar eru ál/timbur gluggar. Hurðir og opnanleg fög eru úr áli.
Innréttingar: Sérsmíðaðar frá Brúnás.
Gólfefni: Vínylparket á öllum rýmum nema baðherbergi. Flísar frá Álfaborg eru á baðherbergi.
Innihurðir: Eikarhurðir frá Parka.
Heimilistæki eru frá Simens og hreinlætistæki eru frá Grohe.
Forhitari er fyrir neysluvatn.
Lóð: Hellulagt að framan- og aftanverðu. Snjóbræðslukerfi að framanverðu og búið að tyrfa garð.
Þak: Þakplatan er staðsteypt mótuð með 2,5% þakhalla. Á þakinu er heilbræddur þakpappi með þakmöl.
Sorp: Á lóð er sorpskýli fyrir þrjár tunnur.
Nánari upplýsingar veitir:
Halldór Kristján Sigurðsson löggiltur fasteignasali / Sími: 618-9999 / HALLDOR@SKEIFAN.IS
Kostnaður kaupanda vegna kaupa: Stimpilgjald kaupsamnings einstaklinga er 0,8% og lögaðila 1,6% af fasteignamati eignar. Lántökugjald getur verið breytilegt eftir lánastofnunum, oftast 1%. Þinglýsingargjald er 2.700 kr fyrir hvert skjal. Þjónustu- og umsýslugjald til fasteignasölu skv. kauptilboði. Kaupandi greiðir 0,3% af brunabótamati í skipulagsgjald.
Um skoðunar- og aðgæsluskyldu: Í lögum um fasteignakaup nr. 40/2002 er kveðið á um ríka skoðunarskyldu kaupenda á fasteignum. Skeifan fasteignasala bendir öllum sem hugsa sér að kaupa, að kynna sér vel ástand fasteignarinnar við skoðun fyrir tilboðsgerð og leita til sérfræðinga um nánari ástandsskoðun ef þörf þykir.
Forsendur söluyfirlits: Söluyfirlit er samið af fasteignasala í samræmi við ákvæði laga nr. 70/2015. Þær upplýsingar sem fram koma í söluyfirliti þessu eru sóttar í opinberar skrár, til seljanda sjálfs og eftir atvikum til húsfélags. Seljandi veitir upplýsingar um eign í samræmi við upplýsingaskyldu laga um fasteignakaup nr. 40/2002. Fasteignasali sannreynir að þær upplýsingar séu réttar með sjónskoðun á eigninni. Fasteignasali getur ekki fullyrt um ástand og eiginleika þeirra hluta fasteigna sem ekki eru aðgengilegir og sjást ekki berum augum, t.d. lagnir, dren, skólp og þak.
SKEIFAN SKILAR ÁRANGRI - SÍÐAN 1985
Skeifan fasteignasala | Suðurlandsbraut 46 | 108 Reykjavík | Opið frá kl. 9-17 mánudaga til föstudaga | www.skeifan.is
Skeifan á Facebook