Löggiltir fasteignasalar innan Félags fasteignasala:
Hannes Steindórsson
Bogi Molby Pétursson
Guðrún Antonsdóttir
Heimir Hallgrímsson
Hrafnkell P. H. Pálmason
Viðar Marinósson
Elías Haraldsson
Kristján Þórir Hauksson
Albert Bjarni Úlfarsson
Ragnar Þorsteinsson
Þórey Ólafsdóttir
Andri Freyr Halldórsson
Upplýsingar
Byggt 2026
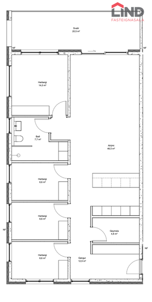
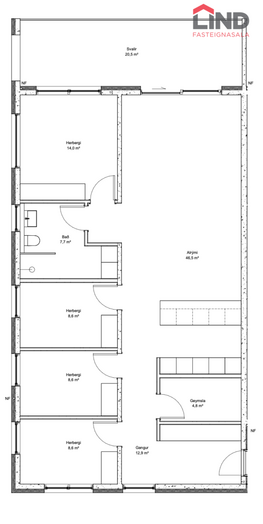
129,4 m²
5 herb.
1 baðherb.
4 svefnh.
Þvottahús
Sérinngangur
Lýsing
LIND Fasteignasala & Páll Konráð lgfs kynna með stolti nýjar íbúðir við Hrafnaborg 4 í nýju fjölskylduvænu íbúðarhverfi í Vogunum.
***HLUTDEILDARLÁN Í BOÐI***
***AFHENDING MARS 2026***
Íbúð 101 er 129,4 fm 5 herbergja ENDAÍBÚÐ á jarðhæð með sérinngangi og u.þ.b 20,6 fm sólpalli.
Íbúðin skiptist í: forsstofu, eldhús, baðherbergi með tengi fyrir þvottavél og þurkara, hjónaherbergi, 3 svefnherbergi, borðstofa/stofa og 4,8 fm geymslu innan íbúðar.
Nánari upplýsingar veita:
Páll Konráð, Löggiltur fasteignasali, S:820-9322, pall@fastlind.is
Einnig má sjá heimasíðu verkefnisins. Skoðaðu með að smella HÉR
- Fullbúnar íbúðir að innan sem utan að undanskyldum gólfefnum. Flísar í votrýmum.
- Sérinngangur í íbúð.
- Rúmgóður sólpallur.
Úrdráttur úr skilalýsingu. Hafðu samband fyrir nánari upplýsingar.
Frágangur innanhúss:
Innréttingar: Verða sérsmíðaðar og ná alveg upp í loft.
Eldhús: Sérsmíðuð og vönduð innrétting, þar sem lögð er áhersla á að haga skipulagi eldhúsa á sem bestan hátt með nútíma hönnun og þarfir í huga, með miklu skápaplássi, möguleiki á innbyggðri uppþvottavél, bakaraofn í vinnuhæð, helluborð með innbyggðri viftu. Borðplata verður úr ljósum QUARTZ stein með vaski. Innfeld lýsing í loftum. Heimilistæki af gerðinni Franke.
Baðherbergi: Sérsmíðuð og vönduð innrétting. Salerni er upphengt, handklæðaofn og sturta með glerskilrúmi. Gert er ráð fyrir þvottavél og þurrkara á baðherberginu með sérsmíðaðri innrétingu.
Baðherbergi eru flísalögð á gólfum og veggjum með Beige 60x60 flísum. Sturta er flíslögð og með innfeldu niðurfalli.
Hreinlætistæki: Öll blöndunartæki eru af vandaðri gerð, Gröhe á baðherbergi, Franke blöndunartæki í eldhúsi.
Gólfefni: Allar íbúðir verða tilbúnar til lagningar gólfefna, fyrir utan baðherbergi og þvottarými sem verða flíslögð með Beige 60x60 flísum á gólfi og veggjum.
Flísar frá Álfaborg.
- VILDARKORT LINDAR -
Við vekjum sérstaka athygli á því að allir kaupendur hjá Lind fasteignasölu fá Vildarkort Lindar sem veitir 30% afslátt hjá samstarfsaðilum okkar, en þeir eru:
Parki (gólfefni), Z brautir og gluggatjöld, Húsgagnahöllin, Betra bak, Dorma, Flügger litir, S. Helgason steinsmiðja, Vídd, Húsasmiðjan og Vodafone.
Byggingaraðili: Hrafnaborg 2-8 ehf.
Aðalhönnuður hússins: JODA Arkitektar.
Raflagnahönnuður: Rásin ehf.
Nánari upplýsingar veita:
Páll Konráð, Löggiltur fasteignasali, S:820-9322, pall@fastlind.is
Hafþór Örn, löggiltur fasteignasali, S: 699-4040, hafthor@fastlind.is
Andri Freyr, löggiltur fasteignasali, S: 762-6162, andri@fastlind.is
Hrafnaborg 4 er 8 íbúða fjölbýli með 12 bílastæðum fyrir framan hús og stendur í nýju íbúðahverfi í Vogum, þar sem stutt er í alla helstu þjónustu — leik- og grunnskóla, íþróttasvæði, sundlaug og verslun. Þægilegur akstur er bæði til Keflavíkur og höfuðborgarsvæðisins, sem gerir Vogana að fullkomnum stað fyrir fjölskyldur og þá sem vilja lifa í rólegu, grónu umhverfi.
ATH. Myndir í auglýsingu sem sýna innbú voru búnar til með hjálp gervigreindar, það er gert einungis til að gefa hugmyndir að fullbúnu rými, hlutföll og fleiri hlutir geta hliðrast til og ber því að taka þessum myndum með fyrirvara, upprunalegu myndirnar eru einnig til staðar.
Kaupandi greiðir 0,3% af væntanlegu brunabótamáti þegar það verður lagt á íbúðina.
Gjöld sem kaupandi þarf að standa straum af vegna kaupanna:
1. Stimpilgjald af kaupsamningi - 0,8% af heildarfasteignamati, lögaðili greiðir 1,6%
2. Þinglýsingargjald af kaupsamningi, veðskuldabréfi, mögulegu veðleyfi o.fl. - kr. 2.700 af hverju skjali.
3. Lántökugjald lánastofnunar. Nánari upplýsingar á t.d. heimasíðu lánastofnana.
4. Umsýslugjald til fasteignasölu skv. gjaldskrá.
***HLUTDEILDARLÁN Í BOÐI***
***AFHENDING MARS 2026***
Íbúð 101 er 129,4 fm 5 herbergja ENDAÍBÚÐ á jarðhæð með sérinngangi og u.þ.b 20,6 fm sólpalli.
Íbúðin skiptist í: forsstofu, eldhús, baðherbergi með tengi fyrir þvottavél og þurkara, hjónaherbergi, 3 svefnherbergi, borðstofa/stofa og 4,8 fm geymslu innan íbúðar.
Nánari upplýsingar veita:
Páll Konráð, Löggiltur fasteignasali, S:820-9322, pall@fastlind.is
Einnig má sjá heimasíðu verkefnisins. Skoðaðu með að smella HÉR
- Fullbúnar íbúðir að innan sem utan að undanskyldum gólfefnum. Flísar í votrýmum.
- Sérinngangur í íbúð.
- Rúmgóður sólpallur.
Úrdráttur úr skilalýsingu. Hafðu samband fyrir nánari upplýsingar.
Frágangur innanhúss:
Innréttingar: Verða sérsmíðaðar og ná alveg upp í loft.
Eldhús: Sérsmíðuð og vönduð innrétting, þar sem lögð er áhersla á að haga skipulagi eldhúsa á sem bestan hátt með nútíma hönnun og þarfir í huga, með miklu skápaplássi, möguleiki á innbyggðri uppþvottavél, bakaraofn í vinnuhæð, helluborð með innbyggðri viftu. Borðplata verður úr ljósum QUARTZ stein með vaski. Innfeld lýsing í loftum. Heimilistæki af gerðinni Franke.
Baðherbergi: Sérsmíðuð og vönduð innrétting. Salerni er upphengt, handklæðaofn og sturta með glerskilrúmi. Gert er ráð fyrir þvottavél og þurrkara á baðherberginu með sérsmíðaðri innrétingu.
Baðherbergi eru flísalögð á gólfum og veggjum með Beige 60x60 flísum. Sturta er flíslögð og með innfeldu niðurfalli.
Hreinlætistæki: Öll blöndunartæki eru af vandaðri gerð, Gröhe á baðherbergi, Franke blöndunartæki í eldhúsi.
Gólfefni: Allar íbúðir verða tilbúnar til lagningar gólfefna, fyrir utan baðherbergi og þvottarými sem verða flíslögð með Beige 60x60 flísum á gólfi og veggjum.
Flísar frá Álfaborg.
- VILDARKORT LINDAR -
Við vekjum sérstaka athygli á því að allir kaupendur hjá Lind fasteignasölu fá Vildarkort Lindar sem veitir 30% afslátt hjá samstarfsaðilum okkar, en þeir eru:
Parki (gólfefni), Z brautir og gluggatjöld, Húsgagnahöllin, Betra bak, Dorma, Flügger litir, S. Helgason steinsmiðja, Vídd, Húsasmiðjan og Vodafone.
Byggingaraðili: Hrafnaborg 2-8 ehf.
Aðalhönnuður hússins: JODA Arkitektar.
Raflagnahönnuður: Rásin ehf.
Nánari upplýsingar veita:
Páll Konráð, Löggiltur fasteignasali, S:820-9322, pall@fastlind.is
Hafþór Örn, löggiltur fasteignasali, S: 699-4040, hafthor@fastlind.is
Andri Freyr, löggiltur fasteignasali, S: 762-6162, andri@fastlind.is
Hrafnaborg 4 er 8 íbúða fjölbýli með 12 bílastæðum fyrir framan hús og stendur í nýju íbúðahverfi í Vogum, þar sem stutt er í alla helstu þjónustu — leik- og grunnskóla, íþróttasvæði, sundlaug og verslun. Þægilegur akstur er bæði til Keflavíkur og höfuðborgarsvæðisins, sem gerir Vogana að fullkomnum stað fyrir fjölskyldur og þá sem vilja lifa í rólegu, grónu umhverfi.
ATH. Myndir í auglýsingu sem sýna innbú voru búnar til með hjálp gervigreindar, það er gert einungis til að gefa hugmyndir að fullbúnu rými, hlutföll og fleiri hlutir geta hliðrast til og ber því að taka þessum myndum með fyrirvara, upprunalegu myndirnar eru einnig til staðar.
Kaupandi greiðir 0,3% af væntanlegu brunabótamáti þegar það verður lagt á íbúðina.
Gjöld sem kaupandi þarf að standa straum af vegna kaupanna:
1. Stimpilgjald af kaupsamningi - 0,8% af heildarfasteignamati, lögaðili greiðir 1,6%
2. Þinglýsingargjald af kaupsamningi, veðskuldabréfi, mögulegu veðleyfi o.fl. - kr. 2.700 af hverju skjali.
3. Lántökugjald lánastofnunar. Nánari upplýsingar á t.d. heimasíðu lánastofnana.
4. Umsýslugjald til fasteignasölu skv. gjaldskrá.