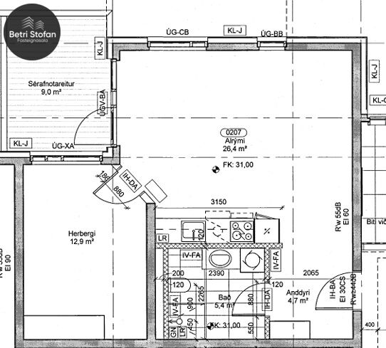
Silfursmári, 201 Kópavogur