Upplýsingar
224,4 m²
6 herb.
4 baðherb.
5 svefnh.
Þvottahús
Bílskúr
Sérinngangur
Lýsing
Keldugata 4, endahús – fjölskylduvænt raðhús á pöllum með einstöku útsýni, 5 svefnherbergi.
Garðatorg eignamiðlun. Sölumaður Sigurður s. 898-3708
Eignin er með 5 svefnherbergjum, frábæru flæði rýma og björtum samverurýmum. Húsið skilast fullbúið að innan sem utan, með frágenginni lóð, vönduðum innréttingum, tækjum og gólfefnum í mjög góðum gæðaflokki.
Hér er um að ræða eign þar sem mikið fæst fyrir verðið. Þegar horft er til stærðar, gæða, frágangs og staðsetningar er erfitt að finna sambærilega eign á höfuðborgarsvæðinu.
Skipulagið kemur sérstaklega á óvart og nýtur sín enn betur í raun en á myndum og teikningum – sjón er sannarlega sögu ríkari.
Eignin er nánast fullbúin og nú er verið að leggja lokahönd á framkvæmdir innan- og utanhúss.
Keldugata 4 er glæsilegt fjölskylduvænt raðhús á pöllum með frábæru útsýni yfir Urriðavatn.
Miele-tæki frá Eyrvík: innbyggð eldhúsvifta í borði, innbyggð uppþvottavél og ísskápur, ofn og örbylgjuofn.
Innréttingar, gólfefni og flísar eru frá MOOD INTERIORS Síðumúla 28, Reykjavík, vandaðar ítalskar vörur frá Scavolini – Regola.
Innréttingar í eldhúsi, baðherbergjum, fataskápum og þvottahúsi eru allar frá Scavolini og bera merki ítalsks hönnunarstíls og gæða.
Flísar eru ítalskar, valdar í samræmi við heildarhönnun og gæðaviðmið verkefnisins.
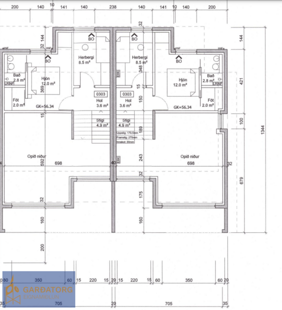
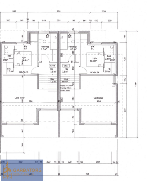
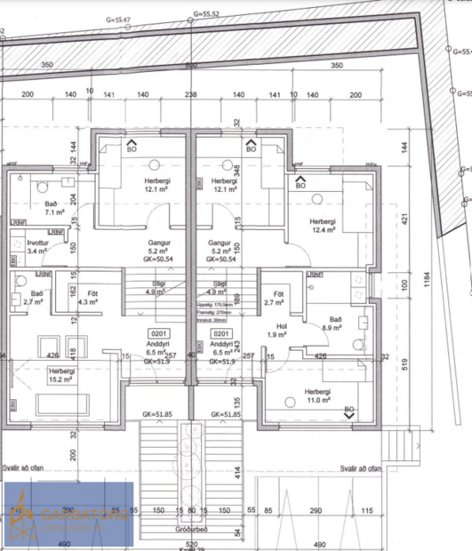
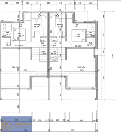
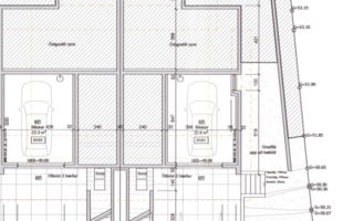
Innra skipulag:
Anddyri, stofa/borðstofa, eldhús, fimm svefnherbergi, baðherbergi og baðherbergi innaf hjónaherbergi, þvottahús og innbyggður bílskúr.
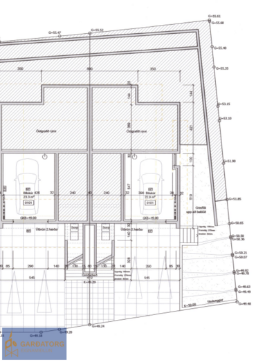
Samtals 224,7 fm, þar af 194,7 fm íbúðarrými og 29,7 fm innbyggður bílskúr.
Auk þess er um ca. 14 fermetra rými við hlið bílskúrs, sem ekki telst með í fermetratölunni.
Innangengt er úr bílskúr, gegnum þetta rými, upp í íbúðarrýmið.
Heildarstærð hússins er því um 239 fermetrar að meðtöldu því rými.
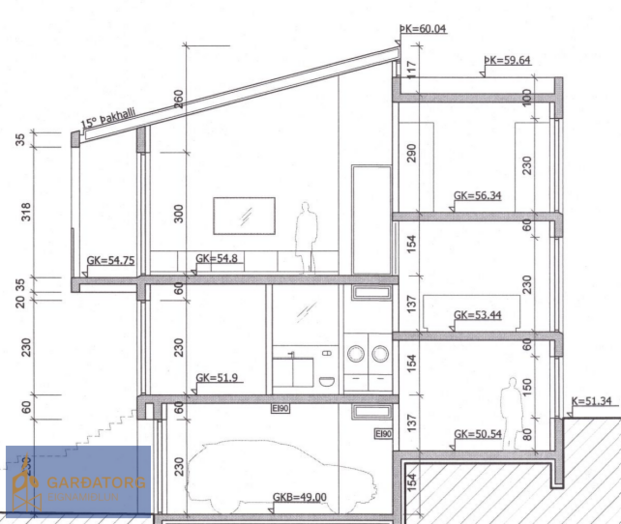
Lausn með pallasamsetningu skapar opið, bjart og einstaklega skemmtilegt rými þar sem hvert svæði nýtur sín. Skipulagið tryggir bæði tengingu og aðgreiningu milli rýma þar sem svefnherbergin eru aðeins afskekkt. Samverurýmið, stofa, borðstofa og eldhús myndar bjart og rúmgott rými með stórum gluggum og útsýni yfir vatnið. Sjón er sögu ríkari.
Pallaskipulag:
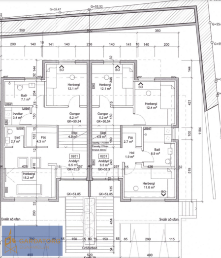
Pallur 1 – Innkoma / Forstofa / Svalir:
Rúmgóð forstofa, forstofuherbergi, sér snyrting og fataherbergi.
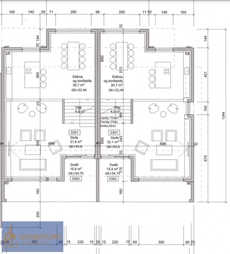
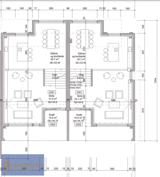
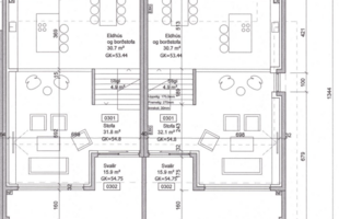
Pallur 2 – Eldhús / Borðstofa:
Bjart eldhús og borðstofa í opnu rými.
Pallur 3 – Stofa / Svalir / Útsýni:
Stofa með mikilli lofthæð og útgengi á suðursvalir með stórbrotnu útsýni yfir Urriðavatn.
Pallur 4 – Svefnherbergi / Hjónaherbergi:
Hjónaherbergi með fataherbergi og sér baðherbergi, annað minna svefnherbergi.
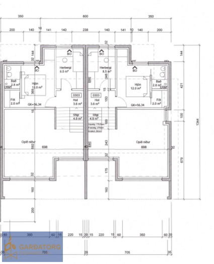
Pallur -2 Svefnherbergi.
Tvö svefnherbergi
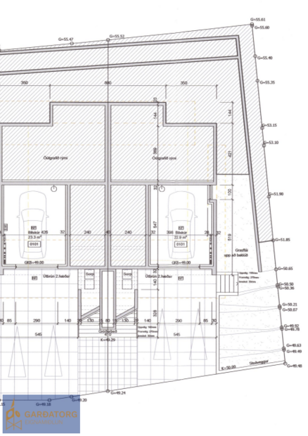
Jarðhæð -2 – Geymsla og bílskúr:
Rúmgóð geymsla (utan fermetratölu eignar). Innangengt í bílskúr.
Frágangur og lóð:
Húsið skilast fullbúið að utan:
Hellulagt bílaplan með hitalögnum í stígum
Gluggar ál/tré með góðri einangrun
Þak steypt að hluta og að hluta úr timbursperrum
Tvívirkt loftræstikerfi innsteypt í loftaplötur. inn og útloftun.
Lóð frágengin
Staðsetning:
Urriðaholt er rólegt og fjölskylduvænt hverfi í Garðabæ þar sem náttúra og mannlíf mætast. Göngufæri við Urriðaskóla, útivistarsvæði og náttúruperlur eins og Urriðavatn og Heiðmörk.
Urriðaholt er fyrsta hverfi landsins sem hlotið hefur vistvottun samkvæmt BREEAM Communities staðli.
Upplýsingar veitir:
Sigurður Tyrfingsson
Löggiltur fasteignasali og húsasmíðameistari
Sími: 898-3708 · Netfang: sigurdur@gardatorg.is
Garðatorg eignamiðlun, Lyngási 11, Garðabæ
Garðatorg eignamiðlun. Sölumaður Sigurður s. 898-3708
Eignin er með 5 svefnherbergjum, frábæru flæði rýma og björtum samverurýmum. Húsið skilast fullbúið að innan sem utan, með frágenginni lóð, vönduðum innréttingum, tækjum og gólfefnum í mjög góðum gæðaflokki.
Hér er um að ræða eign þar sem mikið fæst fyrir verðið. Þegar horft er til stærðar, gæða, frágangs og staðsetningar er erfitt að finna sambærilega eign á höfuðborgarsvæðinu.
Skipulagið kemur sérstaklega á óvart og nýtur sín enn betur í raun en á myndum og teikningum – sjón er sannarlega sögu ríkari.
Eignin er nánast fullbúin og nú er verið að leggja lokahönd á framkvæmdir innan- og utanhúss.
Keldugata 4 er glæsilegt fjölskylduvænt raðhús á pöllum með frábæru útsýni yfir Urriðavatn.
Miele-tæki frá Eyrvík: innbyggð eldhúsvifta í borði, innbyggð uppþvottavél og ísskápur, ofn og örbylgjuofn.
Innréttingar, gólfefni og flísar eru frá MOOD INTERIORS Síðumúla 28, Reykjavík, vandaðar ítalskar vörur frá Scavolini – Regola.
Innréttingar í eldhúsi, baðherbergjum, fataskápum og þvottahúsi eru allar frá Scavolini og bera merki ítalsks hönnunarstíls og gæða.
Flísar eru ítalskar, valdar í samræmi við heildarhönnun og gæðaviðmið verkefnisins.
Innra skipulag:
Anddyri, stofa/borðstofa, eldhús, fimm svefnherbergi, baðherbergi og baðherbergi innaf hjónaherbergi, þvottahús og innbyggður bílskúr.
Samtals 224,7 fm, þar af 194,7 fm íbúðarrými og 29,7 fm innbyggður bílskúr.
Auk þess er um ca. 14 fermetra rými við hlið bílskúrs, sem ekki telst með í fermetratölunni.
Innangengt er úr bílskúr, gegnum þetta rými, upp í íbúðarrýmið.
Heildarstærð hússins er því um 239 fermetrar að meðtöldu því rými.
Lausn með pallasamsetningu skapar opið, bjart og einstaklega skemmtilegt rými þar sem hvert svæði nýtur sín. Skipulagið tryggir bæði tengingu og aðgreiningu milli rýma þar sem svefnherbergin eru aðeins afskekkt. Samverurýmið, stofa, borðstofa og eldhús myndar bjart og rúmgott rými með stórum gluggum og útsýni yfir vatnið. Sjón er sögu ríkari.
Pallaskipulag:
Pallur 1 – Innkoma / Forstofa / Svalir:
Rúmgóð forstofa, forstofuherbergi, sér snyrting og fataherbergi.
Pallur 2 – Eldhús / Borðstofa:
Bjart eldhús og borðstofa í opnu rými.
Pallur 3 – Stofa / Svalir / Útsýni:
Stofa með mikilli lofthæð og útgengi á suðursvalir með stórbrotnu útsýni yfir Urriðavatn.
Pallur 4 – Svefnherbergi / Hjónaherbergi:
Hjónaherbergi með fataherbergi og sér baðherbergi, annað minna svefnherbergi.
Pallur -2 Svefnherbergi.
Tvö svefnherbergi
Jarðhæð -2 – Geymsla og bílskúr:
Rúmgóð geymsla (utan fermetratölu eignar). Innangengt í bílskúr.
Frágangur og lóð:
Húsið skilast fullbúið að utan:
Hellulagt bílaplan með hitalögnum í stígum
Gluggar ál/tré með góðri einangrun
Þak steypt að hluta og að hluta úr timbursperrum
Tvívirkt loftræstikerfi innsteypt í loftaplötur. inn og útloftun.
Lóð frágengin
Staðsetning:
Urriðaholt er rólegt og fjölskylduvænt hverfi í Garðabæ þar sem náttúra og mannlíf mætast. Göngufæri við Urriðaskóla, útivistarsvæði og náttúruperlur eins og Urriðavatn og Heiðmörk.
Urriðaholt er fyrsta hverfi landsins sem hlotið hefur vistvottun samkvæmt BREEAM Communities staðli.
Upplýsingar veitir:
Sigurður Tyrfingsson
Löggiltur fasteignasali og húsasmíðameistari
Sími: 898-3708 · Netfang: sigurdur@gardatorg.is
Garðatorg eignamiðlun, Lyngási 11, Garðabæ
Í lögum um fasteignakaup nr. 40/2002 er kveðið á um ríka skoðunarskyldu kaupenda á fasteignum. Vill því Garðatorg eignamiðlun skora á væntanlega kaupendur að kynna sér vel ástand fasteigna fyrir kauptilboðsgerð og leita til þar til bærra sérfræðinga um nánari skoðun ef með þarf.
Gjöld sem kaupandi þarf að standa straum af vegna kaupanna:
1. Stimpilgjald af kaupsamningi - 0.8% af heildarfasteignamati / 1.6% fyrir lögaðila. (0.4% við fyrstu kaup einstaklinga).
2. Þinglýsingagjald af kaupsamningi, veðskuldabréfi, veðleyfi o.fl.- kr. 2.700 af hverju skjali.
3. Lántökugjald lánastofnunar
4. Umsýsluþóknun til fasteignasölu, sbr.kauptilboð