Löggiltir fasteignasalar innan Félags fasteignasala:
Sverrir Kristinsson
Kjartan Hallgeirsson
Guðlaugur Ingi Guðlaugsson
Daði Hafþórsson
Gunnar Helgi Einarsson
Gunnar Bergmann Jónsson
Jenný Sandra Gunnarsdóttir
Upplýsingar
Verðsaga
svg
Byggt 2005
svg
105,3 m²
svg
3 herb.
svg
2 svefnh.
svg
Sameiginl. inngangur
svg
Bílastæði
svg
Lyfta

Lýsing

Eignamiðlun kynnir:

Björt og falleg þriggja herbergja íbúð á þriðju hæð í vönduðu lyftuhúsi í Sjálandi. Húsið stendur á sjávarlóð við ylströndina og í færi við frábærar gönguleiðir og náttúruna. Vandaðar innréttingar frá Brúnás, nýtt veglegt viðarparket frá Ebson, mjög rúmgóðar suðaustur svalir og glæsilegt útsýni er til sjávar úr stofu. Húsið er reist af BYGG árið 2005. Eigninni fylgir bílastæði í lokaðri bílageymslu.

Nánari upplýsingar: Lilja s. 649-3868 eða lilja@eignamidlun.is


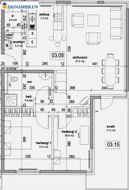
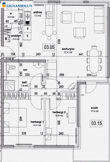
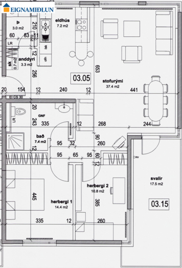
Íbúðin skiptist í forstofu, eldhús, stofu/borðstofu, tvö svefnherbergi, baðherbergi, þvottahús og sérgeymslu í sameign auk stæðis í bílageymslu. Birt flatarmál eignarinnar er 105,3 fm, þar af er íbúðin 97,3 fm og geymslan 8 fm.

**Sækja söluyfirlit**

Nánari lýsing:
Forstofa: Góður fataskápur og parket á gólfi.
Eldhús: Eldhús er opið við stofu með frábæru útsýni. Falleg eldhúsinnrétting frá Brúnás, stein á borðum, ofn í vinnuhæð, helluborð og innbyggður ísskápur. Parket á gólfi.
Stofa/borðstofa: Opið og bjart rými. Fallegt sjávarútsýni frá stofuglugganum og parket á gófli. Útgengt út á 17,5 fm svalir sem vísa til suðausturs.
Svefnherbergi: Rúmgott með góðum fataskáp og parketi á gólfi. 
Hjónaherbergi: Rúmgott með góðum fataskáp og parketi á gólfi. 
Baðherbergi: Flísalagt í hólf og gólf. Falleg innrétting með steini á borði og tveimur vöskum. Stór sturta, handklæðaofn og upphengt salerni.
Þvottahús: Flísar á gólfi. Hvít innrétting með vaski. Tengi fyrir þvottavél og þurrkara.
Geymsla: Ágæt 8 fm geymsla er staðsett í sameign hússins. Merkt 113
Bílageymsla: Gott stæði fylgir íbúðinni í lokaðri, upphitaðri bílageymslu. Merkt B04. Búið er að leggja fyrir rafhleðslu í bílageymslu og þvi þarf einungis að panta hleðslustöð.
Sameign: Mjög snyrtileg og vel um gengin. Húsið að utan er að stórum hluta klætt með áli og því viðhaldslítið.

Nánari upplýsingar veitir:
Lilja Guðmundsdóttir lögg. fasteignasali, sími: 649-3868 eða lilja@eignamidlun.is

***
Ábyrg þjónusta í áratugi. Eignamiðlun var stofnuð 1957 og er elsta starfandi fasteignasala á Íslandi. Reynsla, heiðarleiki og þekking á fasteignamarkaðnum eru grunnur að farsælum viðskiptum. 

Eignamiðlun Grensásvegi 11, 108 Reykjavík - Opið frá kl. 9-17 mánudaga til fimmtudaga og 9-16 á föstudögum.

Heimasíða Eignamiðlunar

Eignamiðlun á Facebook

Eignamiðlun

Eignamiðlun

Grensásvegi 11, 108 Reykjavík
Ár
Fasteignamat
Kaupverð
Stærð
Fermetraverð
19. jún. 2025
93.100.000 kr.
101.200.000 kr.
10305 m²
9.820 kr.
Byggt á upplýsingum úr Þjóðskrá Íslands frá 2006-2026
Eignamiðlun

Eignamiðlun

Grensásvegi 11, 108 Reykjavík