Löggiltir fasteignasalar innan Félags fasteignasala:
Ástþór Reynir Guðmundsson
Vigdís R. S. Helgadóttir
Guðbjörg Helga Jóhannesdóttir
Gylfi Jens Gylfason
Sigrún Matthea Sigvaldadóttir
Sveinn Gíslason
Páll Guðmundsson
Þórarinn Arnar Sævarsson
Berglind Hólm Birgisdóttir
Þorsteinn Gíslason
Guðrún Lilja Tryggvadóttir
Brynjar Ingólfsson
Guðný Þorsteinsdóttir
Bjarni Blöndal
Þorsteinn Ólafs
Þórdís Björk Davíðsdóttir
Jóhann Kristinn Jóhannesson
Bjarný Björg Arnórsdóttir
Salvör Þóra Davíðsdóttir
Magga Sigríður Gísladóttir
Upplýsingar
Byggt 2024
190,4 m²
3 herb.
2 svefnh.
Þvottahús
Bílskúr
Sameiginl. inngangur
Bílastæði
Lyfta
Opið hús: 12. apríl 2026
kl. 12:00
til 12:45
Sölusýning verður á óseldum eignum sunnudaginn 12. apríl milli klukkan 12:00 - 12:45. Verið velkomin.
Lýsing
Guðlaugur J. Guðlaugsson og Gunnar Sverrir löggiltir fasteignasalar hjá RE/MAX fasteignasölu kynna í einkasölu:
Nýja byggð við Hestamýri 1-6 á Álftanesi, 225 Garðabæ. Aðalverktaki, Flotgólf ehf.
Um er ræða mjög vönduð og vel skipulögð lyftu fjölbýlishús. Stæði í bílageymslu fylgir með flestum íbúðum og með sumum íbúðum fylgir sér bílskúr inn í bílageymslu og þær því með tvö stæði.
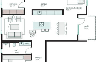
Nánar um eign, íbúð 01-0204, Hestamýri 1B:
Eignin er fjögurra herbergja herbergja íbúð á 2. hæð matshlutans 01, merkt 0204, birt stærð 130,4 fm. Eigninni tilheyrir geymsla í kjallara matshlutans 01, merkt 0008, birt stærð 32,1 fm. og sér bílskúr í bílageymslu matshluta 01, merkt 0033, birt stærð 27,9 fm. Eigninni tilheyra tvennar svalir merktar 0220 og 0233. Birt heildarstærð séreignar er 190,4 fm. Íbúðinni fylgir sér stæði í bílakjallara merkt B27.
Íbúðirnar eru hannaðar að innan af Sæju innanhúshönnuði.
Vandaðar innréttingar og steinn á borðum. Glæsilegt útsýni, stórar stofur, gólfhiti og aukin lofthæð. Íbúðirnar eru allar með gólfsíðum gluggum svo hægt sé að njóta fallegs útsýni til sjávar – og fjalla, Álftanes og víðar.
Smelltu á link til að skoða sýningaríbúð í 3D. Íbúð 203, Hestamýri 1A
Bókið skoðun hjá Gulla í síma 661-6056 eða með tölvupósti á netfangið gulli@remax.is
Sjá má skilalýsingu, verðlista og nánari upplýsingar inn á heimasíðu verkefnisins: Hestamyri.is
Almennt um íbúðirnar
Innréttingar eru sérsmíðaðar með fallegu efnisvali og ná upp í loft. Innréttingar koma frá Parka og heimilistæki eru frá Ormsson. Flísar í íbúðum eru hágæða ítalskar flísar frá Porcalenosa. Fallegt 12mm harðparket frá Parka er á öllum íbúðum. Gólfhiti er í öllum íbúðarrýmum. Allar íbúðir eru með loftskiptikerfi sem tekur loft inn og út úr hverju rými. Þetta kerfi nýtir líka afgangsvarma frá útloftun til þess að hita kalt ferskt loft sem tekið er inn og með því getur orka sparast. Öllum íbúðum er skilað fullbúnum með innréttingum, tækjum og gólfefnum. Baðherbergi eru flísalögð í hólf og gólf með flísum frá Porcalenosa. Þvottahús eru með gólfflísum og sökklum. Innréttingar koma frá Parka og voru hannaðar af Sæbjörgu Guðjónsdóttur. Quartz borðplötur eru á baðherbergjum og eldhúsi og á vegg bak við eldhúsvask. Steinplötur koma frá og eru settar upp af S Helgason. Innréttingar eru klæddar með melamín hnotu, nema í þvottahúsum þar sem er slétt einlitt melamín grátt að lit. Þetta eru allt tveggja til fjögurra herbergja íbúðir. Stærðir eru frá 90.7 fm til 198.5 fm. Öllum íbúðum fylgir sér bílastæði í bílageymslu. 16 af þeim íbúðum eru með sér lokaða bílskúra í bílageymslu, inn af sumum bílskúrum er sér geymsla, hjá öðrum er geymsla staðsett á geymslugangi.
Almennt um húsið
Húsið Hestamýri 1-2 skiptist í tvær byggingar fyrir ofan sameiginlegan bílakjallara, önnur byggingin er tvær hæðir og hin þrjár hæðir og tvö stigahús eru í hverju húsi. Veggir eru staðsteyptir og einangraðir að utan með steinull. Botnplata og útveggir í kjallara er steypt í SikaProof vatnsvarnardúk frá Sika til að tryggja að ekkert vatn komist að steypu. Veggir undir jarðvegi eru einangraðir með EPS plasteinangrun. Húsið er klætt með undirkerfi og álklæðningu frá Málmtækni pönnur og trapísuklæðning til skipts. Veggir inn á svalir og sérafnotareiti eru klæddir með Bambus harðvið frá Málmtækni. Kjallari er undir öllu húsinu með 28 sérmerktum bílastæðum og 16 lokuðum bílskúrum. Geymslur eru á geymslugöngum og inn af bílskúrum. Hjólageymslur eru í kjallara fyrir hvert stigahús og sameiginleg hjólageymsla er í garði á milli húsana ofaná bílgeymslunni. Lóðin er sameiginleg fyrir Hestamýri 1-3. Á milli húsanna eru 80 sameiginleg bílastæði og þar af eru 5 sérmerkt bílastæði fyrir hreyfihamlaða.
Svæðið
Frá Hestamýri er stutt í leikskóla, skóla, sund og íþróttahús og sparkvelli. Örugg göngu/hjólaleið þar sem ekki þarf að fara yfir götu. Á Álftanesi er líka mjög falleg strandlengja sem hentar vel til göngu og útiveru. Göngu- og hjolastígur liggur út á nesið fyrir þá sem vija fara í lengri ferðir. Þá er hestamannafélagið Sóti með aðstöðu á Álftanesi, margar fallegar reiðleiðir þar í kring.
Afhendingartími / Til upplýsingar um Hestamýri 1-6:
Íbúðir í húsi 1-2 eru tilbúnar til afhendingar við kaupsamning.
Íbúðir í húsi 3-4 eru tilbúnar til afhendingar við kaupsamning.
Íbúðir í húsi 5-6 fara í söluferli árið 2026.
Að verkinu standa eftirtaldir aðilar:
Húsbyggjandi er Hestamýri ehf.
Arkitekt og aðalhönnuður er Nordic Office of Architecture og Birkir Árnason.
Verkfræðihönnun, Verkfræðistofu Kópavogs
Raflagnahönnun, Agnar Sveinsson
Innanhúshönnun, Sæbjörg Guðjónsdóttir
Aðalverktaki, Flotgólf ehf.
Nánari upplýsingar veita: Guðlaugur J. Guðlaugsson/Gulli löggiltur fasteignasali í síma 661-6056 / gulli@remax.is og Gunnar Sverrir löggiltur fasteignasali í síma 862-2001 / gunnar@remax.is
Vegna mikillar eftirspurnar vantar okkur allar tegundir eigna á skrá. Hafið samband og við munum verðmeta eign þína þér að kostnaðarlausu.
Gjöld sem kaupandi þarf að standa straum af vegna kaupanna:
1. Stimpilgjald af kaupsamningi 0,8%, ( 0,4% ef um fyrstu kaup er að ræða ) og 1.6% (ef um lögaðila er að ræða) af heildar fasteignamati.
2. Þinglýsingargjald af kaupsamningi, veðskuldabréfi, mögulegu veðleyfi o.fl. - kr. 2.700 af hverju skjali.
3. Lántökugjald lánastofnunar - Nánari upplýsingar á heimasíðum lánastofnana.
4. Umsýslugjald til fasteignasölu kr. 69.900.-
Nýja byggð við Hestamýri 1-6 á Álftanesi, 225 Garðabæ. Aðalverktaki, Flotgólf ehf.
Um er ræða mjög vönduð og vel skipulögð lyftu fjölbýlishús. Stæði í bílageymslu fylgir með flestum íbúðum og með sumum íbúðum fylgir sér bílskúr inn í bílageymslu og þær því með tvö stæði.
Nánar um eign, íbúð 01-0204, Hestamýri 1B:
Eignin er fjögurra herbergja herbergja íbúð á 2. hæð matshlutans 01, merkt 0204, birt stærð 130,4 fm. Eigninni tilheyrir geymsla í kjallara matshlutans 01, merkt 0008, birt stærð 32,1 fm. og sér bílskúr í bílageymslu matshluta 01, merkt 0033, birt stærð 27,9 fm. Eigninni tilheyra tvennar svalir merktar 0220 og 0233. Birt heildarstærð séreignar er 190,4 fm. Íbúðinni fylgir sér stæði í bílakjallara merkt B27.
Íbúðirnar eru hannaðar að innan af Sæju innanhúshönnuði.
Vandaðar innréttingar og steinn á borðum. Glæsilegt útsýni, stórar stofur, gólfhiti og aukin lofthæð. Íbúðirnar eru allar með gólfsíðum gluggum svo hægt sé að njóta fallegs útsýni til sjávar – og fjalla, Álftanes og víðar.
Smelltu á link til að skoða sýningaríbúð í 3D. Íbúð 203, Hestamýri 1A
Bókið skoðun hjá Gulla í síma 661-6056 eða með tölvupósti á netfangið gulli@remax.is
Sjá má skilalýsingu, verðlista og nánari upplýsingar inn á heimasíðu verkefnisins: Hestamyri.is
Almennt um íbúðirnar
Innréttingar eru sérsmíðaðar með fallegu efnisvali og ná upp í loft. Innréttingar koma frá Parka og heimilistæki eru frá Ormsson. Flísar í íbúðum eru hágæða ítalskar flísar frá Porcalenosa. Fallegt 12mm harðparket frá Parka er á öllum íbúðum. Gólfhiti er í öllum íbúðarrýmum. Allar íbúðir eru með loftskiptikerfi sem tekur loft inn og út úr hverju rými. Þetta kerfi nýtir líka afgangsvarma frá útloftun til þess að hita kalt ferskt loft sem tekið er inn og með því getur orka sparast. Öllum íbúðum er skilað fullbúnum með innréttingum, tækjum og gólfefnum. Baðherbergi eru flísalögð í hólf og gólf með flísum frá Porcalenosa. Þvottahús eru með gólfflísum og sökklum. Innréttingar koma frá Parka og voru hannaðar af Sæbjörgu Guðjónsdóttur. Quartz borðplötur eru á baðherbergjum og eldhúsi og á vegg bak við eldhúsvask. Steinplötur koma frá og eru settar upp af S Helgason. Innréttingar eru klæddar með melamín hnotu, nema í þvottahúsum þar sem er slétt einlitt melamín grátt að lit. Þetta eru allt tveggja til fjögurra herbergja íbúðir. Stærðir eru frá 90.7 fm til 198.5 fm. Öllum íbúðum fylgir sér bílastæði í bílageymslu. 16 af þeim íbúðum eru með sér lokaða bílskúra í bílageymslu, inn af sumum bílskúrum er sér geymsla, hjá öðrum er geymsla staðsett á geymslugangi.
Almennt um húsið
Húsið Hestamýri 1-2 skiptist í tvær byggingar fyrir ofan sameiginlegan bílakjallara, önnur byggingin er tvær hæðir og hin þrjár hæðir og tvö stigahús eru í hverju húsi. Veggir eru staðsteyptir og einangraðir að utan með steinull. Botnplata og útveggir í kjallara er steypt í SikaProof vatnsvarnardúk frá Sika til að tryggja að ekkert vatn komist að steypu. Veggir undir jarðvegi eru einangraðir með EPS plasteinangrun. Húsið er klætt með undirkerfi og álklæðningu frá Málmtækni pönnur og trapísuklæðning til skipts. Veggir inn á svalir og sérafnotareiti eru klæddir með Bambus harðvið frá Málmtækni. Kjallari er undir öllu húsinu með 28 sérmerktum bílastæðum og 16 lokuðum bílskúrum. Geymslur eru á geymslugöngum og inn af bílskúrum. Hjólageymslur eru í kjallara fyrir hvert stigahús og sameiginleg hjólageymsla er í garði á milli húsana ofaná bílgeymslunni. Lóðin er sameiginleg fyrir Hestamýri 1-3. Á milli húsanna eru 80 sameiginleg bílastæði og þar af eru 5 sérmerkt bílastæði fyrir hreyfihamlaða.
Svæðið
Frá Hestamýri er stutt í leikskóla, skóla, sund og íþróttahús og sparkvelli. Örugg göngu/hjólaleið þar sem ekki þarf að fara yfir götu. Á Álftanesi er líka mjög falleg strandlengja sem hentar vel til göngu og útiveru. Göngu- og hjolastígur liggur út á nesið fyrir þá sem vija fara í lengri ferðir. Þá er hestamannafélagið Sóti með aðstöðu á Álftanesi, margar fallegar reiðleiðir þar í kring.
Afhendingartími / Til upplýsingar um Hestamýri 1-6:
Íbúðir í húsi 1-2 eru tilbúnar til afhendingar við kaupsamning.
Íbúðir í húsi 3-4 eru tilbúnar til afhendingar við kaupsamning.
Íbúðir í húsi 5-6 fara í söluferli árið 2026.
Að verkinu standa eftirtaldir aðilar:
Húsbyggjandi er Hestamýri ehf.
Arkitekt og aðalhönnuður er Nordic Office of Architecture og Birkir Árnason.
Verkfræðihönnun, Verkfræðistofu Kópavogs
Raflagnahönnun, Agnar Sveinsson
Innanhúshönnun, Sæbjörg Guðjónsdóttir
Aðalverktaki, Flotgólf ehf.
Nánari upplýsingar veita: Guðlaugur J. Guðlaugsson/Gulli löggiltur fasteignasali í síma 661-6056 / gulli@remax.is og Gunnar Sverrir löggiltur fasteignasali í síma 862-2001 / gunnar@remax.is
Vegna mikillar eftirspurnar vantar okkur allar tegundir eigna á skrá. Hafið samband og við munum verðmeta eign þína þér að kostnaðarlausu.
Gjöld sem kaupandi þarf að standa straum af vegna kaupanna:
1. Stimpilgjald af kaupsamningi 0,8%, ( 0,4% ef um fyrstu kaup er að ræða ) og 1.6% (ef um lögaðila er að ræða) af heildar fasteignamati.
2. Þinglýsingargjald af kaupsamningi, veðskuldabréfi, mögulegu veðleyfi o.fl. - kr. 2.700 af hverju skjali.
3. Lántökugjald lánastofnunar - Nánari upplýsingar á heimasíðum lánastofnana.
4. Umsýslugjald til fasteignasölu kr. 69.900.-