Löggiltir fasteignasalar innan Félags fasteignasala:
Vista
fjölbýlishús

Reynidalur 3

260 Reykjanesbær

65.400.000 kr.

668.029 þ.kr./m2
Fasteignanúmer

F2508337

Fasteignamat

62.650.000 kr.

Brunabótamat

50.400.000 kr.

Áhvílandi

0 kr.

Arion banki – Reikna lán
Upplýsingar
Verðsaga
svg
Byggt 2020
svg
97,9 m²
svg
3 herb.
svg
1 baðherb.
svg
3 svefnh.
svg
Þvottahús
svg
Sérinngangur
svg
Svalir

Lýsing

Einstaklega rúmgóð og björt 3-4 herbergja endaíbúð á efri hæð í nútímalegu tveggja hæða fjölbýli. Íbúðin er vel skipulögð með sérinngangi og suðursvölum. *** English translation below ***


Umhverfi
Húsið er í Dalshverfi á Reykjanesinu sem er einstakt og nýstárlegt hverfi. Útsýni yfir Keflavík og falleg náttúra í næsta nágrenni sem býður upp á fjölmarga útivistarmöguleika. Reykjanesbrautin er rétt hjá og um 15 mínútna akstur til Hafnarfjarðar.
Fitjar eru í 5 mínútna aksturs fjarlægð þar sem er mikill þjónustukjarni með matvörubúðum, verslunum, veitingastöðum og fleira.
Stapaskóli er í göngufæri, sem er einn glæsilegasti leik- og grunnskóli landsins, en þar er einnig tónlistarskóli, frístunda- og félagsmiðstöð, íþróttahús, sundlaug og bókasafn.
Bílastæði
Fyrir framan húsið eru malbikuð bílastæði. Sérmerkt bílastæði fyrir íbúðina ásamt gestastæðum.
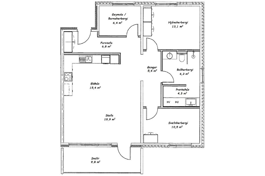
Forstofa
Rúmgóð forstofa með flísalögðu gólfi og stórum fataskáp.
Eldhús
Nútímalegt opið eldhús saman við stofu. Vönduð innrétting frá Arens, ný borðplata, helluborð frá AEG með háfi og innbyggðum blástursofni í þægilegri vinnuhæð.
Stofa
Björt og rúmgóð stofa með harðparketi frá Birgisson, útgengi er út á góðar suður svalir – kjörinn staður til slökunar og sólbaða.
Svefnherbergi
Tvö rúmgóð svefnherbergi með harðparketi frá Birgisson og stórum innbyggðum skápum frá Arens.
Baðherbergi
Nútímalegt baðherbergi með flísalögðu gólfi og veggjum að hluta. Útbúið með fallegum innréttingum frá Arens, stórum spegli, upphengdu salerni, walk-in sturtu, handklæðaofni, glugga og loftræstingu.
Þvottahús / þvottasvæði
Hagnýtt þvottasvæði inn af baðherberginu með hvítri innréttingu og góðri vinnuaðstöðu, skolvaski og rými fyrir þvottavél og þurrkara.
Geymsla / möguleiki á þriðja svefnherbergi
Aukarými með parketi og glugga sem nýtist sem geymsla, heimaskrifstofa eða þriðja svefnherbergi.
Útisvæði
Íbúum til afnota er sameiginlegt, vel hirt svæði með grasflöt við suðurhlið hússins. Góðar gönguleiðir í næsta nágreni og stutt út í náttúruna.
Húsbúnaður
Möguleiki er að hluti húsgagna og tækja fylgi við sölu, þar á meðal allur ljósabúnaður, Samsung ísskápur, 65" Philips OLED sjónvarp, Electrolux þvottavél og fleira.

Nánari upplýsingar
Nánari upplýsingar veitir Sigurður Örn
Sími: +354 699 2911
Netfang: hreindal@gmail.com

* English
Property Description
Exceptionally spacious and bright 2–3-bedroom corner apartment on the upper floor in a modern two-story apartment building. The apartment is well-planned with a private entrance and south-facing balcony.
Location/Environment The building is located in Dalshverfi in Reykjanes, a unique and innovative neighborhood with great view over Keflavík. Beautiful nature is nearby, providing numerous outdoor recreation opportunities. The Reykjanesbraut is close by, and it's about a 15-minute drive to Hafnarfjörður.
Fitjar is just a 5-minute drive away, featuring a major service center with grocery stores, shops, restaurants, and more.
Stapaskóli is within walking distance—one of the country's most impressive preschools and primary schools—also including a music school, after-school and youth center, sports hall, swimming pool, and a library.
Parking
Paved parking is located directly in front of the building. The apartment includes a designated private parking space as well as additional guest parking.
Entrance Hall
Spacious entrance hall with tiled flooring and a large built-in wardrobe.
Kitchen
Modern open-plan kitchen combined with the living room. High-quality cabinetry from Arens, new countertop, AEG induction cooktop with hood, and built-in convection oven at a convenient working height.
Living Room
Bright and spacious living room with high-quality hardwood flooring from Birgisson. Direct access to excellent south-facing balcony—perfect for relaxation and sunbathing.
Bedrooms
Two spacious bedrooms with hardwood parquet flooring from Birgisson and large built-in wardrobes from Arens.
Bathroom
Modern bathroom with tiled flooring and partially tiled walls. Equipped with beautiful fixtures from Arens, large mirror, wall-mounted toilet, walk-in shower, heated towel rack, window and ventilation fan.
Laundry Area
Practical laundry space within the bathroom, with white cabinetry and good workspace, utility sink and connections for washing machine and dryer.
Storage / Potential Third Bedroom
Additional room with parquet flooring and a window, suitable as storage, home office, or third bedroom.
Outdoor Area
Residents have access to a shared, well-maintained green area with lawn on the south side of the building. Good walking paths and quick access to nature.
Appliances & Furnishings
Option to include some furniture and appliances with the sale, including all lighting fixtures, Samsung refrigerator, 65" Philips OLED TV, Electrolux washing machine, and more.

Further Information
For additional information, please contact Sigurður Örn
Phone: +354 699 2911
Email: hreindal@gmail.com


Finndu frekari upplýsingar um eignina á www.e-fasteignir.is
- Söluyfirlit
- Senda fyrirspurn
- Tilboðsgerð



Vegna auglýsingar á vefsvæðinu fasteignir.is:
Eigendur auglýsa eign sína sjálfir án milligöngu og finna til kaupendur. Eigendur tryggja að löggiltur fasteignasali (eða aðili með löggildingu til að annast milligöngu um sölu fasteigna og skipa) annist milligöngu þegar kemur að kauptilboði og / eða kaupsamningsgerð vegna auglýsingar á vefsvæði Vísis (fasteignir.is). Þessi aðili mun þá sjá um skjalagerð, þ.m.t. söluyfirlit, kauptilboð, kaupsamning, veðleyfi og afsal, eftir því sem við á hverju sinni, og sjá um að annast viðskiptin í samræmi við lög um sölu fasteigna og skipa nr. 70/2015. Þannig er tryggt að varnir gegn peningaþvætti séu virtar og að réttarstaða kaupanda og seljanda er glögg.

Eigendur geta nýtt sér umrædda þjónustu hjá samstarfsaðila e-fasteigna, PRIMA fasteignasölu, en það er ekki skilyrði fyrir notkun kerfisins og stendur aðilum aðeins til boða ef hún hentar öllum hlutaðeigandi.
Verðskrá þjónustunnar er aðgengileg á vef e-fasteigna.

e-fasteignir | Fasteignakerfi

e-fasteignir | Fasteignakerfi

Bjarkarás 3a, 210 Garðabær
phone
Ár
Fasteignamat
Kaupverð
Stærð
Fermetraverð
15. jan. 2021
34.600.000 kr.
39.000.000 kr.
97.9 m²
398.366 kr.
Byggt á upplýsingum úr Þjóðskrá Íslands frá 2006-2026
e-fasteignir | Fasteignakerfi

e-fasteignir | Fasteignakerfi

Bjarkarás 3a, 210 Garðabær
phone