Upplýsingar
Verðsaga
Byggt 1974
342,4 m²
9 herb.
4 baðherb.
6 svefnh.
Þvottahús
Bílskúr
Sérinngangur
Opið hús: 11. apríl 2026
kl. 13:00
til 13:30
Opið hús: Fornistekkur 3, 109 Reykjavík. Eignin verður sýnd laugardaginn 11. apríl 2026 milli kl. 13:00 og kl. 13:30.
Lýsing
Valhöll fasteignasala kynnir: Fallegt og reisulegt einbýlishús með tvöföldum bílskúr í grónum og rólegum hluta Stekkjanna. Tvær aukaíbúðir eru á neðri hæð, báðar með sérinngangi og löglegri lofthæð. Möguleiki er á mjög góðum leigutekjum. Húsið hefur verið endurnýjað að hluta á undanförnum árum — m.a. þakklæðning, eldhús, gestasnyrting og þvottahús. Nýleg upphituð innkeyrsla með steyptu mynstri. Tvöfaldur bílskúr, stór suður pallur og fallegur gróður sem veitir skjól ásamt því að ramma inn þennan sælureit. Stór og fjölskylduvænn valkostur fyrir þá sem vilja nýta tekjumöguleika og búa vel.
Eign afhendist við undirritun kaupsamnings!
Nánari upplýsingar veitir Óskar H. Bjarnasen lögmaður og löggiltur fasteignasali í síma 691-1931 eða oskar@valholl.is
Sjáðu myndband af eigninni.
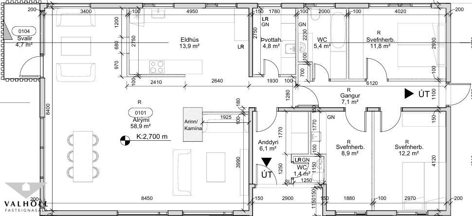
Samkvæmt fasteignayfirliti HMS er húsið skráð alls 342,4 fm sem skiptist niður íbúð 293,4 fm og bílskúr 49 fm bílskúr. Auk þess eru u.þ.b. 49 fm óskráður kjallari undir bílskúrnum og ca. 12 fm geymsla á baklóð. Fyrir liggja nýjar teikningar af húsinu frá Verksýn þar sem birt stærð eignarinnar er 352 fm. Samtals eru nýtanlegir fermetrar því yfir 400 fm.
Nánari lýsing:
Efri hæð, aðalíbúð (stærð 146 fm):
Forstofa: Flísalögð, rúmgóð með fataskáp með rennihurð. Rúmgott rými.
Snyrting: Innaf forstofu. Endurnýjað árið 2014.
Alrýmið: er mjög bjart og rúmgott með stórum gluggum á þrjá vegu og mikilli lofthæð. Fallegt útsýni. Stofan er þrískipt með harðparketi á gólfum. Borðstofa til hliðar við eldhús þaðan sem útgengt er á vestur svalir. Mjög rúmgóð setstofa með fallegum arni og sjónvarpsstofa sem auðvelt væri að breyta í fjórða herbergið.
Eldhús: Nýlega endurnýjað með fallegri IKEA innréttingu og góðum tækjum m.a. háfi yfir helluborði, ofn og örbylgjuofn. Flísar á gólfi. Fallegt útsýni er úr eldhúsi.
Svefnherbergi: Þrjú svefnherbergi á herbergisgangi. Hjónaherbergi með fataskáp. Í enda herbergjagangs er útgengt út á verönd sem leiðir að bílskúr.
Þvottahús: Með innréttingu, pláss fyrir þvottavél og þurrkara í vinnuhæð, skolvaski og góðri loftræstingu. Fallegir steindir gluggar gefa mikin svip.
Baðherbergi: Baðkar og sturta. Flísalagt í hólf og gólf. Opnanlegt fag á glugga. Skápainnrétting undir vaski og speglaskápur fyrir ofan.
Tvær aukaíbúðir eru á neðri hæð húss (Samtals stærð er 155 fm).
Tveggja herbergja íbúð er 69 fm skv. teikningu, mikið endurnýjuð. Rúmgóð stofa, flísalagt eldhús, baðherbergi með sturtuklefa ásamt tengi fyrir þvottavél. Stórt svefnherbergi.
Þriggja herbergja íbúðin er, 86 fm. skv. teikningu, með flísalögðu anddyri þar sem er innfelldur fataskápur. Inn af forstofu er þvottahús með skolvaski. Góð stofa með parket á gólfi. Tvö rúmgóð svefnherbergi. Baðherbergi með nýlegum sturtuklefa. Eldhús með flísalögðu gólfi og með fínni innréttingu, stæði fyrir uppþvottavél og ísskáp.
Bílskúr er 49 fm að stærð og með tveimur innkeyrsludyrum. Undir bílskúr er jafnstórt rými sem er í óskráðum fermetrum þannig að í raun er gólfflötur fasteignarinnar rúmir 390 fm. Baka til er einnig áhaldaskúr ca. 12 fm sem einnig eru til viðbótar við skráða fermetra.
Endurbætur síðustu ára: Að sögn fyrri eigenda var þakjárn og þakpappi endurnýjaður fyrir 5 árum síðan einnig var árið 2006 vatnsklæðning þakskeggs ásamt þakrennum og niðurfallsrörum endurjað. Regnvatnsbrunnur og skolpbrunnur í lóð voru endurnýjaðir árið 2015 og tveimur árum síðar var lögð sér skolplögn fyrir minni aukaíbúðina að brunni í lóð. Allir ofnar og ofnakranar í húsinu hafa verið endurnýjaðir á síðustu 5 árum. Allar hurðir og karmar efri hæðar og hluta neðri hæðar hafa verið endurnýjaðir.
Lóð: Glæsilegur pallur er við húsið að framanverðu sem snýr í suður. Lagt hefur verið fyrir heitum/köldum potti ásamt frárennslislögnum. Glæsileg stimpilsteypt heimreið með hita undir.
Vel staðsett fjölskylduheimili stutt frá allri helstu þjónustu og með auðveldu aðgengi að stofnbrautum.
Nánari upplýsingar veitir Óskar H. Bjarnasen lögmaður og löggiltur fasteignasali í síma 691-1931 eða oskar@valholl.is
Um skoðunar- og aðgæsluskyldu kaupenda:
Í lögum um fasteignakaup nr. 40/2002 er kveðið á um ríka skoðunarskyldu kaupenda á fasteignum. Valhöll fasteignasala bendir væntanlegum kaupendum á að kynna sér vel ástand eigna við skoðun og fyrir tilboðsgerð og að leita til sérfræðinga um nánari ástandsskoðun ef þörf er á.
Forsendur söluyfirlits:
Söluyfirlit er samið af fasteignasala í samræmi við ákvæði laga nr. 70/2015. Þær upplýsingar sem fram koma í söluyfirliti þessu eru sóttar í opinberar skrár, til seljanda sjálfs og eftir atvikum til húsfélags. Seljandi veitir upplýsingar um eign í samræmi við upplýsingaskyldu laga um fasteignakaup nr. 40/2002. Fasteignasali sannreynir að þær upplýsingar séu réttar með sjónskoðun á eigninni. Fasteignasali getur ekki fullyrt um ástand og eiginleika þeirra hluta fasteigna sem ekki eru aðgengilegir og sjást ekki berum augum, t.d. lagnir, dren, skólp og þak.
Gjöld sem kaupandi þarf að standa straum af vegna kaupanna:
1. Stimpilgjald af kaupsamningi - 0.8% af heildarfasteignamati / 1.6% fyrir lögaðila. (0.4% við fyrstu kaup einstaklinga).
2. Þinglýsingagjald af kaupsamningi, veðskuldabréfi, veðleyfi o.fl.- kr. 3.800 af hverju skjali.
3. Umsýsluþóknun til fasteignasölu, sbr.kauptilboð.
Eign afhendist við undirritun kaupsamnings!
Nánari upplýsingar veitir Óskar H. Bjarnasen lögmaður og löggiltur fasteignasali í síma 691-1931 eða oskar@valholl.is
Sjáðu myndband af eigninni.
Samkvæmt fasteignayfirliti HMS er húsið skráð alls 342,4 fm sem skiptist niður íbúð 293,4 fm og bílskúr 49 fm bílskúr. Auk þess eru u.þ.b. 49 fm óskráður kjallari undir bílskúrnum og ca. 12 fm geymsla á baklóð. Fyrir liggja nýjar teikningar af húsinu frá Verksýn þar sem birt stærð eignarinnar er 352 fm. Samtals eru nýtanlegir fermetrar því yfir 400 fm.
Nánari lýsing:
Efri hæð, aðalíbúð (stærð 146 fm):
Forstofa: Flísalögð, rúmgóð með fataskáp með rennihurð. Rúmgott rými.
Snyrting: Innaf forstofu. Endurnýjað árið 2014.
Alrýmið: er mjög bjart og rúmgott með stórum gluggum á þrjá vegu og mikilli lofthæð. Fallegt útsýni. Stofan er þrískipt með harðparketi á gólfum. Borðstofa til hliðar við eldhús þaðan sem útgengt er á vestur svalir. Mjög rúmgóð setstofa með fallegum arni og sjónvarpsstofa sem auðvelt væri að breyta í fjórða herbergið.
Eldhús: Nýlega endurnýjað með fallegri IKEA innréttingu og góðum tækjum m.a. háfi yfir helluborði, ofn og örbylgjuofn. Flísar á gólfi. Fallegt útsýni er úr eldhúsi.
Svefnherbergi: Þrjú svefnherbergi á herbergisgangi. Hjónaherbergi með fataskáp. Í enda herbergjagangs er útgengt út á verönd sem leiðir að bílskúr.
Þvottahús: Með innréttingu, pláss fyrir þvottavél og þurrkara í vinnuhæð, skolvaski og góðri loftræstingu. Fallegir steindir gluggar gefa mikin svip.
Baðherbergi: Baðkar og sturta. Flísalagt í hólf og gólf. Opnanlegt fag á glugga. Skápainnrétting undir vaski og speglaskápur fyrir ofan.
Tvær aukaíbúðir eru á neðri hæð húss (Samtals stærð er 155 fm).
Tveggja herbergja íbúð er 69 fm skv. teikningu, mikið endurnýjuð. Rúmgóð stofa, flísalagt eldhús, baðherbergi með sturtuklefa ásamt tengi fyrir þvottavél. Stórt svefnherbergi.
Þriggja herbergja íbúðin er, 86 fm. skv. teikningu, með flísalögðu anddyri þar sem er innfelldur fataskápur. Inn af forstofu er þvottahús með skolvaski. Góð stofa með parket á gólfi. Tvö rúmgóð svefnherbergi. Baðherbergi með nýlegum sturtuklefa. Eldhús með flísalögðu gólfi og með fínni innréttingu, stæði fyrir uppþvottavél og ísskáp.
Bílskúr er 49 fm að stærð og með tveimur innkeyrsludyrum. Undir bílskúr er jafnstórt rými sem er í óskráðum fermetrum þannig að í raun er gólfflötur fasteignarinnar rúmir 390 fm. Baka til er einnig áhaldaskúr ca. 12 fm sem einnig eru til viðbótar við skráða fermetra.
Endurbætur síðustu ára: Að sögn fyrri eigenda var þakjárn og þakpappi endurnýjaður fyrir 5 árum síðan einnig var árið 2006 vatnsklæðning þakskeggs ásamt þakrennum og niðurfallsrörum endurjað. Regnvatnsbrunnur og skolpbrunnur í lóð voru endurnýjaðir árið 2015 og tveimur árum síðar var lögð sér skolplögn fyrir minni aukaíbúðina að brunni í lóð. Allir ofnar og ofnakranar í húsinu hafa verið endurnýjaðir á síðustu 5 árum. Allar hurðir og karmar efri hæðar og hluta neðri hæðar hafa verið endurnýjaðir.
Lóð: Glæsilegur pallur er við húsið að framanverðu sem snýr í suður. Lagt hefur verið fyrir heitum/köldum potti ásamt frárennslislögnum. Glæsileg stimpilsteypt heimreið með hita undir.
Vel staðsett fjölskylduheimili stutt frá allri helstu þjónustu og með auðveldu aðgengi að stofnbrautum.
Nánari upplýsingar veitir Óskar H. Bjarnasen lögmaður og löggiltur fasteignasali í síma 691-1931 eða oskar@valholl.is
Um skoðunar- og aðgæsluskyldu kaupenda:
Í lögum um fasteignakaup nr. 40/2002 er kveðið á um ríka skoðunarskyldu kaupenda á fasteignum. Valhöll fasteignasala bendir væntanlegum kaupendum á að kynna sér vel ástand eigna við skoðun og fyrir tilboðsgerð og að leita til sérfræðinga um nánari ástandsskoðun ef þörf er á.
Forsendur söluyfirlits:
Söluyfirlit er samið af fasteignasala í samræmi við ákvæði laga nr. 70/2015. Þær upplýsingar sem fram koma í söluyfirliti þessu eru sóttar í opinberar skrár, til seljanda sjálfs og eftir atvikum til húsfélags. Seljandi veitir upplýsingar um eign í samræmi við upplýsingaskyldu laga um fasteignakaup nr. 40/2002. Fasteignasali sannreynir að þær upplýsingar séu réttar með sjónskoðun á eigninni. Fasteignasali getur ekki fullyrt um ástand og eiginleika þeirra hluta fasteigna sem ekki eru aðgengilegir og sjást ekki berum augum, t.d. lagnir, dren, skólp og þak.
Gjöld sem kaupandi þarf að standa straum af vegna kaupanna:
1. Stimpilgjald af kaupsamningi - 0.8% af heildarfasteignamati / 1.6% fyrir lögaðila. (0.4% við fyrstu kaup einstaklinga).
2. Þinglýsingagjald af kaupsamningi, veðskuldabréfi, veðleyfi o.fl.- kr. 3.800 af hverju skjali.
3. Umsýsluþóknun til fasteignasölu, sbr.kauptilboð.
Ár
Fasteignamat
Kaupverð
Stærð
Fermetraverð
12. ágú. 2025
155.500.000 kr.
180.000.000 kr.
20101 m²
8.955 kr.
Byggt á upplýsingum úr Þjóðskrá Íslands frá 2006-2026