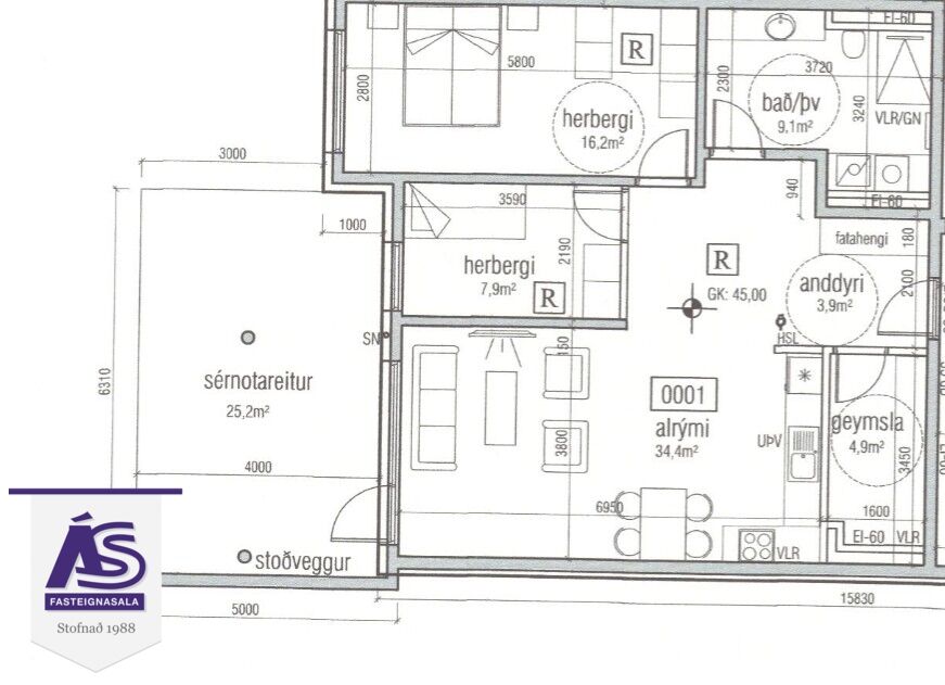
Lautargata 5 íb 001, 210 Garðabær