Löggiltir fasteignasalar innan Félags fasteignasala:
Sverrir Kristinsson
Kjartan Hallgeirsson
Guðlaugur Ingi Guðlaugsson
Daði Hafþórsson
Gunnar Helgi Einarsson
Gunnar Bergmann Jónsson
Jenný Sandra Gunnarsdóttir
Vista
svg

121

svg

114  Skoðendur

svg

Skráð  9. apr. 2026

fjölbýlishús

Laugavegur 170 íb 705 - Heklureitur

105 Reykjavík

299.000.000 kr.

1.447.241 þ.kr./m2
Fasteignanúmer

F2536493

Fasteignamat

0 kr.

Brunabótamat

0 kr.

Áhvílandi

0 kr.

Arion banki – Reikna lán
Upplýsingar
svg
Byggt 2025
svg
206,6 m²
svg
5 herb.
svg
2 baðherb.
svg
4 svefnh.
svg
Þvottahús
svg
Bílskúr
svg
Bílastæði
svg
Lyfta

Lýsing

Eignamiðlun kynnir:

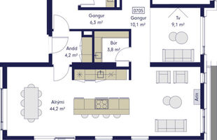
Íbúð á sjöundu hæð sem er efsta hæðin í húsinu. Lofthæðin er 3,7m. Til suðurs eru einkar rúmar þaksvalir með stórum útiflísum. Búið er að tengja fyrir hitaveitupott á þaksvölunum. Íbúðinni fylgja tvö einkastæði í bílakjallara ásamt 29m2 bílskúr og rúmgóðri geymslu upp á 15,5m2.

Nánari upplýsingar veitir: 
Kjartan Hallgeirsson 824-9093 kjartan@eignamidlun.is

Gæðaíbúð á efstu hæð í húsinu við Laugaveg 170. Til suðurs eru stórar þaksvalir þar sem hægt er að koma fyrir heitum potti og njóta veðurblíðu á fallegum dögum. Þá eru nettar svalir til norðurs innaf hjónasvítunni þar sem Esjan blasir við. Í stofu er möguleiki á að koma fyrir arin. Íbúðin gefur möguleika á auka herbergi. Sér þvottahús og einnig sér búr fyrir aftan eldhúsið með vaski og plássi sem má innrétta t.d fyrir stærri vínskáp og auka ísskáp. Einstök eign þar sem gert er ráð fyrir öllum þægindum fyrir folk sem kann að meta gæði og lifandi lífstíl. 
  • Birt stærð: 206,6 m2
  • Þar af geymsla: 15,5 m2
  • Þar af bílskúr: 29,0 m2
  • Herbergi:  4-5
  • Einkastæði: B10 og B20
  • Þakgarður: 86,4 m2
**Sækja söluyfirlit**

**Skoða heimasíðu verkefnis**


Hönnun:
Fágun og gæði voru höfð að leiðarljósi við hönnun íbúðanna. Gluggar nema við gólf og eru hærri til lofts til að hámarka flæði birtu og útsýnis. Gólfhiti er í öllum íbúðum og einnig verða vélræn loftskipti í þeim sem tryggir aukin loftgæði. Hafstudio og Studio Homestead komu að hönnun innréttingannna og eru þær sérsmíðaðar af ítalska fyrirtækinu Cubo Design úr Miton línunni þeirra og munu kaupendur hafa tækfæri á að velja mismunandi liti og áferðir fyrir innréttingar sem og flísar á baðherbergjum. Íbúðirnar hafa einstakt útsýni til fjallahringsins og yfir borgina.

Í eldhúsinu verður eyjan, borðplötur ásamt bakplötu úr Quarts steini sem er sérframleiddur á Ítalíu frá Santamargherita. Íbúðirnar eru búnar stórglæsilegum og vönduðum tækjum frá Siemens. Þau koma úr studioLine línunni sem að býður úrval glæsilegra tækja sem gera matreiðsluna sérlega þægilega og ánægjuríka. Úrvalstæki þar sem gott jafnvægi ríkir á milli nýjunga og stílhreinnar hönnunar sem er óháð tíð og tíma. Á baðherbergjum verða blöndunartækin innbyggð með gun metal lit. Quartz borðplata á baðinnréttingu. Öll tæki hvort sem er fyrir eldhús eða bað eru valin með tilliti til gæða og endingar.

Húsið er klætt með mismunandi litaðri álklæðningu ásamt bambus sem gefur því lifandi yfirbragð og þarfnast lítils viðhalds. Aðkeyrsla að bílakjallara er á tveimur stöðum, frá Nóatúni og Laugavegi.

Afhending miðast við haust 2026

Nánari upplýsingar veita fasteignasalar Eignamiðlunar:
Kjartan Hallgeirsson 824-9093 kjartan@eignamidlun.is
Guðlaugur Ingi Guðlaugsson 864-5464 gudlaugur@eignamidlun.is
Kári Sighvatsson 899-8815 kari@eignamidlun.is
Gunnar Bergmann Jónsson 839-1600 gunnarbergmann@eignamidlun.is
Brynjar Þ. Sumarliðason 896-1168 brynjar@eignamidlun.is
Rögnvaldur Örn Jónsson 660-3452 rognvaldur@eignamidlun.is
Unnar Kjartansson 867-0968 unnar@eignamidlun.is 
Lilja Guðmundsdóttir 649-3868 lilja@eignamidlun.is
 

***
Ábyrg þjónusta í áratugi. Eignamiðlun var stofnuð 1957 og er elsta starfandi fasteignasala á Íslandi. Reynsla, heiðarleiki og þekking á fasteignamarkaðnum eru grunnur að farsælum viðskiptum. 

Eignamiðlun Grensásvegi 11, 108 Reykjavík - Opið frá kl. 9-17 mánudaga til fimmtudaga og 9-16 á föstudögum.

Heimasíða Eignamiðlunar

Eignamiðlun á Facebook

img
Kjartan Hallgeirsson
Lögg.fasteignasali innan félags fasteignasala
Eignamiðlun
Grensásvegi 11, 108 Reykjavík
Eignamiðlun

Eignamiðlun

Grensásvegi 11, 108 Reykjavík
img

Kjartan Hallgeirsson

Grensásvegi 11, 108 Reykjavík
Eignamiðlun

Eignamiðlun

Grensásvegi 11, 108 Reykjavík

Kjartan Hallgeirsson

Grensásvegi 11, 108 Reykjavík