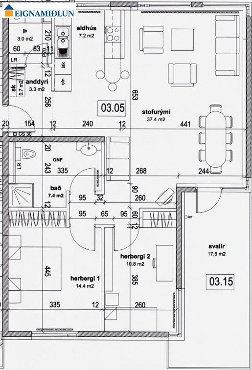
Strandvegur, 210 Garðabær