Upplýsingar
Verðsaga
Byggt 2020
70,1 m²
2 herb.
1 baðherb.
1 svefnh.
Sameiginl. inngangur
Lyfta
Lýsing
Garðatorg eignamiðlun
Sölumaður: Sigurður Tyrfingsson s. 898 3708
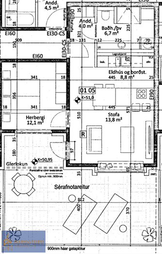
Arnarsmári 38, snyrtileg, björt og rúmgóð 2ja herbergja íbúð á 1. hæð
Laus við kaupsamning
Íbúðin skiptist í forstofu með fataskáp, rúmgóða stofu og samliggjandi opið eldhús með eyju.
Úr stofu er útgengt á stóra afgirta 37 fermetra verönd með sérafnotarétti. Möguleiki á glerlokun samkvæmt samþykktum teikningum.
Baðherbergi er flísalagt með innréttingu, walk-in sturtu, þvottarými innaf baðherbergi.
Rúmgott svefnherbergi með góðum fataskáp.
Stór sérgeymsla er í kjallara og rúmgóð vagna- og hjólageymsla í sameign.
Íbúðin er skráð 70,1 fm 2ja herbergja íbúð, merkt 010105.
Íbúðin sjálf er 56,2 fm og sérgeymsla í kjallara er 13,9 fm.
Íbúðinni fylgir sérmerkt einkabílastæði á lóð.
Í eldhúsi fylgja uppþvottavél og ísskápur.
Innréttingar eru frá HTH og tæki í eldhúsi frá AEG.
Harðparket er á gólfum. Flísar á blautrýmum.
Lyfta er í stigahúsinu. Húsið er einangrað að utan og klætt með álklæðningu.
Veggir milli íbúða eru með aukinni þykkt til að ná fram aukinni hljóðeinangrun.
Sameign er rúmgóð og björt.
Upplýsingar veitir
Sigurður Tyrfingsson
Löggiltur fasteignasali og húsasmíðameistari
Sími: 898-3708
Netfang: sigurdur@gardatorg.is
Sölumaður: Sigurður Tyrfingsson s. 898 3708
Arnarsmári 38, snyrtileg, björt og rúmgóð 2ja herbergja íbúð á 1. hæð
Laus við kaupsamning
Íbúðin skiptist í forstofu með fataskáp, rúmgóða stofu og samliggjandi opið eldhús með eyju.
Úr stofu er útgengt á stóra afgirta 37 fermetra verönd með sérafnotarétti. Möguleiki á glerlokun samkvæmt samþykktum teikningum.
Baðherbergi er flísalagt með innréttingu, walk-in sturtu, þvottarými innaf baðherbergi.
Rúmgott svefnherbergi með góðum fataskáp.
Stór sérgeymsla er í kjallara og rúmgóð vagna- og hjólageymsla í sameign.
Íbúðin er skráð 70,1 fm 2ja herbergja íbúð, merkt 010105.
Íbúðin sjálf er 56,2 fm og sérgeymsla í kjallara er 13,9 fm.
Íbúðinni fylgir sérmerkt einkabílastæði á lóð.
Í eldhúsi fylgja uppþvottavél og ísskápur.
Innréttingar eru frá HTH og tæki í eldhúsi frá AEG.
Harðparket er á gólfum. Flísar á blautrýmum.
Lyfta er í stigahúsinu. Húsið er einangrað að utan og klætt með álklæðningu.
Veggir milli íbúða eru með aukinni þykkt til að ná fram aukinni hljóðeinangrun.
Sameign er rúmgóð og björt.
Upplýsingar veitir
Sigurður Tyrfingsson
Löggiltur fasteignasali og húsasmíðameistari
Sími: 898-3708
Netfang: sigurdur@gardatorg.is
Í lögum um fasteignakaup nr. 40/2002 er kveðið á um ríka skoðunarskyldu kaupenda á fasteignum. Vill því Garðatorg eignamiðlun skora á væntanlega kaupendur að kynna sér vel ástand fasteigna fyrir kauptilboðsgerð og leita til þar til bærra sérfræðinga um nánari skoðun ef með þarf.
Gjöld sem kaupandi þarf að standa straum af vegna kaupanna:
1. Stimpilgjald af kaupsamningi - 0.8% af heildarfasteignamati / 1.6% fyrir lögaðila. (0.4% við fyrstu kaup einstaklinga).
2. Þinglýsingagjald af kaupsamningi, veðskuldabréfi, veðleyfi o.fl.- kr. 2.700 af hverju skjali.
3. Lántökugjald lánastofnunar
4. Umsýsluþóknun til fasteignasölu, sbr.kauptilboð
Ár
Fasteignamat
Kaupverð
Stærð
Fermetraverð
16. apr. 2020
18.150.000 kr.
40.750.000 kr.
70.1 m²
581.312 kr.
Byggt á upplýsingum úr Þjóðskrá Íslands frá 2006-2026