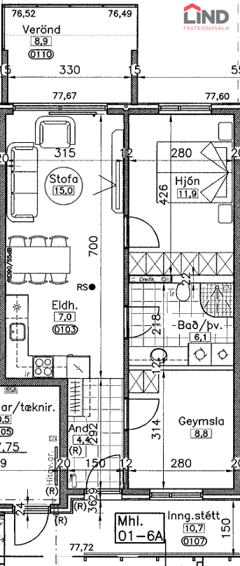
Geirþrúðarhagi, 600 Akureyri