Upplýsingar
Byggt 2024
76,7 m²
0 herb.
1 baðherb.
Sérinngangur
Lýsing
Fasteignasalan Hvammur 466 1600
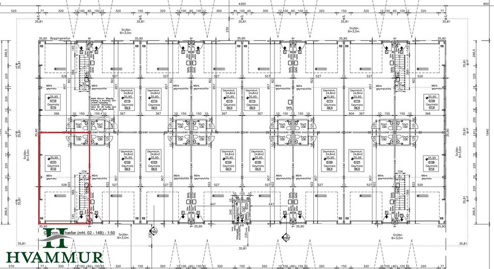
Týsnes 14b eignarhluti 101 - Endabil / suðvestur - Nýbygging
* Eignin er laus til afhendingar við kaupsamning *
Húsið er geymsluhús á einni hæð með geymsluhillum/millilofti - skráð stærð 76,7 m³ þar af er milliloft 24,4 m²
Tvö hús eru á lóðinni, Týsnes 14a og 14b. Lóðin er leigulóð í eigu Akureyrarbæjar, 5.933,2 m² að flatarmáli.
Skilalýsing þessi er fyrir Týsnes 14b.
Húsið er hannað samkv. algildri hönnun í notkunarflokki 1.
Týsnes 14b skiptist í 16 sérrými og eitt sameiginlegt inntaksherbergi.
Hús selst frágengið að utan með malbikuðu bílaplani. Í plan kemur snjóbræðsla um 3 metra út frá útveggjum.
Hús afhendist að innan fullfrágengið með steyptum gólfum. Snyrting og geymsluhilla eru í öllum rýmum.
Eignin selst fullbúin á byggingarstigi nr. 4
Helstu mál:
Bilin eru að öllu jafnaði 52,10 m² með 24,80 m² millilofti. Það eru um 9,5 m frá innkeyrsluhurð og inn í botn og um 5,3 m milli veggja á breiddina. Innkeyrsluhurðirnar eru 3,20 m á breidd og opnast upp í 3,80 m. Lægsta hæð undir milliloft eru um 2,90 m og þá stendur gólf milliloftsins í um 3,20 m.
Á þessum tölum eru þó undantekningar. Í Húsinu eru tvö bil sem liggja að sameiginlegu inntaks/tæknirými. Þessi bil eru 50,1 m² með 24,8 m² geymslulofti. Innkeyrsluhurðir þessara tveggja bila eru 3,00 m á breidd og opnast upp í 3,80 m. Hæð undir milliloft er sú sama og í öðrum bilum.
Endabilin verða með skráðu geymslulofti og útgengi á svalir. Skráð stærð þessara bila er því 76,7 m². Aðrar stærðir eru óbreittar.
Burðarvirki: Burðarvirki hússins eru steinsteyptar undirstöður/gólf ásamt timburvirki (límtré) er kemur í veggi og þak.
Útveggir: Útveggir eru klæddir með 80mm (micro áferð að utan/panill að innan) samlokueiningum með PIR kjarna. Litur að utan er Ral 7024 (dökk grátt) en að innan Ral 9010 (hvítt).
Þak: Þak er klætt með 100/145mm (trapiza) PIR samlokueiningum er festast á límtrésbita. Litur á þakeiningum að utan er Ral 7024 (dökk grátt) en að innan Ral 9010 (hvítt). Snjógildrur koma á þak við langhliðar.
Gluggar/hurðir: Gluggar og inngangshurðir eru úr plasti í dökkum lit að utan en hvítt að innan en innkeyrsluhurðir eru í dökkum lit (hand- og rafmagnsopnanlegar). Litur á gluggum/inngangshurðum og innkeyrsluhurðum er Ral 7024 (dökk grátt en hvítt að innan, Ral 9010). Innihurðar eru úr timbri, plastlagðar eða sprautulakkaðar hvítar og þröskuldslausar.
Gler er tvöfalt einangrunargler en í innkeyrsluhurðir koma plastgluggar.
Milliveggir: Allir léttir innveggir (kringum snyrtingu) eru gerðir úr 100mm samlokueiningum. Milliveggir milli rýmisnúmera eru 100mm samlokueiningar með harðpressaðri steinull og eru þær samkv. EI60.
Geymsluhillur eru samkv. R30 og hafa þær eingöngu aðkomu frá lausum timbur stiga sem fylgir með. Í endabilunum er fastur stigi. Þær eru byggðar úr timburbitum/límtré og klæddar að ofan með 22 nótuðum rakav. spónaplötum. Notálag er 2,0kn/m²
Steypt gólf: Einangrun undir gólf er 50mm frauðplast en utan á sökkla kemur 50mm einangrun.
Lagnir: Stofnlagnir fyrir heitt vatn (álpex/plast lagnir - heitt neysluvatn og gólfhita) koma í steypta plötu og að deilikistum í hverjum eignarhluta. Stofnlagnir fyrir kalt neysluvatn (álpex/plast lagnir) eru staðsettar undir einangrun gólfs. Gólfhitakerfi (20mm Pexrör) er í öllum eignarhlutum (nema tæknirými) og eru lagnir staðsettar í gólfsteypu. Stýring gólfhita er gerð með hitanemum og mótorlokum sem staðsettir eru við deilikistur. Hámarkshitastig neysluvatns við töppunarstað sé miðast við 60°C. Við töppunarstaði koma hitastýrð blöndunartæki. Frárennslislagnir í grunni og utanhúss eru PVC plastpípur en innanhúss eru notaðar PP plastpípur. Í öll blautrými komi gólfniðurföll. Ein hitaveitugrind/aflestrarmælir er fyrir allt húsið og er staðsetning mæla í sameiginlegu tæknirými. Deilikistur eru í hverjum eignarhluta og spúlslöngur.
Raflagnir: Aðaltafla rafmagns og einn aflestrarmælir ásamt frádráttarmælum eru staðsett í sameiginlegu tæknirými en greinitöflur koma í hvert sérrými. Lýsing utanhúss kemur á sérmælir sem er staðsettur í sameiginlegu tæknirými.
Brunavarnir: Út- og neyðarlýsing verður sett upp í öllu húsinu skv. byggingarreglugerð og ISTEN 1838 og ÍSTEN 50172. Neyðarlýsing samkvæmt “opnum svæðum” (0,5 lúx) verður í sölum.
Handslökkvitæki verða í öllum eignarhlutum. Brunaviðvörunarkerfi kemur í húsið með stjórnstöð staðsetta í sameiginlegu tæknirými. Stjórnstöð skal tengd viðurkenndri vaktstöð. Opnanlegir gluggar eru nýttir sem björgunarop (táknað BO á teikningu). Reyklosun er gerð í gegnum op er myndast við opnun innkeyrsluhurða og glugga.
Loftræsing: Loftræsing er almennt gerð í gegnum opnanlega glugga en vélknúin fyrir snyrtingar.
Á eigninni hvílir vsk-kvöð - Auglýst söluverð er tiltekið með vsk-kvöð.
Kaupandi greiðir skipulagsgjald eignar, 0,3% af brunabótamati eignar þegar það verður lagt á.
Upplýsingar í skilalýsingu geta breyst á byggingartíma. Leitast verður við að halda sambærilegum gæðum byggingarhluta og íhluta, breytist þeir á byggingartíma. Allt efni er birt með fyrirvara um hugsanlegar villur.
Um skoðunar- og aðgæsluskyldu:
Í lögum um fasteignakaup nr. 40/2002 er kveðið á um ríka skoðunarskyldu kaupenda á fasteignum. Fasteignasalan Hvammur skorar því á væntanlega kaupendur að kynna sér vel ástand fasteigna fyrir kauptilboðsgerð og leita til þar til bærra sérfræðinga um nánari skoðun ef með þarf.
Forsendur söluyfirlits:
Söluyfirlit er samið af fasteignasala í samræmi við ákvæði laga nr. 70/2015. Þær upplýsingar sem fram koma í söluyfirliti þessu eru sóttar í opinberar skrár, til seljanda sjálfs og eftir atvikum til húsfélags. Seljandi veitir upplýsingar um eign í samræmi við upplýsingaskyldu laga um fasteignakaup nr. 40/2002. Fasteignasali sannreynir að þær upplýsingar séu réttar með sjónskoðun á eigninni. Fasteignasali getur ekki fullyrt um ástand og eiginleika þeirra hluta fasteigna sem ekki eru aðgengilegir og sjást ekki berum augum, t.d. lagnir, dren, skólp og þak.
Týsnes 14b eignarhluti 101 - Endabil / suðvestur - Nýbygging
* Eignin er laus til afhendingar við kaupsamning *
Húsið er geymsluhús á einni hæð með geymsluhillum/millilofti - skráð stærð 76,7 m³ þar af er milliloft 24,4 m²
Tvö hús eru á lóðinni, Týsnes 14a og 14b. Lóðin er leigulóð í eigu Akureyrarbæjar, 5.933,2 m² að flatarmáli.
Skilalýsing þessi er fyrir Týsnes 14b.
Húsið er hannað samkv. algildri hönnun í notkunarflokki 1.
Týsnes 14b skiptist í 16 sérrými og eitt sameiginlegt inntaksherbergi.
Hús selst frágengið að utan með malbikuðu bílaplani. Í plan kemur snjóbræðsla um 3 metra út frá útveggjum.
Hús afhendist að innan fullfrágengið með steyptum gólfum. Snyrting og geymsluhilla eru í öllum rýmum.
Eignin selst fullbúin á byggingarstigi nr. 4
Helstu mál:
Bilin eru að öllu jafnaði 52,10 m² með 24,80 m² millilofti. Það eru um 9,5 m frá innkeyrsluhurð og inn í botn og um 5,3 m milli veggja á breiddina. Innkeyrsluhurðirnar eru 3,20 m á breidd og opnast upp í 3,80 m. Lægsta hæð undir milliloft eru um 2,90 m og þá stendur gólf milliloftsins í um 3,20 m.
Á þessum tölum eru þó undantekningar. Í Húsinu eru tvö bil sem liggja að sameiginlegu inntaks/tæknirými. Þessi bil eru 50,1 m² með 24,8 m² geymslulofti. Innkeyrsluhurðir þessara tveggja bila eru 3,00 m á breidd og opnast upp í 3,80 m. Hæð undir milliloft er sú sama og í öðrum bilum.
Endabilin verða með skráðu geymslulofti og útgengi á svalir. Skráð stærð þessara bila er því 76,7 m². Aðrar stærðir eru óbreittar.
Burðarvirki: Burðarvirki hússins eru steinsteyptar undirstöður/gólf ásamt timburvirki (límtré) er kemur í veggi og þak.
Útveggir: Útveggir eru klæddir með 80mm (micro áferð að utan/panill að innan) samlokueiningum með PIR kjarna. Litur að utan er Ral 7024 (dökk grátt) en að innan Ral 9010 (hvítt).
Þak: Þak er klætt með 100/145mm (trapiza) PIR samlokueiningum er festast á límtrésbita. Litur á þakeiningum að utan er Ral 7024 (dökk grátt) en að innan Ral 9010 (hvítt). Snjógildrur koma á þak við langhliðar.
Gluggar/hurðir: Gluggar og inngangshurðir eru úr plasti í dökkum lit að utan en hvítt að innan en innkeyrsluhurðir eru í dökkum lit (hand- og rafmagnsopnanlegar). Litur á gluggum/inngangshurðum og innkeyrsluhurðum er Ral 7024 (dökk grátt en hvítt að innan, Ral 9010). Innihurðar eru úr timbri, plastlagðar eða sprautulakkaðar hvítar og þröskuldslausar.
Gler er tvöfalt einangrunargler en í innkeyrsluhurðir koma plastgluggar.
Milliveggir: Allir léttir innveggir (kringum snyrtingu) eru gerðir úr 100mm samlokueiningum. Milliveggir milli rýmisnúmera eru 100mm samlokueiningar með harðpressaðri steinull og eru þær samkv. EI60.
Geymsluhillur eru samkv. R30 og hafa þær eingöngu aðkomu frá lausum timbur stiga sem fylgir með. Í endabilunum er fastur stigi. Þær eru byggðar úr timburbitum/límtré og klæddar að ofan með 22 nótuðum rakav. spónaplötum. Notálag er 2,0kn/m²
Steypt gólf: Einangrun undir gólf er 50mm frauðplast en utan á sökkla kemur 50mm einangrun.
Lagnir: Stofnlagnir fyrir heitt vatn (álpex/plast lagnir - heitt neysluvatn og gólfhita) koma í steypta plötu og að deilikistum í hverjum eignarhluta. Stofnlagnir fyrir kalt neysluvatn (álpex/plast lagnir) eru staðsettar undir einangrun gólfs. Gólfhitakerfi (20mm Pexrör) er í öllum eignarhlutum (nema tæknirými) og eru lagnir staðsettar í gólfsteypu. Stýring gólfhita er gerð með hitanemum og mótorlokum sem staðsettir eru við deilikistur. Hámarkshitastig neysluvatns við töppunarstað sé miðast við 60°C. Við töppunarstaði koma hitastýrð blöndunartæki. Frárennslislagnir í grunni og utanhúss eru PVC plastpípur en innanhúss eru notaðar PP plastpípur. Í öll blautrými komi gólfniðurföll. Ein hitaveitugrind/aflestrarmælir er fyrir allt húsið og er staðsetning mæla í sameiginlegu tæknirými. Deilikistur eru í hverjum eignarhluta og spúlslöngur.
Raflagnir: Aðaltafla rafmagns og einn aflestrarmælir ásamt frádráttarmælum eru staðsett í sameiginlegu tæknirými en greinitöflur koma í hvert sérrými. Lýsing utanhúss kemur á sérmælir sem er staðsettur í sameiginlegu tæknirými.
Brunavarnir: Út- og neyðarlýsing verður sett upp í öllu húsinu skv. byggingarreglugerð og ISTEN 1838 og ÍSTEN 50172. Neyðarlýsing samkvæmt “opnum svæðum” (0,5 lúx) verður í sölum.
Handslökkvitæki verða í öllum eignarhlutum. Brunaviðvörunarkerfi kemur í húsið með stjórnstöð staðsetta í sameiginlegu tæknirými. Stjórnstöð skal tengd viðurkenndri vaktstöð. Opnanlegir gluggar eru nýttir sem björgunarop (táknað BO á teikningu). Reyklosun er gerð í gegnum op er myndast við opnun innkeyrsluhurða og glugga.
Loftræsing: Loftræsing er almennt gerð í gegnum opnanlega glugga en vélknúin fyrir snyrtingar.
Á eigninni hvílir vsk-kvöð - Auglýst söluverð er tiltekið með vsk-kvöð.
Kaupandi greiðir skipulagsgjald eignar, 0,3% af brunabótamati eignar þegar það verður lagt á.
Upplýsingar í skilalýsingu geta breyst á byggingartíma. Leitast verður við að halda sambærilegum gæðum byggingarhluta og íhluta, breytist þeir á byggingartíma. Allt efni er birt með fyrirvara um hugsanlegar villur.
Um skoðunar- og aðgæsluskyldu:
Í lögum um fasteignakaup nr. 40/2002 er kveðið á um ríka skoðunarskyldu kaupenda á fasteignum. Fasteignasalan Hvammur skorar því á væntanlega kaupendur að kynna sér vel ástand fasteigna fyrir kauptilboðsgerð og leita til þar til bærra sérfræðinga um nánari skoðun ef með þarf.
Forsendur söluyfirlits:
Söluyfirlit er samið af fasteignasala í samræmi við ákvæði laga nr. 70/2015. Þær upplýsingar sem fram koma í söluyfirliti þessu eru sóttar í opinberar skrár, til seljanda sjálfs og eftir atvikum til húsfélags. Seljandi veitir upplýsingar um eign í samræmi við upplýsingaskyldu laga um fasteignakaup nr. 40/2002. Fasteignasali sannreynir að þær upplýsingar séu réttar með sjónskoðun á eigninni. Fasteignasali getur ekki fullyrt um ástand og eiginleika þeirra hluta fasteigna sem ekki eru aðgengilegir og sjást ekki berum augum, t.d. lagnir, dren, skólp og þak.