Löggiltir fasteignasalar innan Félags fasteignasala:
Óskar Rúnar Harðarson
Jason Guðmundsson
Þröstur Þórhallsson
Ólafur Finnbogason
Kjartan Ísak Guðmundsson
Gústaf Adolf Björnsson
Viðar Böðvarsson
Rakel Viðarsdóttir
Ragnheiður Pétursdóttir
Böðvar Þ. Eggertsson
Vista
fjölbýlishús

Buðlabryggja 25-27 132

110 Reykjavík

60.200.000 kr.

940.625 þ.kr./m2
Fasteignanúmer

F2539822

Fasteignamat

5.420.000 kr.

Brunabótamat

0 kr.

Áhvílandi

0 kr.

Arion banki – Reikna lán
Upplýsingar
svg
Byggt 2026
svg
64 m²
svg
2 herb.
svg
1 baðherb.
svg
1 svefnh.
svg
Sameiginl. inngangur
svg
Bílastæði
svg
Lyfta

Lýsing

Miklaborg kynnir: Nýjar íbúðir í sölu Bryggjuhverfinu í Reykjavík. Um er að ræða hagkvæmar íbúðir á frábæru verði sem falla undir Hlutdeildarlán frá HMS. Á lóðinni eru fjórar byggingar með samtals 103 íbúðum og mörgum íbúðanna fylgir stæði í lokuðum bílakjallara. Húsin ramma inn skjólgóðan inngarð. Íbúðirnar afhendast fullbúnar án megingólfefna að undanskyldum votrýmum sem eru flísalögð. Fallegar innréttingar frá Ormsson og vönduð tæki. Bókið einkaskoðun hjá sölumönnum Mikluborgar.


Nánari upplýsingar veitir Steinn Andri Viðarsson, sími: 7751477, netfang: steinn@miklaborg.is.


NÁNARI LÝSING:
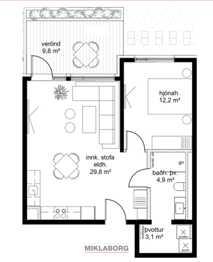
Íbúð 132: Vel skipulögð tveggja herbergja íbúð á 1. hæð.

Eignin skipist í anddyri með forstofuskáp. Eldhús er með fallegri innréttingu frá Ormsson og vönduðum tækjum frá AEG. Tengi er fyrir uppþvottavél og gott skápaláss. Eldhúsið er opið inn í bjarta stofu með útgengt á góða verönd. Svefnherbergi með fataskápum. Baðherbergi er með sturtu, fallegri innréttingu og tengi fyrir þvottavél og þurrkara. Sérmerkt stæði í bílageymslu.

Traustur byggingaraðili í áratugi: Dverghamrar ehf.

Skoðið íbúðirnar hér

Markmið verkefnisins um hagkvæmt húsnæði er að skapa nýjar og raunhæfar leiðir fyrir ungt fólk og fyrstu kaupendur til að komast inn á fasteignamarkaðinn við betri kjör. Því erum að ræða eignir á sérlega sanngjörnu verði sem kemur ekki niður á gæðum.

Miklaborg fasteignasala

Miklaborg fasteignasala

Lágmúli 4, 108 Reykjavík
Miklaborg fasteignasala

Miklaborg fasteignasala

Lágmúli 4, 108 Reykjavík