Löggiltir fasteignasalar innan Félags fasteignasala:
Sverrir Kristinsson
Kjartan Hallgeirsson
Guðlaugur Ingi Guðlaugsson
Daði Hafþórsson
Gunnar Helgi Einarsson
Gunnar Bergmann Jónsson
Jenný Sandra Gunnarsdóttir
Vista
svg

35

svg

35  Skoðendur

svg

Skráð  17. apr. 2026

fjölbýlishús

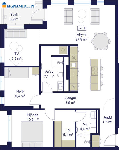
Laugavegur 170 íb 201 - Heklureitur

105 Reykjavík

121.900.000 kr.

1.030.431 þ.kr./m2
Fasteignanúmer

F2536408

Fasteignamat

0 kr.

Brunabótamat

0 kr.

Áhvílandi

0 kr.

Arion banki – Reikna lán
Upplýsingar
svg
Byggt 2025
svg
118,3 m²
svg
4 herb.
svg
1 baðherb.
svg
3 svefnh.
svg
Þvottahús
svg
Sameiginl. inngangur
svg
Bílastæði
svg
Lyfta

Lýsing

Eignamiðlun kynnir:

Glæsilegar íbúðir í fjölbreyttum stærðum við Heklureit þar sem áhersla er lög á nútímalega hönnun með vönduðum sérsmíðuðum ítölskum innréttingum og nýjustu Siemens tækjum. Stæði fylgir öllum íbúðum í sölu. Gólfsíðir gluggar hleypa mikilli náttúrulegri birtu inn og auka útsýni. Gólfhiti er í öllum íbúðum. Íbúðir á efri hæðum hafa eigin þakgarða en sameiginlegur þakgarður verður einnig fyrir alla íbúa í húsinu ásamt fallegum inngarði. Frábær staðsetning í miðborginni en þó fjarri skarkala miðbæjarins

NÁNARI UPPLÝSINGAR GEFUR: Unnar Kjartansson, Löggiltur fasteignasali í síma 867-0968 eða unnar@eignamidlun.is

Opinber skráning eignar: 
Íbúð merkt 02-01 við Laugaveg 170, 105 Reykjavík. Fastanúmer eignar: 253-6408. Birt flatarmál er 118.3 fm með svölum og sérgeymslu í sameign. Stæði í bílageymslu merkt 0B-00 fylgir íbúðinni. Innréttingaþema: Hlýja með Quartz borðplötum í eldhúsi. Tölvumyndir eru af sýningaríbúð.

**Sækja söluyfirlit**

**Heimasíða verkefnis**

Hönnun:
Fágun og gæði voru höfð að leiðarljósi við hönnun íbúðanna. Gluggar nema við gólf og eru hærri til lofts til að hámarka flæði birtu og útsýnis. Gólfhiti er í öllum íbúðum. Studio Homestead komu að hönnun innréttinganna og eru þær sérsmíðaðar af ítalska fyrirtækinu Cubo Design úr Miton línunni þeirra. Borðplötur ásamt bakplötu eru úr Quarts steini sem er sérframleiddur á Ítalíu frá Santamargherita. Íbúðirnar eru búnar vönduðum tækjum frá Siemens. Spanhelluborð er með innbyggðum gufugleypi, fjölvirkur blástursofn með sjálfhreinsikerfi, innbyggð uppþvottavél og innbyggður kæliskápur. Á baðherbergjum verða innbyggð blöndunartæki í sturtu. Öll tæki hvort sem er fyrir eldhús eða bað eru valin með tilliti til gæða og endingar. 
Húsið er klætt með mismunandi litaðri álklæðningu ásamt timbri sem gefur því lifandi yfirbragð og þarfnast lítils viðhalds. Aðkeyrsla að bílakjallara er á tveimur stöðum, frá Nóatúni og Laugavegi. Gengið verður frá dreifingu fyrir rafhleðslustöðvar við öll bílastæði og því hægt með fljótum hætti að setja upp rafhleðslustöðvar við öll einkastæði. Sjá skilalýsingu hér.

Afhending miðast við árslok 2026

Nánari upplýsingar veita fasteignasalar Eignamiðlunar:
Unnar Kjartansson 867-0968 unnar@eignamidlun.is 
Kjartan Hallgeirsson 824-9093 kjartan@eignamidlun.is
Kári Sighvatsson 899-8815 kari@eignamidlun.is
Gunnar Bergmann Jónsson 839-1600 gunnarbergmann@eignamidlun.is
Brynjar Þ. Sumarliðason 896-1168 brynjar@eignamidlun.is
Rögnvaldur Örn Jónsson 660-3452 rognvaldur@eignamidlun.is
Lilja Guðmundsdóttir 649-3868 lilja@eignamidlun.is

***
Ábyrg þjónusta í áratugi. Eignamiðlun var stofnuð 1957 og er elsta starfandi fasteignasala á Íslandi. Reynsla, heiðarleiki og þekking á fasteignamarkaðnum eru grunnur að farsælum viðskiptum. 

Eignamiðlun Grensásvegi 11, 108 Reykjavík - Opið frá kl. 9-17 mánudaga til fimmtudaga og 9-16 á föstudögum.

Heimasíða Eignamiðlunar

Eignamiðlun á Facebook

Eignamiðlun

Eignamiðlun

Grensásvegi 11, 108 Reykjavík
Eignamiðlun

Eignamiðlun

Grensásvegi 11, 108 Reykjavík