Upplýsingar
Byggt 2026
126 m²
3 herb.
1 baðherb.
2 svefnh.
Útsýni
Sameiginl. inngangur
Bílastæði
Lyfta
Laus strax
Lýsing
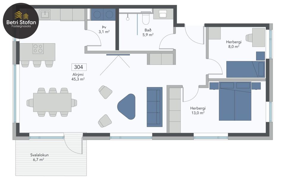
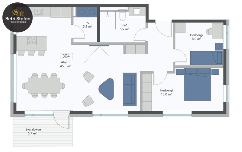
Jason Kristinn Ólafsson sími 7751515 - jason@betristofan.is og Betri Stofan fasteignasala kynna: Þorraholt 19b í Hnoðraholti, 210 Garðabæ. Íbúð 304 Glæsileg 3ja herbergja íbúð við Þorraholt 19b í 7 íbúða fjölbýli. Eignin er með bílastæði í bílakjallara, sérgeymslu, baðherbergi, 2 svefnherbergjum. stofu, eldhúsi, þvottaherbergi og svölum til suðurs. 2 sérgeymslur 17,7 fm (merkt 0014) og 19,9 fm (merkt 0027). Stæðið er merkt: 01B25
NÁNAR UM VERKEFNIÐ: www.thorraholtid.is
Þorraholt 19b íbúð 304: Samtals 126, fermetrar, íbúðin er 88,4 fm á 3. hæð með svölum til suðurs og merktu bílastæði í bílakjallara. Tvær sérgeymsla fylgja íbúðinni sem eru 17,7 fm og 19,9 fm að stærð. Afhending er í maí 2026 með fyrirvara um að öryggisúttekt sé komin á húsið.
Glæsilegar íbúðir við Þorraholt 19b í 210 Garðabæ. Um er að ræða fjölbreyttar 3ja - 4ra herbergja íbúðir í lyftuhúsi og fylgja bílastæði í bílakjallara íbúðum. Svalir eða sérafnotaflötur fylgir öllum íbúðum ásamt séreignageymslu á jarðhæð. Sameiginlegur bílakjallari með Þorraholti 17
Húsið stendur á útsýnisstað og stutt á golfvöll GKG.
Hér eru fjölbreytt útivistarsvæði og fallegar gönguleiðir rétt við heimilið, auk þess sem stutt er í skóla, leikskóla, verslanir og alla helstu þjónustu. Garðabær er þekktur fyrir öflugt samfélag, góðar samgöngur og fjölbreytt tækifæri til íþrótta, menningar og útivistar – allt sem þarf fyrir virkt og innihaldsríkt daglegt líf.
Svæðið í kringum Þorraholt býður upp á jafnvægi milli rólegrar náttúru og nálægðar við líflega miðju höfuðborgarsvæðisins. Hér getur þú notið kyrrðarinnar heima fyrir og verið samt aðeins örfáum mínútum frá vinnu, verslun og afþreyingu. Það gerir Þorraholt að kjörnum stað fyrir þá sem vilja bæði lífsgæði og þægindi í senn.
ÞG Verk hafa yfir 28 ára reynslu á byggingarmarkaði. Fyrirtækið leggur áherslu á vandaðar íbúðir, góða þjónustu og skil íbúða á réttum tíma. Áreiðanleiki, gæði og notagildi eru einkunnarorð ÞG verks og fyrirtækið kappkostar að eiga gott samstarf við viðskiptavini sína.
Ef misræmi er á milli eignaskiptasamnings, söluyfirlits og/eða sölusíðu þá gilda þær upplýsingar sem koma fyrir í eignaskiptasamningi og samþykktum teikningum.
Innréttingar: Í eldhúsum og baðherbergjum eru Nobilia innréttingar frá GKS. Eldhúsinnréttingar eru mismunandi útfærðar eftir íbúðum. Lýsing undir efri skápum í eldhúsum. Speglaskápar eru á aðalbaðherbergjum.
Eldhústæki: Íbúðunum fylgja vönduð eldhústæki af gerðinni Siemens. Íbúðum er skilað með span helluborði, innbyggðum kæliskáp, innbyggðri uppþvottavél, blástursofni og viftu eða lofthengdum eyjuháfi þar sem það á við.
Hreinlætistæki: Salernisskál (Laufen) er vegghengd með innbyggðum vatnskassa. Sturtur eru með flísalögðum botni og hertu sturtugleri. Hreinlætistæki eru hitastýrð frá Damixa. Þvottahús eru ýmist innan baðherbergja eða í sér rými.
Kaupandi greiðir skipulagsgjald sem nemur 0,3% af brunabótamati þegar það er lagt á.
Heimild seljanda til að breyta eignaskiptasamning sé þess þörf án þess þó að rýra eignarrétt kaupanda. Innréttingateikningar eru þær sem gilda ef misræmi er milli arkitektateikninga og innréttingateikninga og eru þær áritaðar og hluti samningsins. Þar sem enn er verið að klára þinglýsingu á eignaskiptasamningi þá eru fastanúmer ekki rétt og verða leiðrétt fyrir kaupsamning um eignina.
Eignin afhendist skv skilalýsingu.
Allar nánari upplýsingar veitir Jason Kristinn Ólafsson, sími 7751515 - jason@betristofan.is löggiltur fasteignasali hjá Betri Stofunni.
NÁNAR UM VERKEFNIÐ: www.thorraholtid.is
Þorraholt 19b íbúð 304: Samtals 126, fermetrar, íbúðin er 88,4 fm á 3. hæð með svölum til suðurs og merktu bílastæði í bílakjallara. Tvær sérgeymsla fylgja íbúðinni sem eru 17,7 fm og 19,9 fm að stærð. Afhending er í maí 2026 með fyrirvara um að öryggisúttekt sé komin á húsið.
Glæsilegar íbúðir við Þorraholt 19b í 210 Garðabæ. Um er að ræða fjölbreyttar 3ja - 4ra herbergja íbúðir í lyftuhúsi og fylgja bílastæði í bílakjallara íbúðum. Svalir eða sérafnotaflötur fylgir öllum íbúðum ásamt séreignageymslu á jarðhæð. Sameiginlegur bílakjallari með Þorraholti 17
Húsið stendur á útsýnisstað og stutt á golfvöll GKG.
Hér eru fjölbreytt útivistarsvæði og fallegar gönguleiðir rétt við heimilið, auk þess sem stutt er í skóla, leikskóla, verslanir og alla helstu þjónustu. Garðabær er þekktur fyrir öflugt samfélag, góðar samgöngur og fjölbreytt tækifæri til íþrótta, menningar og útivistar – allt sem þarf fyrir virkt og innihaldsríkt daglegt líf.
Svæðið í kringum Þorraholt býður upp á jafnvægi milli rólegrar náttúru og nálægðar við líflega miðju höfuðborgarsvæðisins. Hér getur þú notið kyrrðarinnar heima fyrir og verið samt aðeins örfáum mínútum frá vinnu, verslun og afþreyingu. Það gerir Þorraholt að kjörnum stað fyrir þá sem vilja bæði lífsgæði og þægindi í senn.
ÞG Verk hafa yfir 28 ára reynslu á byggingarmarkaði. Fyrirtækið leggur áherslu á vandaðar íbúðir, góða þjónustu og skil íbúða á réttum tíma. Áreiðanleiki, gæði og notagildi eru einkunnarorð ÞG verks og fyrirtækið kappkostar að eiga gott samstarf við viðskiptavini sína.
Ef misræmi er á milli eignaskiptasamnings, söluyfirlits og/eða sölusíðu þá gilda þær upplýsingar sem koma fyrir í eignaskiptasamningi og samþykktum teikningum.
Innréttingar: Í eldhúsum og baðherbergjum eru Nobilia innréttingar frá GKS. Eldhúsinnréttingar eru mismunandi útfærðar eftir íbúðum. Lýsing undir efri skápum í eldhúsum. Speglaskápar eru á aðalbaðherbergjum.
Eldhústæki: Íbúðunum fylgja vönduð eldhústæki af gerðinni Siemens. Íbúðum er skilað með span helluborði, innbyggðum kæliskáp, innbyggðri uppþvottavél, blástursofni og viftu eða lofthengdum eyjuháfi þar sem það á við.
Hreinlætistæki: Salernisskál (Laufen) er vegghengd með innbyggðum vatnskassa. Sturtur eru með flísalögðum botni og hertu sturtugleri. Hreinlætistæki eru hitastýrð frá Damixa. Þvottahús eru ýmist innan baðherbergja eða í sér rými.
Kaupandi greiðir skipulagsgjald sem nemur 0,3% af brunabótamati þegar það er lagt á.
Heimild seljanda til að breyta eignaskiptasamning sé þess þörf án þess þó að rýra eignarrétt kaupanda. Innréttingateikningar eru þær sem gilda ef misræmi er milli arkitektateikninga og innréttingateikninga og eru þær áritaðar og hluti samningsins. Þar sem enn er verið að klára þinglýsingu á eignaskiptasamningi þá eru fastanúmer ekki rétt og verða leiðrétt fyrir kaupsamning um eignina.
Eignin afhendist skv skilalýsingu.
Allar nánari upplýsingar veitir Jason Kristinn Ólafsson, sími 7751515 - jason@betristofan.is löggiltur fasteignasali hjá Betri Stofunni.
Gjöld sem kaupandi þarf að standa straum af ef að kaupum verður:
1. Stimpilgjald af fasteignamati fasteignar er 0.8%, en 0,4% fyrir fyrstu kaup og 1,6% fyrir lögaðila.
2. Þinglýsingargjald: kaupsamningi, skuldabréfi, veðleyfi, afsali o.s.frv. er kr. 3.800 af hverju skjali.
3. Lántökukostnaður samkvæmt verðskrá viðkomandi lánastofnunar.
4. Umsýslugjald til fasteignasölu skv. gjaldskrá.
Skoðunarskylda kaupanda:
Í lögum um fasteignakaup nr. 40/2002 er kveðið á um ríka skoðunarskyldu kaupenda á fasteignum. Betri Stofan fasteignasala bendir væntanlegum kaupendum á að kynna sér vel ástand fasteigna við skoðun og fyrir tilboðsgerð og ef þurfa þykir að leita til sérfræðinga um nánari ástandsskoðun.