Upplýsingar
Verðsaga
Byggt 2022
55,4 m²
3 herb.
1 baðherb.
2 svefnh.
Sérinngangur
Lýsing
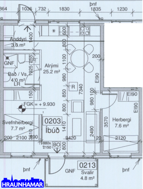
Hraunhamar fasteignasala kynnir í einkasölu bjarta og rúmgóða 3 herbergja íbúð á annarri hæð í fjölbýli við Jöfursbás 11B í Reykjavík. Íbúðin er skráð samkvæmt HMS 55,4 fm og allir fermetrar innan eignar.
Frábær fyrstu kaup og fast hámarksverð. Forgangur að kaupum hafa einstaklingar á aldrinum 18-40 ára.
Nánari lýsing:
Forstofa. Flísalagt rými með fataskáp og fatahengi.
Stofa. Parketlögð björt stofa með útgengi út á suðursvalir.
Svefnherbergi I. Parketlagt með góðum skápum.
Svefnherbergi II. Parketlagt með skáp.
Baðherbergi. Innrétting með handlaug, upphengt salerni, "walk in" sturta, tengi fyrir þvottavél og þurrkara. Flísar á gólfi.
Eldhús. Rúmgóð innrétting með eyju. Tengi fyrir uppþvottavél, bakaraofn, hella og vifta. Stór eyja með barstólum og stækkun.
Á jarðhæð er sameiginleg hjólageymsla og þvottahús með vélum sem húsfélagið á.
Í sameign er einnig salur sem íbúar geta leigt.
Íbúðirnar hafa haft afnot af matjurtagarði sem Reykjavíkurborg lánar Jöfursbás 11.
Allar nánari upplýsingar veitir Einar Örn Ágústsson löggiltur fasteignasali í s. 888-7979 eða einar@hraunhamar.is
Um Þorpið vistfélag í Gufunesi:
Þorpið vistfélag er á sjávarlóð í þessu nýja hverfi í Gufunesi. Frá húsinu er glæsileg sjávarsýn og útsýni yfir Geldinganes og Viðey. Göngu- og hjólastígar verða meðfram ströndinni sem tengjast öðrum íbúðarsvæðum í Grafarvogi. Húsin mynda garðrými fyrir skjólgott torg, leiksvæði og grasfleti. Tekið var tillit til sólarátta við skipulagningu byggðarinnar þannig að garðrýmin eru í góðu skjóli. Við innganginn er sólríkt miðlægt torg fyrir framan sameiginleg rými þar sem er veislusalur/vinnurými, sameiginlegt þvottahús og pósthús/búr fyrir aðsendan póst og vörur. Við torgið sjálft er leiksvæði fyrir yngri börn, en sparkvöllur og boltasvæði í garði á móti sjó. Á torginu er einnig sameiginleg hjóla- og vagnageymsla. Matjurtagarðar í eigu Reykjavíkurborgar eru til afnota fyrir íbúa til ræktunar kjósi þeir það.
Deiliskipulag fyrir Gufunes, nýjasta hverfi Reykjavíkur, byggir á verðlaunatillögu hollensku arkitektastofunnar jvantspijker + Felixx sem árið 2016 hreppti fyrstu verðlaun í hugmyndasamkeppni um Gufunessvæðið. Í vinningstillögunni segir að Gufunes eigi að verða eins konar ventill fyrir ungt fólk sem kýs grósku og borgarbrag í stað úthverfa. Tillagan nýtir óhefluð umhverfisgæði og staðaranda sem grunn að samfélagi þar sem tækifæri, hagkvæmni og upplifun verða í forgrunni.
Í Gufunesi er verið að byggja upp einstakt hverfi í borginni. Þar er fyrirhuguð blönduð byggð. Íbúðir og smærri atvinnurekstur. Lögð verður áhersla á afþreyingu og útivist í þessu manngerða og náttúrulega landslagi með fallegri fjallasýn við sjávarsíðuna.
Skoðunarskylda:
Í lögum um fasteignakaup nr. 40/2002 er kveðið á um ríka skoðunarskyldu kaupenda á fasteignum. Hraunhamar fasteignasala vill benda væntanlegum kaupendum á að kynna sér vel ástand fasteigna fyrir kauptilboðsgerð og ef þurfa þykir að leita til sérfræðinga fyrir nánari ástandsskoðun.
Gjöld sem kaupandi þarf að standa straum af vegna kaupanna:
1. Stimpilgjald af kaupsamningi, fyrstu kaup (0,4%), almenn kaup (0,8%), lögaðilar (1,6%) af heildarfasteignamati.
2. Þinglýsingargjald af kaupsamningi, veðskuldabréfi, mögulegu veðleyfi o.fl. – 3.800 kr. af hverju skjali.
3. Lántökugjald lánastofnunar er skv. verðskrá viðkomandi lánastofnunar.
4. Umsýslugjald til fasteignasölu skv. þjónustusamningi
Hraunhamar er elsta fasteignasala Hafnarfjarðar, stofnuð 1983.
Hraunhamar, í fararbroddi í rúm 40 ár. – Hraunhamar.is
Smelltu hér til að fá frítt söluverðmat.
Frábær fyrstu kaup og fast hámarksverð. Forgangur að kaupum hafa einstaklingar á aldrinum 18-40 ára.
Nánari lýsing:
Forstofa. Flísalagt rými með fataskáp og fatahengi.
Stofa. Parketlögð björt stofa með útgengi út á suðursvalir.
Svefnherbergi I. Parketlagt með góðum skápum.
Svefnherbergi II. Parketlagt með skáp.
Baðherbergi. Innrétting með handlaug, upphengt salerni, "walk in" sturta, tengi fyrir þvottavél og þurrkara. Flísar á gólfi.
Eldhús. Rúmgóð innrétting með eyju. Tengi fyrir uppþvottavél, bakaraofn, hella og vifta. Stór eyja með barstólum og stækkun.
Á jarðhæð er sameiginleg hjólageymsla og þvottahús með vélum sem húsfélagið á.
Í sameign er einnig salur sem íbúar geta leigt.
Íbúðirnar hafa haft afnot af matjurtagarði sem Reykjavíkurborg lánar Jöfursbás 11.
Allar nánari upplýsingar veitir Einar Örn Ágústsson löggiltur fasteignasali í s. 888-7979 eða einar@hraunhamar.is
Um Þorpið vistfélag í Gufunesi:
Þorpið vistfélag er á sjávarlóð í þessu nýja hverfi í Gufunesi. Frá húsinu er glæsileg sjávarsýn og útsýni yfir Geldinganes og Viðey. Göngu- og hjólastígar verða meðfram ströndinni sem tengjast öðrum íbúðarsvæðum í Grafarvogi. Húsin mynda garðrými fyrir skjólgott torg, leiksvæði og grasfleti. Tekið var tillit til sólarátta við skipulagningu byggðarinnar þannig að garðrýmin eru í góðu skjóli. Við innganginn er sólríkt miðlægt torg fyrir framan sameiginleg rými þar sem er veislusalur/vinnurými, sameiginlegt þvottahús og pósthús/búr fyrir aðsendan póst og vörur. Við torgið sjálft er leiksvæði fyrir yngri börn, en sparkvöllur og boltasvæði í garði á móti sjó. Á torginu er einnig sameiginleg hjóla- og vagnageymsla. Matjurtagarðar í eigu Reykjavíkurborgar eru til afnota fyrir íbúa til ræktunar kjósi þeir það.
Deiliskipulag fyrir Gufunes, nýjasta hverfi Reykjavíkur, byggir á verðlaunatillögu hollensku arkitektastofunnar jvantspijker + Felixx sem árið 2016 hreppti fyrstu verðlaun í hugmyndasamkeppni um Gufunessvæðið. Í vinningstillögunni segir að Gufunes eigi að verða eins konar ventill fyrir ungt fólk sem kýs grósku og borgarbrag í stað úthverfa. Tillagan nýtir óhefluð umhverfisgæði og staðaranda sem grunn að samfélagi þar sem tækifæri, hagkvæmni og upplifun verða í forgrunni.
Í Gufunesi er verið að byggja upp einstakt hverfi í borginni. Þar er fyrirhuguð blönduð byggð. Íbúðir og smærri atvinnurekstur. Lögð verður áhersla á afþreyingu og útivist í þessu manngerða og náttúrulega landslagi með fallegri fjallasýn við sjávarsíðuna.
Skoðunarskylda:
Í lögum um fasteignakaup nr. 40/2002 er kveðið á um ríka skoðunarskyldu kaupenda á fasteignum. Hraunhamar fasteignasala vill benda væntanlegum kaupendum á að kynna sér vel ástand fasteigna fyrir kauptilboðsgerð og ef þurfa þykir að leita til sérfræðinga fyrir nánari ástandsskoðun.
Gjöld sem kaupandi þarf að standa straum af vegna kaupanna:
1. Stimpilgjald af kaupsamningi, fyrstu kaup (0,4%), almenn kaup (0,8%), lögaðilar (1,6%) af heildarfasteignamati.
2. Þinglýsingargjald af kaupsamningi, veðskuldabréfi, mögulegu veðleyfi o.fl. – 3.800 kr. af hverju skjali.
3. Lántökugjald lánastofnunar er skv. verðskrá viðkomandi lánastofnunar.
4. Umsýslugjald til fasteignasölu skv. þjónustusamningi
Hraunhamar er elsta fasteignasala Hafnarfjarðar, stofnuð 1983.
Hraunhamar, í fararbroddi í rúm 40 ár. – Hraunhamar.is
Smelltu hér til að fá frítt söluverðmat.
Ár
Fasteignamat
Kaupverð
Stærð
Fermetraverð
27. maí. 2022
16.400.000 kr.
35.597.000 kr.
55.4 m²
642.545 kr.
Byggt á upplýsingum úr Þjóðskrá Íslands frá 2006-2026