Löggiltir fasteignasalar innan Félags fasteignasala:
Hannes Steindórsson
Bogi Molby Pétursson
Guðrún Antonsdóttir
Heimir Hallgrímsson
Hrafnkell P. H. Pálmason
Viðar Marinósson
Elías Haraldsson
Kristján Þórir Hauksson
Albert Bjarni Úlfarsson
Ragnar Þorsteinsson
Þórey Ólafsdóttir
Andri Freyr Halldórsson
Upplýsingar
Verðsaga
Byggt 1972
195,8 m²
7 herb.
3 baðherb.
5 svefnh.
Þvottahús
Sérinngangur
Lýsing
Laust til leigu, svefnherbergi með aðgangi að eldhúsi, stofum, þremur baðherbergjum ofl. Húsgögn fylgja sameiginlegum svæðum.
Uppþvottavél, þvottavél og þurrkari fylgja ásamt ísskáp.
Innifalið í leigu er internet, hiti og rafmagn. Leiguverð 160.000kr með öllu.
Áhugasamir senda tölvupóst á hannes@fastlind.is með upplýsingum um sig svo sem nafn kennitöluatvinnu og annað sem viðkomandi telur skipta máli.
Hæðin með sérinngangi og er 195 fm í það heila. Hægt að leigja allt að fimm svefnherbergjum.
Möguleiki á að leigja bílastæði að auki.
Áhugasamir senda tölvupóst á hannes@fastlind.is með upplýsingum um sig svo sem nafn kennitöluatvinnu og annað sem viðkomandi telur skipta máli.
Nánari lýsing.
Fjögur rúmgóð svefnherbergi (möguleiki að loka af 5. Svefnherberginu), tvö baðherbergi og eitt gestasalerni, stofa, möguleiki á sjónvarpsstofu.
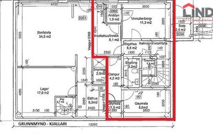
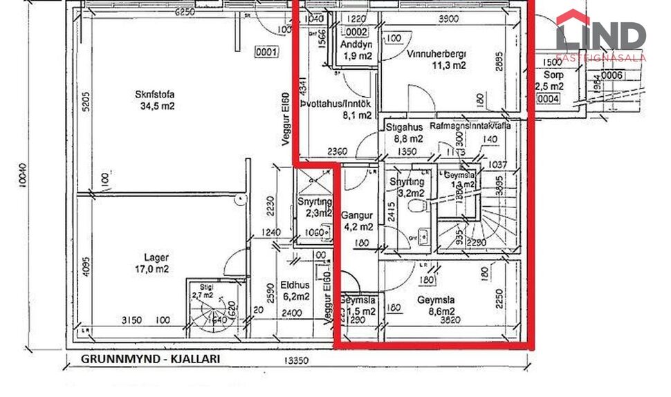
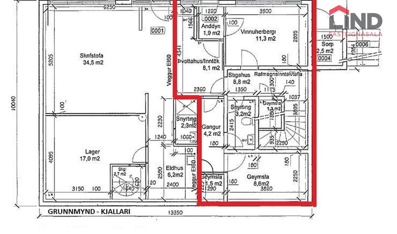
Sérinngangur á austurgafli hússins þar sem gengið er bæði upp á hæð og niður í kjallara.
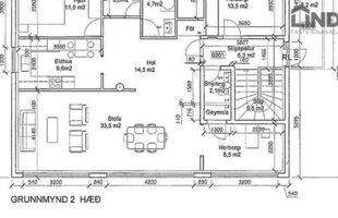
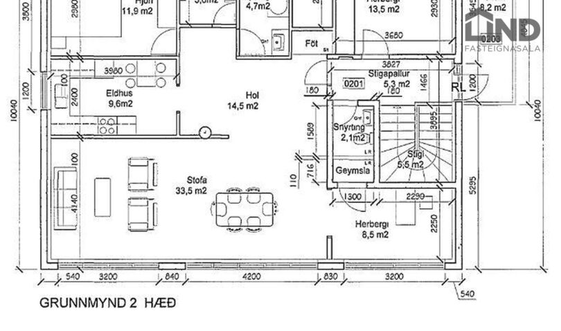
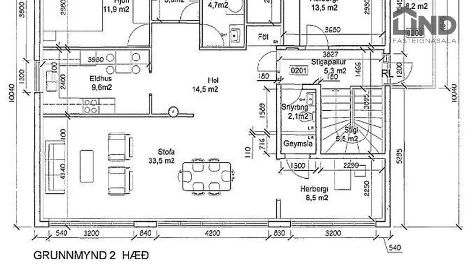
Stigapallur: Rúmgott herbergi, gestasnyrting og útgengi á austur svalir.
Hol: Rúmgott, parketlagt hol þaðan sem gengt er í önnur rými íbúðar.
Stofa: Bjart, parketlagt rými. Skv. teikningu er gert ráð fyrir stofu og borðstofu í opnu rými en borðstofan hefur verið stúkuð af sem herbergi.
Eldhús: Hvít innrétting, borðkrókur og gluggi.
Baðherbergi: Flísalagt baðherbergi með baðkari.
Herbergi: Innan íbúðar eru samtals 4 svefnherbergi, öll rúmgóð
Þvottahús: Innan íbúðar.
Kjallari: Sérinngangur í kjallara Kjallarinn er samtals 61,6 fm og skiptist í stórt herbergi, baðherbergi þvottahús og geymslur/sjónvarpsrými.
Allar upplýsingar veitir: Hannes Steindórsson hannes@fastlind.is
Uppþvottavél, þvottavél og þurrkari fylgja ásamt ísskáp.
Innifalið í leigu er internet, hiti og rafmagn. Leiguverð 160.000kr með öllu.
Áhugasamir senda tölvupóst á hannes@fastlind.is með upplýsingum um sig svo sem nafn kennitöluatvinnu og annað sem viðkomandi telur skipta máli.
Hæðin með sérinngangi og er 195 fm í það heila. Hægt að leigja allt að fimm svefnherbergjum.
Möguleiki á að leigja bílastæði að auki.
Áhugasamir senda tölvupóst á hannes@fastlind.is með upplýsingum um sig svo sem nafn kennitöluatvinnu og annað sem viðkomandi telur skipta máli.
Nánari lýsing.
Fjögur rúmgóð svefnherbergi (möguleiki að loka af 5. Svefnherberginu), tvö baðherbergi og eitt gestasalerni, stofa, möguleiki á sjónvarpsstofu.
Sérinngangur á austurgafli hússins þar sem gengið er bæði upp á hæð og niður í kjallara.
Stigapallur: Rúmgott herbergi, gestasnyrting og útgengi á austur svalir.
Hol: Rúmgott, parketlagt hol þaðan sem gengt er í önnur rými íbúðar.
Stofa: Bjart, parketlagt rými. Skv. teikningu er gert ráð fyrir stofu og borðstofu í opnu rými en borðstofan hefur verið stúkuð af sem herbergi.
Eldhús: Hvít innrétting, borðkrókur og gluggi.
Baðherbergi: Flísalagt baðherbergi með baðkari.
Herbergi: Innan íbúðar eru samtals 4 svefnherbergi, öll rúmgóð
Þvottahús: Innan íbúðar.
Kjallari: Sérinngangur í kjallara Kjallarinn er samtals 61,6 fm og skiptist í stórt herbergi, baðherbergi þvottahús og geymslur/sjónvarpsrými.
Allar upplýsingar veitir: Hannes Steindórsson hannes@fastlind.is
Ár
Fasteignamat
Kaupverð
Stærð
Fermetraverð
12. jún. 2015
53.950.000 kr.
44.500.000 kr.
195.8 m²
227.273 kr.
Byggt á upplýsingum úr Þjóðskrá Íslands frá 2006-2026