Upplýsingar
Byggt 1966
123,3 m²
4 herb.
1 baðherb.
2 svefnh.
Þvottahús
Bílskúr
Sameiginl. inngangur
Lýsing
Borg fasteignasala kynnir: Íbúð á 2. hæð við Álfaskeið í Hafnarfirði. Tvö svefnherbergi og rúmgóð stofa. Svalir til suð-vesturs. Íbúðin er skráð 99,6m2 og 23m2 bílskúr fylgir eigninni. Íbúðin er laus til afhendingar og húsgögn geta fylgt með eftir samkomulagi við seljendur.
Nánari lýsing:
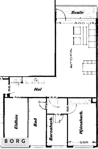
Inngangur: Komið er inní hol með flísum á gólfi og með fataskápum á vinstri hönd.
Eldhús: Eldhúsið er á hægri hönd. Hvít innrétting og ljós borðplata. Korkflísar á gólfi. Inn af eldhúsi er lítið þvottaherbergi.
Baðherbergi: Flísar á gólfi og veggjum. Baðkar og innrétting. Handklæðaofn á vegg.
Hjónaherbergi: Stórir veggháir fataskápar. Teppi á gólfi.
Barnaherbergi: Lítið barnaherbergi er staðsett milli baðherbergis og hjónaherbergis. Dúkur á gólfi.
Stofa: Parket á gólfi og útgengi á svalir sem snúa til vest-suðvesturs.
Geymsla: Sér geymsla í kjallara skráð 9,1m2.
Bílskúr er skráður 23,7 fm. Rafmagn, kalt vatn, bílskúrslengjan er upphituð með affallsvatni blokkarinnar.
Í kjallara er sameiginlegt þvottahús og hjóla- og vagnageymsla. Framkvæmdir standa yfir í sameign og verið er að setja upp hleðslustöðvar.
Mjög góð staðsetning öll þjónusta í þægilegu göngufæri og einnig góðar gönguleiðir m.a niður að tjörn. Örstutt er í stórmarkaði, bakarí og fjölbreytta þjónustu í nágrenninu. Stutt er út á stofnbraut.
Seljandi hefur ekki búið í íbúðinni og getur því ekki gert fullkomna grein fyrir ástandi hennar. Kaupendur eru því hvattir til að láta fara fram ítarlega ástandsskoðun á íbúðinni.
Upplýsingar veitir Davíð Ólafsson fasteignasali í síma 897-1533 eða david@fastborg.is
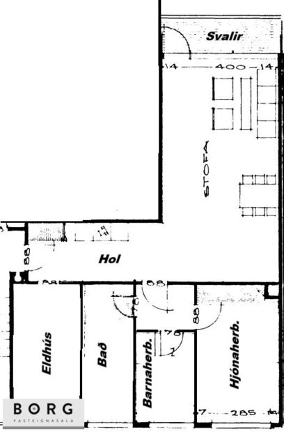
Nánari lýsing:
Inngangur: Komið er inní hol með flísum á gólfi og með fataskápum á vinstri hönd.
Eldhús: Eldhúsið er á hægri hönd. Hvít innrétting og ljós borðplata. Korkflísar á gólfi. Inn af eldhúsi er lítið þvottaherbergi.
Baðherbergi: Flísar á gólfi og veggjum. Baðkar og innrétting. Handklæðaofn á vegg.
Hjónaherbergi: Stórir veggháir fataskápar. Teppi á gólfi.
Barnaherbergi: Lítið barnaherbergi er staðsett milli baðherbergis og hjónaherbergis. Dúkur á gólfi.
Stofa: Parket á gólfi og útgengi á svalir sem snúa til vest-suðvesturs.
Geymsla: Sér geymsla í kjallara skráð 9,1m2.
Bílskúr er skráður 23,7 fm. Rafmagn, kalt vatn, bílskúrslengjan er upphituð með affallsvatni blokkarinnar.
Í kjallara er sameiginlegt þvottahús og hjóla- og vagnageymsla. Framkvæmdir standa yfir í sameign og verið er að setja upp hleðslustöðvar.
Mjög góð staðsetning öll þjónusta í þægilegu göngufæri og einnig góðar gönguleiðir m.a niður að tjörn. Örstutt er í stórmarkaði, bakarí og fjölbreytta þjónustu í nágrenninu. Stutt er út á stofnbraut.
Seljandi hefur ekki búið í íbúðinni og getur því ekki gert fullkomna grein fyrir ástandi hennar. Kaupendur eru því hvattir til að láta fara fram ítarlega ástandsskoðun á íbúðinni.
Upplýsingar veitir Davíð Ólafsson fasteignasali í síma 897-1533 eða david@fastborg.is