Löggiltir fasteignasalar innan Félags fasteignasala:
Sigurður Samúelsson
Andri Sigurðsson
Sveinn Eyland
Ingibjörg Agnes Jónsdóttir
Guðrún Diljá Lúðvíksdóttir
Monika Hjálmtýsdóttir
Júlíus Jóhannsson
Freyja Rúnarsdóttir
Jón Óskar Karlsson
Davíð Matthíasson
Erla Friðriksdóttir
Vista
svg

202

svg

144  Skoðendur

svg

Skráð  22. apr. 2026

einbýlishús

Hraunberg 5A

111 Reykjavík

105.800.000 kr.

459.401 þ.kr./m2
Fasteignanúmer

F2533126

Fasteignamat

117.750.000 kr.

Brunabótamat

105.250.000 kr.

Áhvílandi

0 kr.

Arion banki – Reikna lán
Upplýsingar
svg
Byggt 1984
svg
230,3 m²
svg
5 herb.
svg
1 baðherb.
svg
3 svefnh.
svg
Sérinngangur

Lýsing

LANDMARK fasteignamiðlun ehf. og Andri Sigurðsson Löggiltur fasteignasali (s: 690 3111 / andri@landmark.is) og félagsmaður í Félagi fasteignasala kynna í einkasölu:

Rúmgott einbýlishús á eftirsóttri stórri hornlóð við Hraunberg 5A í efra Breiðholti. Birt stærð samkvæmt HMS: 230,3 fm, með samþykktum breytingateikningum og stækkunarmöguleikum. Eignin býður upp á mikið rými, björt og hlýleg innanhússrými, stóran garð og samþykktar teikningar fyrir frekari uppbyggingu — kjörin eign fyrir þá sem vilja þróa og móta heimilið eftir eigin hugmyndum.

SMELLTU HÉR TIL AÐ FÁ SENT SÖLUYFIRLIT OG ALLAR FREKARI UPPLÝSINGAR

Helstu atriði eignar:

Mikil lofthæð á aðalhæð, sem gefur rýmunum opna og bjarta tilfinningu.
* Bílskúr með mikilli lofthæð og gryfju, hentugur fyrir vinnu, áhugamál eða þróun samkvæmt samþykktum teikningum.
* Kjallari óinnréttaður, en með samþykktum uppdráttum og fyrirhugaðri fullri lofthæð.
* Samþykktar teikningar (2024) fyrir endurnýjun og framtíðarnýtingu hússins.
* Heimild til allt að 40 m² stækkunar samkvæmt samþykktu skipulagi.
* Stór og gróinn hornlóð með miklum möguleikum.
* Timburhús á steyptum kjallara, vel við haldið.
* Rúmgott einbýlishús með góðu flæði og björtum rýmum.
* Tveir pallar: stór sólpallur við stofu (ca. 40 m²) og annar við inngang (ca. 15 m²).
* Frábær staðsetning í rólegu og grónu hverfi með stuttu göngufæri í skóla, leikskóla, sundlaug, íþróttasvæði og alla helstu þjónustu.

Nánari lýsing eignar:

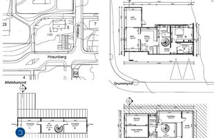
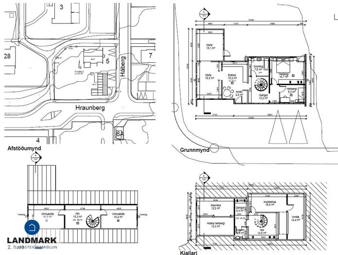
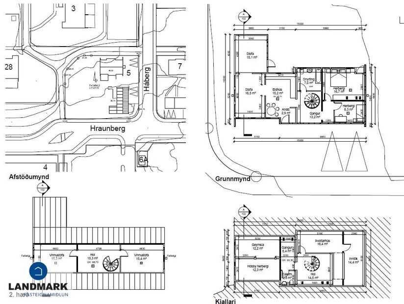
Aðkoma og anddyri: Góð aðkoma og rúmgott anddyri með fatahengi. Við inngang er sólpallur, ca. 15 m², sem nýtist vel yfir sumartímann. Húsið er timburhús á steyptum kjallara og stendur á stórri hornlóð með góðu næði.
Eldhús: Bjart og vel skipulagt eldhús með hvítri innréttingu, helluborði, ofni og tengi fyrir uppþvottavél. Gluggar gefa góða birtu og rýmið tengist vel stofu og borðstofu.
Stofa og borðstofa: Rúmgóð og björt samliggjandi rými með mikilli lofthæð, sem eykur rýmistilfinningu og birtu. Útgengt er á stóran, sólríkan pall (ca. 40 m²) sem er skjólgóður og hentar vel fyrir fjölskyldu og gesti.
Baðherbergi:  Flísalagt gólf, innrétting, baðkar með sturtu og tengi fyrir þvottavél og þurrkara. Baðherbergið er með góðum glugga sem gefur góða birtu og loftræstingu.
Herbergi og ris: Stigi leiðir upp í ris þar sem eru tvö rúmgóð svefnherbergi og sjónvarpshol. Risið er bjart, hlýlegt og vel nýtt með fallegri loftklæðningu og góðri lofthæð.
Bílskúr / fjölnota rými: Upphitað rými með mikilli lofthæð, sem nýtist í dag sem vinnustofa. Bílskúrinn er með gryfju, sem hentar vel fyrir viðgerðir eða áhugamál. Samþykktir uppdrættir gera ráð fyrir frekari nýtingu sem auka herbergi, vinnuaðstöðu eða fjölnota rými.

Kjallari: Stórt rými undir öllu húsinu. Kjallarinn er óinnréttaður, en með samþykktum uppdráttum sem gera ráð fyrir:

* Hobby-rými
* Geymslu
* Þvottahúsi
* Baðherbergi
* Alrými

Gert er ráð fyrir fullri lofthæð samkvæmt samþykktum teikningum

Þetta er mjög spennandi rými fyrir þá sem vilja þróa eignina áfram og nýta möguleikana sem samþykktir uppdrættir bjóða upp á.

Lóð: Stór og falleg hornlóð í mikilli rækt. Heimild er til að stækka húsið um allt að 40 m² samkvæmt samþykktu skipulagi. Góð bílastæði og skjólgóð verönd.

Staðsetning: Eignin er vel staðsett í rólegu og grónu hverfi í efra Breiðholti. Stutt er í: leik-, grunn- og framhaldsskóla, sundlaug og íþróttasvæði Leiknis, bókasafn og heilsugæslu, stórmarkaði og aðra þjónustu.

Hverfið er fjölskylduvænt, rólegt og með góðum göngu- og hjólastígum.

Eign sem býður upp á mikla möguleika: 

Hér er á ferðinni rúmgott einbýlishús á stórri lóð með samþykktum teikningum að breytingum og stækkunarheimild , kjörin eign fyrir þá sem vilja skapa sitt eigið heimili og sjá tækifærin sem felast í rýminu.

Allar nánari upplýsingar veitir og bókun á skoðunartíma: Andri Sigurðsson Löggiltur fasteignasali í síma 690 3111 eða andri@landmark.is
 

Skoðunar- og aðgæsluskylda:
Lög um fasteignakaup nr. 40/2002 kveða á um að kaupendur þurfi að skoða fasteignir vel áður en tilboð er gert. LANDMARK fasteignamiðlun ráðleggur kaupendum að skoða ástand eignar og leita sér aðstoðar sérfræðinga ef þörf er á nánari skoðun.

Söluyfirlit:
Söluyfirlit er gert af fasteignasala samkvæmt lögum nr. 70/2015. Upplýsingar í yfirlitinu eru fengnar úr opinberum skrám, frá seljanda og ef þarf frá húsfélagi. Fasteignasali sannreynir upplýsingar með skoðun á eigninni en getur ekki sannreynt ástand þess sem ekki er aðgengilegt eða sýnilegt, t.d. lagnir, dren, skólp og þak.

Gjöld sem kaupandi þarf að greiða:
1. Stimpilgjald: 0,8% af fasteignamati (0,4% fyrir fyrstu kaup) og 1,6% fyrir lögaðila.
2. Þinglýsingargjald: 3.800 kr. fyrir hvert skjal.
3. Lántökugjald: Fer eftir gjaldskrá lánveitanda.
3. Þjónustugjald kaupanda: 79.000 kr. m/vsk.
3. Skipulagsgjald: Ef um nýbyggingu er að ræða, 0,3% af brunabótamáti þegar það er lagt á.

Heimasíða LANDMARK
Pantaðu frítt söluverðmat

img
Andri Sigurðsson
Lögg.fasteignasali innan félags fasteignasala
LANDMARK fasteignamiðlun
Hlíðasmári 2, 201 Kópavogur
LANDMARK fasteignamiðlun

LANDMARK fasteignamiðlun

Hlíðasmári 2, 201 Kópavogur
phone
img

Andri Sigurðsson

Hlíðasmári 2, 201 Kópavogur
LANDMARK fasteignamiðlun

LANDMARK fasteignamiðlun

Hlíðasmári 2, 201 Kópavogur
phone

Andri Sigurðsson

Hlíðasmári 2, 201 Kópavogur