Löggiltir fasteignasalar innan Félags fasteignasala:
Sigurður Maack Gunnarsson
Svanþór Einarsson
Theodór Emil Karlsson
Steingrímur Benediktsson
Vista
einbýlishús

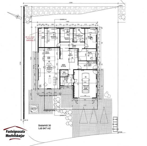
Skálahlíð 30

270 Mosfellsbær

182.900.000 kr.

781.958 þ.kr./m2
Fasteignanúmer

F2331292

Fasteignamat

174.350.000 kr.

Brunabótamat

0 kr.

Áhvílandi

0 kr.

Arion banki – Reikna lán
Upplýsingar
Verðsaga
svg
Byggt 2020
svg
233,9 m²
svg
5 herb.
svg
3 baðherb.
svg
4 svefnh.
svg
Þvottahús
svg
Bílskúr
svg
Sérinngangur

Lýsing

** Hafðu samband og bókaðu tíma fyrir skoðun - Svanþór Einarsson, löggiltur fasteignasali - svanthor@fastmos.is eða 698-8555 - Theodór Emil Karlsson, löggiltur fasteignasali - teddi@fastmos.is eða 690-8040 - Steingrímur Benediktsson, löggiltur fasteignasali - steingrimur@fastmos.is eða 862-9416 **

Fasteignasala Mosfellsbæjar kynnir: Fallegt og vel skipulagat 233,9 m2 einbýlishús á einni hæð með innbyggðum bílskúr við Skálahlíð 30 í Mosfellsbæ. Eignin er skráð 233,9 m2, þar af er íbúðarhlutinn 191,2 m2 og bílskúr 42,7 m2. Eignin skiptist í fjögur svfnherbergi, fataherbergi, tvö baðherbergi, gestasnyrtingu, þvottahús, forstofu, eldhús, stofu, borðstofu, sjónvarpshol og bílskúr. Um er að ræða fallegt einbýlishús á vinsælum stað í Mosfellsbæ. Eingöngu eru einbýlishús í götunni. Göngufæri er í alla helstu þjónustu svo sem Lágafellskóla, leikskóla, Lágafellslaug, World Class og GM (Golfklúbb Mosfellsbæjar), Bónus og Krónuna.  Lóð er frágengin að hluta og er afgirt með steyptum veggjun að miklu leiti. Bílaplan er hellulagt. Lagnaleið fyrir heitan pott er út á verönd og uppsett er heitapottastýring.


Smelltu hér til að fá söluyfirlit sent strax.

Nánari lýsing:

Forstofa með parketi á gólfi. Innaf forstofu er gestasnyrting með flísum í hólf og gólf, vegghengdu salernig og innréttingu með skolvaski. 
Eldhús, stofa og borðstofa er í björtu opnu rými. Í eldhúsi er falleg innrétting frá Kvik með miklu skápaplássi og eyju. Í innréttungu er innbyggð uppþvottavél, helluborð með gufugleypi, tveir ofnar og tveir innbyggðir ísskápar.
Sjónvarpshol er rúmgott í miðjurými hússins.
Hjónaherbergið er með parketi á gólfi. Inn af herbergi er fataherbergi og baðherbergi. Baðherbergið er með flísum í hólf og gólf, vegghengdu salerni, sturtu og innréttingu með skolvask. 
Aðalbaðherbergið er flísalagt í hólf og gólf, vegghengdu salerni, sturtu, handklæðaofni, frístandandi baðkari og sturtu með innbyggðum tækjum. 
Barnaherbergin eru þrjú talsins. Eru með fataskápum og parketi á gólfi.
Þvottahúsið er með stórri innréttingu með skolvaski og góðu skápaplássi. Flísar á gólfi. Úr þvottahúsi er útgengt út á lóð.
Bílskúrinn er skráður 42,7 m2.

Verð kr. 182.900.000,- 



Um skoðunar- og aðgæsluskyldu:
Í lögum um fasteignakaup nr. 40/2002 er kveðið á um ríka skoðunarskyldu kaupenda á fasteignum. Fasteignasala Mosfellsbæjar skorar því á væntanlega kaupendur að kynna sér vel ástand fasteigna fyrir kauptilboðsgerð og leita til þar til bærra sérfræðinga um nánari skoðun ef með þarf.

Forsendur söluyfirlits:
Söluyfirlit er samið af fasteignasala í samræmi við ákvæði laga nr. 70/2015. Þær upplýsingar sem fram koma í söluyfirliti þessu eru sóttar í opinberar skrár, til seljanda sjálfs og eftir atvikum til húsfélags. Seljandi veitir upplýsingar um eign í samræmi við upplýsingaskyldu laga um fasteignakaup nr. 40/2002. Fasteignasali sannreynir að þær upplýsingar séu réttar með sjónskoðun á eigninni.
Fasteignasali getur ekki fullyrt um ástand og eiginleika þeirra hluta fasteigna sem ekki eru aðgengilegir og sjást ekki berum augum, t.d. lagnir, dren, skólp og þak.

Gjöld sem kaupandi þarf að greiða vegna kaupa:
1. Stimpilgjald af kaupsamningi sem er hlutfall af fasteignamati. Stimpilgjald er 0,8% fyrir einstaklinga (0,4% við fyrstu kaup) og 1,6% fyrir lögaðila.
2. Þinglýsingargjald af kaupsamningi, veðskuldabréfum, veðleyfum o.fl. Þinglýsingargjald er kr. 3.800,- fyrir hvert skjal.
3. Lántökugjald lánastofnunar - er skv. gjaldskrá viðkomandi lánastofnunar.
4. Umsýslugjald til fasteignasölu skv. kauptilboði.
5. Þegar um nýbyggingu er að ræða greiðir kaupandi skipulagsgjald, 0,3% af endanlegu brunabótamáti, þegar það er lagt á af viðkomandi sveitarfélagi.

img
Svanþór Einarsson
Lögg.fasteignasali innan félags fasteignasala
Fasteignasala Mosfellsbæjar
Þverholti 2, 270 Mosfellsbæ
Fasteignasala Mosfellsbæjar

Fasteignasala Mosfellsbæjar

Þverholti 2, 270 Mosfellsbæ
phone
img

Svanþór Einarsson

Þverholti 2, 270 Mosfellsbæ
Ár
Fasteignamat
Kaupverð
Stærð
Fermetraverð
15. jún. 2022
108.800.000 kr.
103.000.000 kr.
233.9 m²
440.359 kr.
Byggt á upplýsingum úr Þjóðskrá Íslands frá 2006-2026
Fasteignasala Mosfellsbæjar

Fasteignasala Mosfellsbæjar

Þverholti 2, 270 Mosfellsbæ
phone

Svanþór Einarsson

Þverholti 2, 270 Mosfellsbæ