Löggiltir fasteignasalar innan Félags fasteignasala:
Ástþór Reynir Guðmundsson
Vigdís R. S. Helgadóttir
Guðbjörg Helga Jóhannesdóttir
Gylfi Jens Gylfason
Sigrún Matthea Sigvaldadóttir
Sveinn Gíslason
Páll Guðmundsson
Þórarinn Arnar Sævarsson
Berglind Hólm Birgisdóttir
Þorsteinn Gíslason
Guðrún Lilja Tryggvadóttir
Brynjar Ingólfsson
Guðný Þorsteinsdóttir
Bjarni Blöndal
Þorsteinn Ólafs
Þórdís Björk Davíðsdóttir
Jóhann Kristinn Jóhannesson
Bjarný Björg Arnórsdóttir
Salvör Þóra Davíðsdóttir
Magga Sigríður Gísladóttir
Upplýsingar
Verðsaga
Byggt 1983
81,6 m²
3 herb.
1 baðherb.
2 svefnh.
Þvottahús
Sérinngangur
Opið hús: 29. apríl 2026
kl. 16:30
til 17:00
Opið hús: Sílakvísl 17, 110 Reykjavík, Íbúð merkt: 02 01 02. Eignin verður sýnd miðvikudaginn 29. apríl 2026 milli kl. 16:30 og kl. 17:00.
Lýsing
RE/MAX & BJARNÝ BJÖRG Lgf. ( 694-2526 / bjarny@remax.is ) kynna:
Vel staðsetta 2-3ja herbergja íbúð á neðri hæð í sjö íbúða húsi með sérinngangi og sérmerktu bílastæði sem fylgir hverri íbúð. Heildarstærð eignarinnar er 81,6 fm að stærð samkvæmt HMS.
Allar nánari upplýsingar veitir: Bjarný Björg Arnórsdóttir lgf., í 694-2526 / bjarny@remax.is
** SMELLTU HÉR og skoðaðu EIGNINA í 3-D, þrívíðu umhverfi.**
Nánari lýsing:
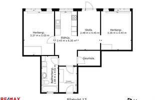
Anddyri: Komið er inn um sérinngang í andyrið með flísum á gólfi, skápar á vinstri hönd.
Eldhús: Eldhúsinnréttingin er með góðu skápaplássi, pláss fyrir uppþvottavél og góðum glugga.
Stofa: Stofan hefur verið endurskipulögð og herbergi útbúið úr hluta hennar. Úr stofu er útgengt um svalahurð út á pall og í skjólgóðan og snyrtilegan garð.
Herbergi 1# er stórt með góðum skápum og parket á gólfi.
Herbergi 2# er innaf stofu, hægt er að setja hurð í hurðargatið og nýta sem herbergi.
Baðherbergi er flísalagt innbyggt vegghengt salerni. Baðinnrétting er rúmgóð og baðkar með sturtu.
Geymsla: góð geymsla er í íbúðinni
Sameiginleg hjóla- og vagnageymsla í sameign
Framkvæmdasaga samkvæmt seljanda:
Húsfélagið er núna að skipta um járn á þakinu og nokkra þakglugga - seljandi greiðir fyrir þá framkvæmd.
Búið er að endurnýja tröppur í sameign, múra og leggja hitaleiðara - árið 2024
Búið er að skipta um gler í flestum gluggum í íbúðinni - árið 2024
Skipt var um flesta þakglugga í húsinu árið 2022
Húsið málað að utan árið 2021
Gjöld sem kaupandi þarf að standa straum af vegna kaupanna:
1. Stimpilgjald af kaupsamningi - 0,8% af heildarfasteignamati hjá einstaklingum. (Sé um fyrstu kaup að ræða er stimpilgjald af kaupsamningi 0,4%)
2. Stimpilgjald af kaupsamningi - 1,6% af heildarfasteignamati hjá lögaðilum.
3. Þinglýsingargjald af kaupsamningi, veðskuldabréfi, veðleyfi o.fl. 2.700 kr. af hverju skjali.
4. Lántökugjald lánastofnunar - sjá heimasíður lánastofnanna.
5. Umsýslugjald til fasteignasölu 69.900. kr. m.vsk.
Í lögum um fasteignakaup nr. 40/2002 er kveðið á um ríka skoðunarskyldu kaupenda á fasteignum. Vill RE/MAX því skora á væntanlega kaupendur að kynna sér vel ástand fasteigna fyrir kauptilboðsgerð og leita til þar til bærra sérfræðinga um nánari skoðun.
Vel staðsetta 2-3ja herbergja íbúð á neðri hæð í sjö íbúða húsi með sérinngangi og sérmerktu bílastæði sem fylgir hverri íbúð. Heildarstærð eignarinnar er 81,6 fm að stærð samkvæmt HMS.
Allar nánari upplýsingar veitir: Bjarný Björg Arnórsdóttir lgf., í 694-2526 / bjarny@remax.is
** SMELLTU HÉR og skoðaðu EIGNINA í 3-D, þrívíðu umhverfi.**
Nánari lýsing:
Anddyri: Komið er inn um sérinngang í andyrið með flísum á gólfi, skápar á vinstri hönd.
Eldhús: Eldhúsinnréttingin er með góðu skápaplássi, pláss fyrir uppþvottavél og góðum glugga.
Stofa: Stofan hefur verið endurskipulögð og herbergi útbúið úr hluta hennar. Úr stofu er útgengt um svalahurð út á pall og í skjólgóðan og snyrtilegan garð.
Herbergi 1# er stórt með góðum skápum og parket á gólfi.
Herbergi 2# er innaf stofu, hægt er að setja hurð í hurðargatið og nýta sem herbergi.
Baðherbergi er flísalagt innbyggt vegghengt salerni. Baðinnrétting er rúmgóð og baðkar með sturtu.
Geymsla: góð geymsla er í íbúðinni
Sameiginleg hjóla- og vagnageymsla í sameign
Framkvæmdasaga samkvæmt seljanda:
Húsfélagið er núna að skipta um járn á þakinu og nokkra þakglugga - seljandi greiðir fyrir þá framkvæmd.
Búið er að endurnýja tröppur í sameign, múra og leggja hitaleiðara - árið 2024
Búið er að skipta um gler í flestum gluggum í íbúðinni - árið 2024
Skipt var um flesta þakglugga í húsinu árið 2022
Húsið málað að utan árið 2021
Gjöld sem kaupandi þarf að standa straum af vegna kaupanna:
1. Stimpilgjald af kaupsamningi - 0,8% af heildarfasteignamati hjá einstaklingum. (Sé um fyrstu kaup að ræða er stimpilgjald af kaupsamningi 0,4%)
2. Stimpilgjald af kaupsamningi - 1,6% af heildarfasteignamati hjá lögaðilum.
3. Þinglýsingargjald af kaupsamningi, veðskuldabréfi, veðleyfi o.fl. 2.700 kr. af hverju skjali.
4. Lántökugjald lánastofnunar - sjá heimasíður lánastofnanna.
5. Umsýslugjald til fasteignasölu 69.900. kr. m.vsk.
Í lögum um fasteignakaup nr. 40/2002 er kveðið á um ríka skoðunarskyldu kaupenda á fasteignum. Vill RE/MAX því skora á væntanlega kaupendur að kynna sér vel ástand fasteigna fyrir kauptilboðsgerð og leita til þar til bærra sérfræðinga um nánari skoðun.
Ár
Fasteignamat
Kaupverð
Stærð
Fermetraverð
5. okt. 2011
18.200.000 kr.
20.500.000 kr.
81.6 m²
251.225 kr.
Byggt á upplýsingum úr Þjóðskrá Íslands frá 2006-2026