Upplýsingar
Byggt 1945
180,1 m²
2 herb.
3 baðherb.
Sérinngangur
Lýsing
Atvinnuhúsnæði á jarðhæð og í kjallara við Garðastræti 6 þar sem Kastala kaffi var með starfsemi sína, góðir gluggar og aðgengi beint út að götu
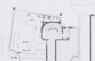
Birt stærð eignar samkvæmt Fasteignaskrá Íslands er 180,1 fm. Jarðhæð er skráð sem kaffihús og kjallari sem gallerí
Nánari upplýsingar veita:
Evert Guðmundsson Lgf. í síma 823-3022 eða evert@palssonfasteignasala.is
Páll Pálsson Lgf. í síma 775-4000 eða palli@palssonfasteignasala.is
Jarðhæð er um 70 fm
Hentar fyrir undirbúnings- eða þjónustuaðstöðu, eldhúsvinnu (háð leyfi) eða móttöku. Starfsmannaaðstaða með salerni. Parket á gólfi.
Kjallari er um 110 fm
Opið og fjölnota rými. málað gólf og hvítir veggir. Rýmið er vel upplýst og hentar fyrir ýmsa létta starfsemi, vinnuaðstöðu, list- eða skapandi rými, lager eða þjónustu. Tvö salerni eru í kjallara og geymslurými. Tekið skal fram að húsgögn voru fjarlægð af myndum með hjálp Photoshop.
Virkilega góð staðsetning alveg við miðbæ Reykjavíkur. Stutt í alla þjónustu, verslanir og almenningssamgöngur.
www.eignavakt.is
www.verdmat.is
Góð ráð fyrir kaupendur / seljendur
Gjöld sem kaupandi þarf að standa straum af vegna kaupanna:
1. Stimpilgjald af kaupsamningi - 0.8% af heildarfasteignamati / 1.6% fyrir lögaðila. (0.4% við fyrstu kaup einstaklinga).
2. Þinglýsingagjald af kaupsamningi, veðskuldabréfi, veðleyfi o.fl.- kr. 3.800 af hverju skjali.
3. Lántökugjald lánastofnunar - samanber gjaldskrá viðkomandi lánastofnunar.
4. Umsýsluþóknun til fasteignasölu, sbr.kauptilboð.
Um skoðunarskyldu:
Í lögum um fasteignakaup nr. 40/2002 er kveðið á um ríka skoðunarskyldu kaupenda á fasteignum. Pálsson fasteignasala bendir væntanlegum kaupendum á að kynna sér vel ástand fasteigna við skoðun og fyrir tilboðsgerð og ef þurfa þykir að leita til sérfræðinga um nánari ástandsskoðun.
Birt stærð eignar samkvæmt Fasteignaskrá Íslands er 180,1 fm. Jarðhæð er skráð sem kaffihús og kjallari sem gallerí
Nánari upplýsingar veita:
Evert Guðmundsson Lgf. í síma 823-3022 eða evert@palssonfasteignasala.is
Páll Pálsson Lgf. í síma 775-4000 eða palli@palssonfasteignasala.is
Jarðhæð er um 70 fm
Hentar fyrir undirbúnings- eða þjónustuaðstöðu, eldhúsvinnu (háð leyfi) eða móttöku. Starfsmannaaðstaða með salerni. Parket á gólfi.
Kjallari er um 110 fm
Opið og fjölnota rými. málað gólf og hvítir veggir. Rýmið er vel upplýst og hentar fyrir ýmsa létta starfsemi, vinnuaðstöðu, list- eða skapandi rými, lager eða þjónustu. Tvö salerni eru í kjallara og geymslurými. Tekið skal fram að húsgögn voru fjarlægð af myndum með hjálp Photoshop.
Virkilega góð staðsetning alveg við miðbæ Reykjavíkur. Stutt í alla þjónustu, verslanir og almenningssamgöngur.
www.eignavakt.is
www.verdmat.is
Góð ráð fyrir kaupendur / seljendur
Gjöld sem kaupandi þarf að standa straum af vegna kaupanna:
1. Stimpilgjald af kaupsamningi - 0.8% af heildarfasteignamati / 1.6% fyrir lögaðila. (0.4% við fyrstu kaup einstaklinga).
2. Þinglýsingagjald af kaupsamningi, veðskuldabréfi, veðleyfi o.fl.- kr. 3.800 af hverju skjali.
3. Lántökugjald lánastofnunar - samanber gjaldskrá viðkomandi lánastofnunar.
4. Umsýsluþóknun til fasteignasölu, sbr.kauptilboð.
Um skoðunarskyldu:
Í lögum um fasteignakaup nr. 40/2002 er kveðið á um ríka skoðunarskyldu kaupenda á fasteignum. Pálsson fasteignasala bendir væntanlegum kaupendum á að kynna sér vel ástand fasteigna við skoðun og fyrir tilboðsgerð og ef þurfa þykir að leita til sérfræðinga um nánari ástandsskoðun.