Upplýsingar
Verðsaga
Byggt 2021
126,7 m²
4 herb.
1 baðherb.
3 svefnh.
Þvottahús
Sameiginl. inngangur
Bílastæði
Lyfta
Lýsing
Glæsileg 126,7 fm 4ra herbergja íbúð með aukinni lofthæð á 4. hæð (efstu) við Hraungötu 23 í Urriðaholti, Garðabæ. Sér stæði í bílageymslu fylgir eigninni.
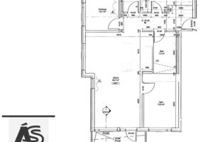
Eignin skiptist þannig að íbúðin sjálf er 114,1 fm og sér geymsla á jarðhæð er 12,6 fm, samtals 126,7 fm skv. HMS.
Nánari lýsing: Forstofa með fataskáp. Eldhús og stofa eru í björtu alrými með glæsilegu útsýni, útg. á svalir. Eldhúsið er með dökkri innréttingu og eyju með corian steinefnaplötu á borðum, innbyggður ísskápur, frystir og uppþvottavél, ofn í vinnuhæð, hellbuborð í eyju með háf yfir. Þrjú svefnherbergi eru í íbúðinni, þ.m.t. hjónaherbergið. Skápar eru í öllum herbergjunum. Baðherbergið er með sturtu, veggsalerni, handklæðaofn, innrétting er dökk og efri skápar eru speglaskápar. Þvottahús er sér innan íbúðar með innréttingu undir þvottavél og þurrkara.
Gólfefni íbúðarinnar er harðparket nema votrými eru flísalögð.
Snyrtileg sameign með hjóla- og vagnageymslu.
Vel staðsett og rúmgott sér bílastæði í bílageymslu fylgir merkt B01.
Frábær staðsetning með glæsilegu útsýni, þar sem stutt er í alla helstu þjónustu og falleg útivistarsvæði.
Nánari upplýsingar veitir Aron Freyr Eiríksson löggiltur fasteignasali í síma 772-7376 / aron@as.is
Ás fasteignasala er rótgróið fyrirtæki sem hefur veitt alla almenna þjónustu í fasteignaviðskiptum frá árinu 1988.
www.facebook.com/asfasteignasala
www.instagram.com/as_fasteignasala
www.as.is
Eignin skiptist þannig að íbúðin sjálf er 114,1 fm og sér geymsla á jarðhæð er 12,6 fm, samtals 126,7 fm skv. HMS.
Nánari lýsing: Forstofa með fataskáp. Eldhús og stofa eru í björtu alrými með glæsilegu útsýni, útg. á svalir. Eldhúsið er með dökkri innréttingu og eyju með corian steinefnaplötu á borðum, innbyggður ísskápur, frystir og uppþvottavél, ofn í vinnuhæð, hellbuborð í eyju með háf yfir. Þrjú svefnherbergi eru í íbúðinni, þ.m.t. hjónaherbergið. Skápar eru í öllum herbergjunum. Baðherbergið er með sturtu, veggsalerni, handklæðaofn, innrétting er dökk og efri skápar eru speglaskápar. Þvottahús er sér innan íbúðar með innréttingu undir þvottavél og þurrkara.
Gólfefni íbúðarinnar er harðparket nema votrými eru flísalögð.
Snyrtileg sameign með hjóla- og vagnageymslu.
Vel staðsett og rúmgott sér bílastæði í bílageymslu fylgir merkt B01.
Frábær staðsetning með glæsilegu útsýni, þar sem stutt er í alla helstu þjónustu og falleg útivistarsvæði.
Nánari upplýsingar veitir Aron Freyr Eiríksson löggiltur fasteignasali í síma 772-7376 / aron@as.is
Ás fasteignasala er rótgróið fyrirtæki sem hefur veitt alla almenna þjónustu í fasteignaviðskiptum frá árinu 1988.
www.facebook.com/asfasteignasala
www.instagram.com/as_fasteignasala
www.as.is
Ár
Fasteignamat
Kaupverð
Stærð
Fermetraverð
21. júl. 2021
5.620.000 kr.
77.900.000 kr.
126.7 m²
614.838 kr.
Byggt á upplýsingum úr Þjóðskrá Íslands frá 2006-2026