Upplýsingar
Verðsaga
Byggt 1990
82,8 m²
2 herb.
1 baðherb.
1 svefnh.
Þvottahús
Bílskúr
Sameiginl. inngangur
Lyfta
Lýsing
Fasteignasalan TORG og Helgi Jónsson lgfs, 780-2700 kynna :
Falleg og vel skipulögð tveggja herbergja íbúð á 5. hæð fyrir 60 ára og eldri í góðu lyftuhúsi. Svalir með svalalokun. Eignin er skráð 82,8 fermetrar og þar af eru 15,0 fermetrar skráðir á sér bílastæði í bílakjallara. Þvottahús/geymsla innan íbúðar. Eignin er laus til afhendingar við kaupsamning. Húsið er mjög vel staðsett á rólegum stað í miðborginni. Húsvörður er í húsinu. Nánari upplýsingar veitir Helgi Jónsson Löggiltur fasteignasali í síma : 780-2700 eða á Helgi@fstorg.is
NÁNARI LÝSING :
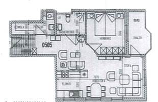
Forstofa: Með parketi á gólfi og skápum.
Hol: Með parketi á gólfi.
Stofa: Með parketi á gólfi, gluggum til suðurs og austurs og útgengi á svalir. Stofa er opin við eldhús.
Svalir: Eru með svalalokun, tréfjölum á svalagólfi og snúa til austurs.
Eldhús: Með parketi á gólfi, hvít/beyki eldhúsinnréttingu og glugga til suðurs. Bakaraofn, helluborð, uppþvottavél og flísar á milli skápa.
Svefnherbergi: Með parketi á gólfi, skápum og glugga til austurs.
Baðherbergi: Með dúk á gólfi, sturtu, hvítri innréttingu við vask og útloftun.
Þvottaherbergi/geymsla: Með dúk á gólfi, tengi fyrir þvottavél, vinnuborð, vaskur, þvottasnúrur, hillur og útloftun.
Sér bílastæði í lokaðri og upphitaðri bílageymslu með þvottaaðstöðu fyrir bíla og hjólageymslu.
Snyrtileg sameign með teppi á stigagangi. Rúmgóð sameign fyrir íbúa hússins og er m.a. samkomusalur á 2. hæð með útsýni til norðurs sem leigist gegn hóflegu gjaldi til íbúa hússins. Auk þess er íþróttaaðstaða, heitur pottur, sauna og sturtur á jarðhæð hússins. Sérbílastæði er í kjallara hússins þar sem er bílaþvottaaðstaða. Bílakjallari er myndavélavaktaður af húsfélaginu. Í næsta nágrenni er Vitatorg, þar sem boðið er upp á ýmsa þjónustu á vegum félags- og þjónustumiðstöðvar Reykjavíkur.
Íbúð merkt 505.
Íbúð á 5. hæð 67,8 fm. stæði í bílageymslu á 1. hæð merkt B32 15 fm. samtals 82,8 fm. Húsið er steinsteypt byggt árið 1989. Lóðin er falleg og frágengin. Hellulögð stétt fyrir framan hús og malbikuð bílastæði. Húsið að utan, lítur vel út og hefur fengið gott viðhald og endurnýjun í gegnum tíðina. Nýlega er búið að endurnýja þak
Eignina má eingöngu selja félögum í Félagi eldri borgara sem eru 60 ára og eldri. Húsvörður er í húsinu sem er búið öryggiskerfi og er Vitatorg að Lindargötu 59 í nágrenni þar sem er ýmiskonar þjónusta og afþreying fyrir eldri borgara, sjá nánar: https://reykjavik.is/stadir/lindargata-59-samfelagshus
Sameiginlegur samkomusalur er á 1. hæð sem hægt er að fá leigðan gegn vægu gjaldi. Á jarðhæð er sameiginleg aðstaða með heitum potti og sauna fyrir íbúa. Bílakjallari er með aðstöðu til að þrífa og bóna bílinn.
Nánari upplýsingar veitir Helgi Jónsson Löggiltur fasteignasali í síma : 780-2700 eða á Helgi@fstorg.is
Falleg og vel skipulögð tveggja herbergja íbúð á 5. hæð fyrir 60 ára og eldri í góðu lyftuhúsi. Svalir með svalalokun. Eignin er skráð 82,8 fermetrar og þar af eru 15,0 fermetrar skráðir á sér bílastæði í bílakjallara. Þvottahús/geymsla innan íbúðar. Eignin er laus til afhendingar við kaupsamning. Húsið er mjög vel staðsett á rólegum stað í miðborginni. Húsvörður er í húsinu. Nánari upplýsingar veitir Helgi Jónsson Löggiltur fasteignasali í síma : 780-2700 eða á Helgi@fstorg.is
NÁNARI LÝSING :
Forstofa: Með parketi á gólfi og skápum.
Hol: Með parketi á gólfi.
Stofa: Með parketi á gólfi, gluggum til suðurs og austurs og útgengi á svalir. Stofa er opin við eldhús.
Svalir: Eru með svalalokun, tréfjölum á svalagólfi og snúa til austurs.
Eldhús: Með parketi á gólfi, hvít/beyki eldhúsinnréttingu og glugga til suðurs. Bakaraofn, helluborð, uppþvottavél og flísar á milli skápa.
Svefnherbergi: Með parketi á gólfi, skápum og glugga til austurs.
Baðherbergi: Með dúk á gólfi, sturtu, hvítri innréttingu við vask og útloftun.
Þvottaherbergi/geymsla: Með dúk á gólfi, tengi fyrir þvottavél, vinnuborð, vaskur, þvottasnúrur, hillur og útloftun.
Sér bílastæði í lokaðri og upphitaðri bílageymslu með þvottaaðstöðu fyrir bíla og hjólageymslu.
Snyrtileg sameign með teppi á stigagangi. Rúmgóð sameign fyrir íbúa hússins og er m.a. samkomusalur á 2. hæð með útsýni til norðurs sem leigist gegn hóflegu gjaldi til íbúa hússins. Auk þess er íþróttaaðstaða, heitur pottur, sauna og sturtur á jarðhæð hússins. Sérbílastæði er í kjallara hússins þar sem er bílaþvottaaðstaða. Bílakjallari er myndavélavaktaður af húsfélaginu. Í næsta nágrenni er Vitatorg, þar sem boðið er upp á ýmsa þjónustu á vegum félags- og þjónustumiðstöðvar Reykjavíkur.
Íbúð merkt 505.
Íbúð á 5. hæð 67,8 fm. stæði í bílageymslu á 1. hæð merkt B32 15 fm. samtals 82,8 fm. Húsið er steinsteypt byggt árið 1989. Lóðin er falleg og frágengin. Hellulögð stétt fyrir framan hús og malbikuð bílastæði. Húsið að utan, lítur vel út og hefur fengið gott viðhald og endurnýjun í gegnum tíðina. Nýlega er búið að endurnýja þak
Eignina má eingöngu selja félögum í Félagi eldri borgara sem eru 60 ára og eldri. Húsvörður er í húsinu sem er búið öryggiskerfi og er Vitatorg að Lindargötu 59 í nágrenni þar sem er ýmiskonar þjónusta og afþreying fyrir eldri borgara, sjá nánar: https://reykjavik.is/stadir/lindargata-59-samfelagshus
Sameiginlegur samkomusalur er á 1. hæð sem hægt er að fá leigðan gegn vægu gjaldi. Á jarðhæð er sameiginleg aðstaða með heitum potti og sauna fyrir íbúa. Bílakjallari er með aðstöðu til að þrífa og bóna bílinn.
Nánari upplýsingar veitir Helgi Jónsson Löggiltur fasteignasali í síma : 780-2700 eða á Helgi@fstorg.is
Ár
Fasteignamat
Kaupverð
Stærð
Fermetraverð
4. maí. 2021
43.950.000 kr.
39.300.000 kr.
82.8 m²
474.638 kr.
3. maí. 2017
34.400.000 kr.
35.900.000 kr.
82.8 m²
433.575 kr.
Byggt á upplýsingum úr Þjóðskrá Íslands frá 2006-2026