Löggiltir fasteignasalar innan Félags fasteignasala:
Ástþór Reynir Guðmundsson
Vigdís R. S. Helgadóttir
Guðbjörg Helga Jóhannesdóttir
Gylfi Jens Gylfason
Sigrún Matthea Sigvaldadóttir
Sveinn Gíslason
Páll Guðmundsson
Þórarinn Arnar Sævarsson
Berglind Hólm Birgisdóttir
Þorsteinn Gíslason
Guðrún Lilja Tryggvadóttir
Brynjar Ingólfsson
Guðný Þorsteinsdóttir
Bjarni Blöndal
Þorsteinn Ólafs
Þórdís Björk Davíðsdóttir
Jóhann Kristinn Jóhannesson
Bjarný Björg Arnórsdóttir
Salvör Þóra Davíðsdóttir
Magga Sigríður Gísladóttir
Upplýsingar
Verðsaga
Byggt 1989
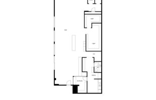
160,8 m²
0 herb.
Lýsing
REMAX og Vilhelm Patrick Bernhöft löggiltur fasteignasali kynna í einkasölu: ÞÖNGLABAKKI 6 – VERSLUNARBIL - EIGN 070101.
Um er að ræða afar vel staðsett verslunarrými við Þönglabakka 6 í Mjódd. Rýmið er staðsett í göngugötunni í Mjódd og telst eitt best staðsetta verslunarplássið á svæðinu þar sem umferð gangandi vegfarenda er mikil og aðgengi gott.
Samkvæmt skráningu Þjóðskrár Íslands er birt flatarmál eignarinnar 160,8 fm. Um er að ræða verslunarrými, nánar tiltekið eign merkt 070101, fastanúmer 204-6827, ásamt öllu því sem eigninni fylgir, þar með talið tilheyrandi lóðar- og sameignarréttindum.
Almennt um húsnæðið:
Kvenfataverslun er starfrækt í húsnæðinu í dag og er rýmið innréttað með þá starfsemi í huga. Þar er opið og bjart verslunarrými ásamt lager, salerni og kaffistofu fyrir starfsfólk.
Húsnæðið býður upp á fjölbreytta nýtingarmöguleika fyrir verslun eða aðra sambærilega starfsemi á góðum stað í rótgrónu verslunar- og þjónustusvæði.
Húsnæðið verður afhent laust við afhendingu þar sem núverandi starfsemi mun flytja í annað húsnæði.
Allar nánari upplýsingar veitir Vilhelm Patrick Bernhöft löggiltur leigumiðlari og fasteignasali s: 663-9000 eða á vilhelm@remax.is
Um skoðunar- og aðgæsluskyldu:
Í lögum um fasteignakaup nr. 40/2002 er kveðið á um ríka skoðunarskyldu kaupenda á fasteignum. REMAX bendir væntanlegum kaupendum á að kynna sér vel ástand fasteigna við skoðun og fyrir tilboðsgerð og ef þurfa þykir að leita til sérfræðinga um nánari ástandsskoðun.
Forsendur söluyfirlits:
Söluyfirlit er samið af löggiltum fasteignasala í samræmi við ákvæði laga nr. 70/2015. Þær upplýsingar sem fram koma í söluyfirliti þessu eru sóttar í opinberar skrár, til seljanda sjálfs og eftir atvikum til húsfélags. Seljandi veitir upplýsingar um eign í samræmi við upplýsingaskyldu laga um fasteignakaup nr. 40/2002. Fasteignasali sannreynir að þær upplýsingar séu réttar með sjónskoðun á eigninni. Fasteignasali getur ekki fullyrt um ástand og eiginleika þeirra hluta fasteigna sem ekki eru aðgengilegir og sjást ekki berum augum, t.d. lagnir, dren, skólp og þak.
Gjöld sem kaupandi þarf að standa straum af vegna kaupanna:
· Stimpilgjald af kaupsamningi - 0,8% af heildarfasteignamati hjá einstaklingum - 1,6% af heildarfasteignamati hjá lögaðilum.
· Þinglýsingargjald af kaupsamningi, veðskuldabréfi, veðleyfi og fl. 3.800 kr. af hverju skjali.
· Lántökugjald lánastofnunar - samkvæmt gjaldskrá lánastofnunar.
· Umsýslugjald til fasteignasölu 69.900 kr. m.vsk
Um er að ræða afar vel staðsett verslunarrými við Þönglabakka 6 í Mjódd. Rýmið er staðsett í göngugötunni í Mjódd og telst eitt best staðsetta verslunarplássið á svæðinu þar sem umferð gangandi vegfarenda er mikil og aðgengi gott.
Samkvæmt skráningu Þjóðskrár Íslands er birt flatarmál eignarinnar 160,8 fm. Um er að ræða verslunarrými, nánar tiltekið eign merkt 070101, fastanúmer 204-6827, ásamt öllu því sem eigninni fylgir, þar með talið tilheyrandi lóðar- og sameignarréttindum.
Almennt um húsnæðið:
Kvenfataverslun er starfrækt í húsnæðinu í dag og er rýmið innréttað með þá starfsemi í huga. Þar er opið og bjart verslunarrými ásamt lager, salerni og kaffistofu fyrir starfsfólk.
Húsnæðið býður upp á fjölbreytta nýtingarmöguleika fyrir verslun eða aðra sambærilega starfsemi á góðum stað í rótgrónu verslunar- og þjónustusvæði.
Húsnæðið verður afhent laust við afhendingu þar sem núverandi starfsemi mun flytja í annað húsnæði.
Allar nánari upplýsingar veitir Vilhelm Patrick Bernhöft löggiltur leigumiðlari og fasteignasali s: 663-9000 eða á vilhelm@remax.is
Um skoðunar- og aðgæsluskyldu:
Í lögum um fasteignakaup nr. 40/2002 er kveðið á um ríka skoðunarskyldu kaupenda á fasteignum. REMAX bendir væntanlegum kaupendum á að kynna sér vel ástand fasteigna við skoðun og fyrir tilboðsgerð og ef þurfa þykir að leita til sérfræðinga um nánari ástandsskoðun.
Forsendur söluyfirlits:
Söluyfirlit er samið af löggiltum fasteignasala í samræmi við ákvæði laga nr. 70/2015. Þær upplýsingar sem fram koma í söluyfirliti þessu eru sóttar í opinberar skrár, til seljanda sjálfs og eftir atvikum til húsfélags. Seljandi veitir upplýsingar um eign í samræmi við upplýsingaskyldu laga um fasteignakaup nr. 40/2002. Fasteignasali sannreynir að þær upplýsingar séu réttar með sjónskoðun á eigninni. Fasteignasali getur ekki fullyrt um ástand og eiginleika þeirra hluta fasteigna sem ekki eru aðgengilegir og sjást ekki berum augum, t.d. lagnir, dren, skólp og þak.
Gjöld sem kaupandi þarf að standa straum af vegna kaupanna:
· Stimpilgjald af kaupsamningi - 0,8% af heildarfasteignamati hjá einstaklingum - 1,6% af heildarfasteignamati hjá lögaðilum.
· Þinglýsingargjald af kaupsamningi, veðskuldabréfi, veðleyfi og fl. 3.800 kr. af hverju skjali.
· Lántökugjald lánastofnunar - samkvæmt gjaldskrá lánastofnunar.
· Umsýslugjald til fasteignasölu 69.900 kr. m.vsk
Ár
Fasteignamat
Kaupverð
Stærð
Fermetraverð
1. mar. 2021
51.800.000 kr.
47.500.000 kr.
70101 m²
678 kr.
Byggt á upplýsingum úr Þjóðskrá Íslands frá 2006-2026